+14 fotó
Hirdetéskód: 8985209
Referenciaszám: M326927-5208320
Feltöltve: ma
Mezőkövesd eladó családi ház 5 szobás: 49,9 millió Ft
49,9 millió Ft
356,4 ezer Ft/m²
140 m²
516 m²
5 szoba
Eladó Ház, Mezőkövesd
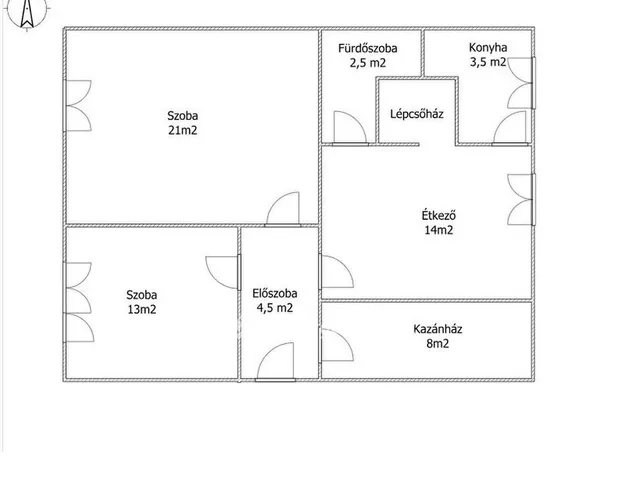
Borsod-Abaúj-Zemplén megye, Mezőkövesd városában, 516 m2-es telken kínálunk megvételre egy 140 m2-es, két szintes családi házat, amely kiváló választás lehet nagyobb családok vagy akár két generáció számára is.
Az ingatlan praktikus elrendezésének köszönhetően mindkét szint külön bejárattal rendelkezik, így akár külön lakrészként is használható.
Alsó szint helyiségei: tágas nappali, egy szoba, konyha, fürdőszoba
és a kazánház.
Az alsó szinten klíma biztosítja a kellemes hőmérsékletet a nyári hónapokban.
Felső szint helyiségei: 3 külön nyíló szoba és fürdőszoba található.
A fűtés: gázcirkó + vegyes tüzelésű kazánnal megoldott.
A nyílászárók dupla szárnyúak, melyekben az üveg kétrétegűre lett cserélve.
A tetőszerkezete jó állapotban van.
Az udvaron 3 beállásos garázs és fedett kocsibeálló található.
Ez az ingatlan remek lehetőség mindazok számára, akik tágas, jól alakítható otthont keresnek jó elhelyezkedéssel.
További információér hívjon bizalommal. A megtekintésre telefonos egyeztetés alapján van lehetőség. Ingatlanirodánk megbízható ügyvédi hátteret biztosítva segíti ügyfeleit, igény esetén Otthon Start, CSOK, babaváró hitelt, illetve kedvező hitelfeltételek ügyintézését is segíti.
Tulajdonságok
Családi ház
Átlagos
Gázkazán
1980
Nem adta meg a hirdető
Vedd fel a kapcsolatot a hirdetővel

Lukácsné Petró Sarolta Márta
OTPip - Eger Kertész utca 25 - OTP Ingatlanpont Iroda
Az iroda összes hirdetése +36 70 282 0
Hitelkalkulátor
Második évtől
214 747 Ft A 13. hónaptól
7,99%
Végig fix Futamidő: 20 év Banki visszahívás
Az OTP Bank munkatársai a neked megfelelő napszakban veszik fel veled a kapcsolatot. A becslés a hirdető által megadott adatokon alapul. A jelen tájékoztatás nem minősül ajánlattételnek és nem teljes körű, az egyes feltételek a hitelbírálat eredményétől függően változhatnak. Kérjük, a részletekről tájékozódj az OTP Bank fiókjaiban vagy az OTP Bank honlapján közzétett vonatkozó Üzletszabályzatokból és Hirdetményekből.
Vedd fel a kapcsolatot a hirdetővel

Lukácsné Petró Sarolta Márta
OTPip - Eger Kertész utca 25 - OTP Ingatlanpont Iroda
Az iroda összes hirdetése +36 70 282 0
Vedd fel a kapcsolatot a hirdetővel

Lukácsné Petró Sarolta Márta
OTPip - Eger Kertész utca 25 - OTP Ingatlanpont Iroda
Az iroda összes hirdetése +36 70 282 0
UI_KIT.CHARACTER_COUNTER__COMPONENT.ACTUAL_CHARACTER__SR_ONLY UI_KIT.CHARACTER_COUNTER__COMPONENT.MAXIMUM_CHARACTER__SR_ONLY
Hasonló eladó ingatlanok Mezőkövesden
Frissítve: 10 napja
9
49,9 millió Ft 383,8 ezer Ft/m²
Eladó családi ház, Mezőkövesd

Feltöltve: 1 hónapja
10
45 millió Ft 398,2 ezer Ft/m²
Eladó családi ház, Mezőkövesd, 48-as hősök útja

Frissítve: 7 napja
14
54 millió Ft 450 ezer Ft/m²
Eladó családi ház, Mezőkövesd

Fedezd fel a
hasonló házakat!Még további házak Borsod-Abaúj-Zemplén megyében 49,9 M Ft körüli értékben
Tovább a hirdetésekhez Frissítve: 4 hónapja
12
46,5 millió Ft 273,5 ezer Ft/m²
Eladó családi ház, Mezőkövesd
Frissítve: 4 napja
10
45 millió Ft 398,2 ezer Ft/m²
Eladó családi ház, Mezőkövesd, 48-as hősök útja

Feltöltve: 16 napja
20
49,9 millió Ft 484,5 ezer Ft/m²
Eladó családi ház, Mezőkövesd

