+17 fotó
Hirdetéskód: 8846730
Referenciaszám: M320305
Frissítve: ma
Mindszentkálla eladó családi ház 4+1 fél szobás: 153,9 millió Ft
153,9 millió Ft
996,8 ezer Ft/m² *
* A m² árat a hirdető adta meg.
154 m²
9162 m²
4+1 fél szoba
Leírás
Veszprém megye, Mindszentkálla, lakóház
A Káli-medencében panorámás, provence-i hangulatú, gyönyörűen kialakított három szintes ház eladó 1 hektáros birtokkal
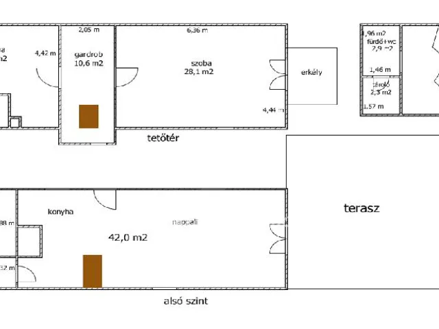
Mindszentkálla külterületén, az Öreg-hegyen található, közel 1 hektáros birtokon teljes körűen felújított, összesen 155 m? lakóterű, háromszintes épület helyezkedik el.
A földszinten tágas, amerikai konyhás nappali (42 m?) beépített, prémium konyhával, egy háló/dolgozószoba, fürdő + WC, és két nagyméretű (30 és 36 m?) terasz található. A tetőtérben 2 hálószoba került kialakításra, egyikhez saját fürdő és WC, a másikban kétszemélyes kád, továbbá erkély. Míg az alsó szinten a boltíves pincéből kialakított hangulatos hálószoba, külön fürdővel, WC-vel és tároló található. A belső terek kialakításakor prémium minőségű anyagok, háztartási gépek és egyedi, ízléses belsőépítészeti megoldások kerültek alkalmazásra.
A teraszokról a Káli-medence jellegzetes domborzata és a környező tanúhegyek csodás panorámája tárul elénk.
A teljeskörű felújítás során az épület eredeti, masszív falazata új tetőszerkezetet kapott. Az ingatlan korszerű, önellátást támogató rendszerrel rendelkezik, így teljesen független a hagyományos közműhálózatoktól:
? Elektromos áram: 5,5 kW teljesítményű napelemes rendszer
? Hűtés/fűtés: radiátoros fűtés vízteres kandallóval, wifi-s hűtő-fűtő klímaberendezések
? Vízellátás: 5 m?-es ciszterna + 3,5 m? tartalék víztárolás, előkészített esővízgyűjtő rendszer, zárt szennyvíztároló
? Kamerás riasztórendszer
A három helyrajzi számon nyilvántartott, összesen 9162 m? területű birtok besorolása: rét és szőlő, rét. Az épület besorolása gazdasági épület és udvar. Az első két terület adásvétele kifüggesztés köteles.
A birtok fenntartásához szükséges szolgáltatók (kertész, üzemeltető, takarítás, házvezető, vízpótlás, szennyvíz ürítés, stb.) a környéken elérhetők.
Lokáció:
A birtok jól járható, egyénileg kialakított erdei úton közelíthető meg.
Mindszentkálla központ: 5 perc
Élelmiszerbolt: 5 perc
Piac: 10 perc
Balaton-part: 20 perc
Éttermek, kávézók: 20 perc
A különleges hangulatú ingatlan ideális választás mindazoknak, akik a prémium minőséget keresik természet ölelésében. Az ingatlan kiválóan alkalmas saját használatra, exkluzív nyaralónak illetve vendégházként.
A ház teljes bútorzata, dekorációja eladó (kivéve a kürtérben készült képek) - az ár megegyezés részét képezi.
Amit a leírás és a fotók csak sejtetnek, de nem adnak át, azt személyesen kell megtapasztalni. Ehhez tudok rugalmasan biztosítani időpontot és várom a megkeresést a megadott elérhetőségek valamelyikén.
Tulajdonságok
Családi ház
3
Újszerű
Házközponti
1920
Nem adta meg a hirdető
Vedd fel a kapcsolatot a hirdetővel

+36 20 935 3
Hitelkalkulátor
Második évtől
662 315 Ft A 13. hónaptól
7,99%
Végig fix Futamidő: 20 év Banki visszahívás
Az OTP Bank munkatársai a neked megfelelő napszakban veszik fel veled a kapcsolatot. A becslés a hirdető által megadott adatokon alapul. A jelen tájékoztatás nem minősül ajánlattételnek és nem teljes körű, az egyes feltételek a hitelbírálat eredményétől függően változhatnak. Kérjük, a részletekről tájékozódj az OTP Bank fiókjaiban vagy az OTP Bank honlapján közzétett vonatkozó Üzletszabályzatokból és Hirdetményekből.
Vedd fel a kapcsolatot a hirdetővel

+36 20 935 3
Vedd fel a kapcsolatot a hirdetővel

+36 20 935 3
UI_KIT.CHARACTER_COUNTER__COMPONENT.ACTUAL_CHARACTER__SR_ONLY UI_KIT.CHARACTER_COUNTER__COMPONENT.MAXIMUM_CHARACTER__SR_ONLY
Hasonló eladó ingatlanok Mindszentkállán
Frissítve: 1 napja
20
153,9 millió Ft 999,4 ezer Ft/m²
Eladó családi ház, Mindszentkálla

Frissítve: 7 napja
14
140 millió Ft 583,3 ezer Ft/m²
Eladó családi ház, Balatonfüred

Frissítve: 17 napja
13
139 millió Ft 1,07 millió Ft/m²
Eladó ikerház, Csopak


Fedezd fel a
hasonló házakat!Még további házak Veszprém megyében 153,9 M Ft körüli értékben
Tovább a hirdetésekhez Frissítve: 1 hónapja
20
149 millió Ft 591,3 ezer Ft/m²
Eladó családi ház, Veszprém
Frissítve: 21 napja
14
143,14 millió Ft
Eladó ikerház, Balatonfüred
Frissítve: 7 napja
20
150 millió Ft 1,5 millió Ft/m²
Eladó családi ház, Veszprém

