+11 fotó
Hirdetéskód: 8955157
Referenciaszám: M323929-5192087
Frissítve: 1 hónapja
Miskolc eladó családi ház 1+1 fél szobás: 24,9 millió Ft
24,9 millió Ft
366,2 ezer Ft/m²
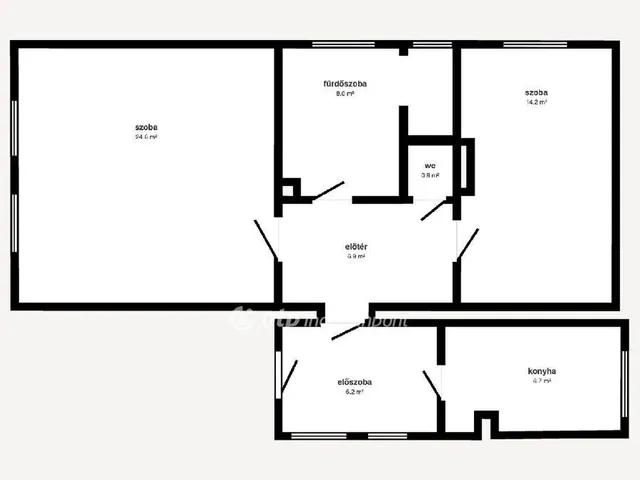
68 m²
339 m²
1+1 fél szoba
Eladó felújítandó ház - Miskolc, Selyemrét
Eladásra kínálok egy 2 szobás, téglából épült 68 nm-es családi házat Selyemréten, a belvárostól mindössze 5 perc távolságra. Az ingatlan remek választás mindazok számára, akik saját elképzeléseik szerint szeretnék kialakítani otthonukat, vagy befektetési lehetőséget keresnek.
A ház stabil szerkezettel rendelkezik, azonban teljes belső és külső felújítást igényel. A fűtésről gázkonvektorok gondoskodnak, míg a meleg vizet villanybojler szolgáltatja. Az ingatlan tehermentes, teljes vételár kifizetését követően azonnal birtokba vehető. Jöjjön el, nézze meg és tegyen egy ajánlatot! Várom hívását akár hétvégén is! OTP Banki hátterünknek köszönhetően finanszírozási igényekben (pl. Otthon Start Hitelprogram, Babaváró, Falusi CSOK, CSOK Plusz, Lakáshitel, Személyi kölcsön stb.), illetve biztosítások tekintetében is állunk ügyfeleink rendelkezésére! Hívása során hivatkozzon az M323929-es referenciaszámra.
Tulajdonságok
Családi ház
Felújítandó
Gáz (konvektor)
1970
Nem adta meg a hirdető
Vedd fel a kapcsolatot a hirdetővel

+36 70 267 3
Hitelkalkulátor
Második évtől
107 158 Ft A 13. hónaptól
7,99%
Végig fix Futamidő: 20 év Banki visszahívás
Az OTP Bank munkatársai a neked megfelelő napszakban veszik fel veled a kapcsolatot. A becslés a hirdető által megadott adatokon alapul. A jelen tájékoztatás nem minősül ajánlattételnek és nem teljes körű, az egyes feltételek a hitelbírálat eredményétől függően változhatnak. Kérjük, a részletekről tájékozódj az OTP Bank fiókjaiban vagy az OTP Bank honlapján közzétett vonatkozó Üzletszabályzatokból és Hirdetményekből.
Vedd fel a kapcsolatot a hirdetővel

+36 70 267 3
Vedd fel a kapcsolatot a hirdetővel

+36 70 267 3
UI_KIT.CHARACTER_COUNTER__COMPONENT.ACTUAL_CHARACTER__SR_ONLY UI_KIT.CHARACTER_COUNTER__COMPONENT.MAXIMUM_CHARACTER__SR_ONLY
Hasonló eladó ingatlanok Selyemrét városrészben
Frissítve: 1 hónapja
14
24,9 millió Ft 366,2 ezer Ft/m²
Eladó családi ház, Miskolc, Selyemrét

Feltöltve: 1 hónapja
14
24,9 millió Ft 366,2 ezer Ft/m²
Eladó családi ház, Miskolc, Selyemrét

Frissítve: 16 napja
14
24,9 millió Ft 366,2 ezer Ft/m²
Eladó családi ház, Miskolc, Selyemrét


Fedezd fel a
hasonló házakat!Még további házak Miskolcon 24,9 M Ft körüli értékben
Tovább a hirdetésekhez Frissítve: 4 napja
19
22,9 millió Ft 381,7 ezer Ft/m²
Eladó családi ház, Miskolc, Bábonyibérc

Feltöltve: 10 hónapja
1
26,9 millió Ft 407,6 ezer Ft/m²
Eladó ikerház, Miskolc, Vasgyár, Tipiczer János utca 24
Frissítve: 7 napja
20
24,9 millió Ft 303,7 ezer Ft/m²
Eladó családi ház, Miskolc, Vargahegy, Csermőkei út

