Hirdetéskód: 8918919
Referenciaszám: 360011095-34
Feltöltve: 1 napja
Nagykovácsi eladó családi ház 6 szobás: 279 millió Ft
279 millió Ft
1 423 469 Ft/m²
196 m²
723 m²
6 szoba
ELADÓ ÚJÉPÍTÉSŰ HÁZ NAGYKOVÁCSI
ELADÓ ÚJÉPÍTÉSŰ ENERGIAHATÉKONY CSALÁDI HÁZ NAGYKOVÁCSIBAN a Zsíroshegyalján
Költözzön a budai agglomeráció gyöngyszemébe, Nagykovácsiba, egy csendes, kis forgalmú utcába az erdőhöz közel!
A helyi tervező és ismert, megbízható beruházó által jegyzett családi ház tökéletes otthona lesz több gyermekes családoknak, akik a fővároson kívül, de attól elérhető távolságban, természetközeli környezetben képzelik el az életüket.
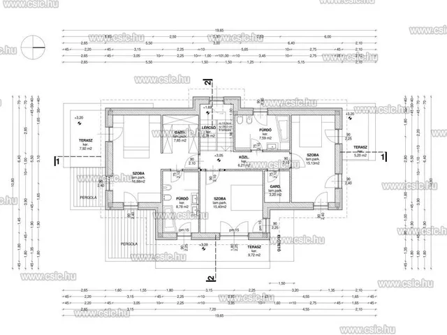
A korszerű, alacsony rezsijű kétszintes CSALÁDI HÁZ 197 m2-es, nappali + 4 szobával, 3 fürdőszobával rendelkezik, így kényelmes otthona lesz többgyermekes családoknak. A kertkapcsolatos 56 m2-es amerikai konyhás nappali a családi élet középpontja, de elrendezésénél, méreténél és elhelyezkedésénél fogva helyet adhat társasági összejöveteleknek is. Az ideális tájolásnak és a hatalmas teraszajtóknak köszönhetően minden évszakban világos.
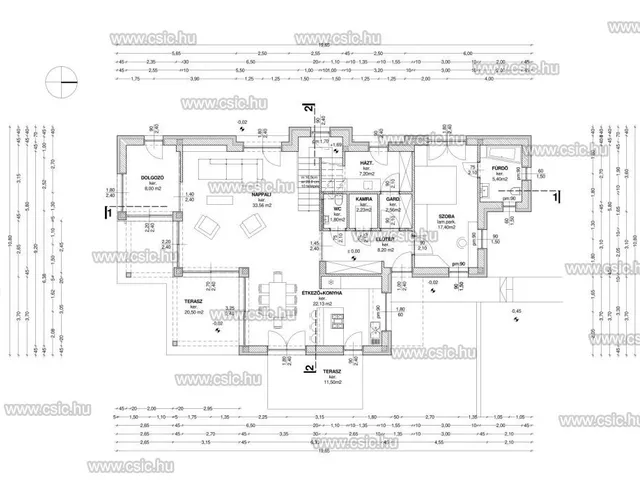
A földszinten kertre néző dolgozó, valamint egy saját fürdővel rendelkező vendégszoba, egy kamra, egy gardrób és egy WC található még. Az emeleten további 3 szoba kapott helyet, melyek közül a master bedroom saját gardróbbal és fürdőszobával rendelkezik.
A másik két szoba közös fürdőszobán és gardróbon osztozik. Minden szoba erkélyes, így minden családtagnak lehetősége van elvonultan is élvezni a napsütést és a csendet.
Az ENERGIAHATÉKONY ÚJ ÉPÍTÉSŰ MODERN CSALÁDI HÁZ főbb jellemzői:
• Alapterület: 196 m2
• Telek területe: 723 m2
• Déli tájolás
• Amerikai konyhás nappali + 4 szoba
• 3 fürdőszoba, vendég WC
• Kertkapcsolatos nagy terasz
• Felszíni gépkocsibeálló
Műszaki paraméterek:
• Alapozás: sávalap
• Teherhordó falak: Porotherm 30 X-therm falazóelemből
• Válaszfalak: 10 cm vtg. Porotherm válaszfalelemekből
• Födém: monolit vasbeton
• Tetőszerkezet: kis hajlásszögű nyeregtető
• Kétkarú monolit vasbeton lépcső
• Vízszigetelés: Padlóban, talajnedvesség ellen 1 rtg. modifikált bitumenes vastaglemez, a teraszon és a lapostetőn csapadékvíz elleni PVC szigetelés, a zuhanyzókban a kerámiaburkolat alatt Mapelastic kent szigetelés
• Hőszigetelés: Padlóban földszinten 15 cm, Austrotherm AT-N100, külső falon 15 cm, Austrotherm Grafit Reflex, előtető alján 10 cm Austrotherm H-80, tetőfödémben 10 + 20 cm, tetőfelületen 10 + 15 cm URSA DF-35 üveggyapot. Teraszon 14 cm Bachl PIR MV, ragasztott kerámialap burkolat alatt 14 cm Austrotherm XPS Premium P.
• Hangszigetelés: Padlóban födémen 4 cm Austrotherm AT-N100.
• Tetőhéjalás: Antracit színű korcolt Prefa alumíniumlemez fedés
• Tetővízelvezetés: Antracit színű Prefa alumínium csatorna és bádogozás
• Páravédelem: Hőszigetelés alatt 1 rtg PE fólia, páraáteresztő alátétfólia feszítve, ragasztva.
• Padlóburkolatok: Kerámia, laminált parketta.
• Falburkolatok: Fürdőkben csempe burkolat, egyéb helyeken javított mészvakolat, glettelés, festés, illetve gipszkarton glettelés, festés.
• Külső nyílászárók: műanyag szerkezetű, 3 rétegű fokozott hőszigetelésű üvegezésű, fix, bukó-nyíló ajtók, ablakok antracit színben
• Árnyékolás: beépített külső fém zsaluzia
• Beltéri ajtók: laminált szerkezetű ajtók
• Homlokzatképzés: Dryvit hőszigetelő vakolatrendszer, törtfehér színben érdes felületű vékonyvakolattal, ragasztott kőlap burkolat. Oromfalakon antracit színű korcolt alulemez fedés
• Gépészet: Az épület fűtését levegő – víz hőszivattyú biztosítja padló és mennyezet felületfűtéssel, indirekt melegvíz tárolóval cirkuláltatott hálózattal
• Szellőzés födémbe épített hővisszanyerős központi szellőzőrendszerrel.
• Teraszok: kerámia burkolattal
• Járdák, bejárók: Beton térkő burkolattal
• Korlátok: Edzett üveg kivitelűek, rozsdamentes tartószerkezettel
• Okosotthon-előkészítés
További részletekért, megtekintésért hívjon a hét bármely napján!
Ingyenes, bankfüggetlen hitelügyintézéssel segítünk megtalálni új otthonát, keressen bizalommal!
Tulajdonságok
Családi ház
Új építésű
Nem adta meg a hirdető
Vedd fel a kapcsolatot a hirdetővel
+36 20 365 9
Hitelkalkulátor
Második évtől
1 200 689 Ft A 13. hónaptól
7,99% 8,49%
Végig fix Futamidő: 20 év Banki visszahívás
Az OTP Bank munkatársai a neked megfelelő napszakban veszik fel veled a kapcsolatot. A becslés a hirdető által megadott adatokon alapul. A jelen tájékoztatás nem minősül ajánlattételnek és nem teljes körű, az egyes feltételek a hitelbírálat eredményétől függően változhatnak. Kérjük, a részletekről tájékozódj az OTP Bank fiókjaiban vagy az OTP Bank honlapján közzétett vonatkozó Üzletszabályzatokból és Hirdetményekből.
Vedd fel a kapcsolatot a hirdetővel
+36 20 365 9
Vedd fel a kapcsolatot a hirdetővel
+36 20 365 9
UI_KIT.CHARACTER_COUNTER__COMPONENT.ACTUAL_CHARACTER__SR_ONLY UI_KIT.CHARACTER_COUNTER__COMPONENT.MAXIMUM_CHARACTER__SR_ONLY
Hasonló eladó ingatlanok Nagykovácsiban
Frissítve: 9 napja
8
255 M Ft 1 500 000 Ft/m²
Eladó ikerház, Nagykovácsi

Frissítve: 12 napja
9
255 M Ft 1 448 864 Ft/m²
Eladó ikerház, Nagykovácsi

Frissítve: 9 napja
18
279 M Ft 1 162 500 Ft/m²
Eladó családi ház, Nagykovácsi

Fedezd fel a
hasonló házakat!Még további házak Nagykovácsiban 279 M Ft körüli értékben
Tovább a hirdetésekhez Frissítve: 15 napja
20
279 M Ft 1 162 500 Ft/m²
Eladó családi ház, Nagykovácsi, Tisza utca

Feltöltve: 1 éve
1
255 M Ft 1 448 864 Ft/m²
Eladó ikerház, Nagykovácsi
Frissítve: 9 napja
8
255 M Ft 1 500 000 Ft/m²
Eladó ikerház, Nagykovácsi

