+17 fotó
Hirdetéskód: 8836088
Referenciaszám: M312050-5113625
Frissítve: ma
Nagykozár eladó családi ház 3+1 fél szobás: 140 millió Ft
140 millió Ft
1 400 000 Ft/m²
100 m²
1010 m²
3+1 fél szoba
Eladó Ház, Nagykozár
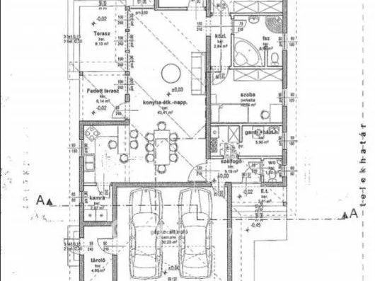
100 négyzetméteres amerikai konyhás 2 szobás 1 félszobás ház eladó Nagykozárban.
Csak a nappali+konyha rész 43 négyzetméter. Az innen nyíló terasz 14 négyzetméter. 2003-ban épült, kiváló állapotban van. 2 wc, 2 klímaberendezés van. A fürdőszobában kád és tusoló is van. A kényelmet még fokozza a mosó és gardróbszoba, a kamra, és a hobbi helyiség. Minden nyílászáró műanyagból van redőnnyel, és szúnyoghálóval. A tetőtér nem beépíthető, viszont nagy tároló lehet, mert fel lehet állni a magassága miatt. Az udvarban van egy műanyag kerti tároló ház a kerti eszközöknek. A házban riasztó, és kamerarendszer ügyel a biztonságról. Igény esetén teljesen berendezve is eladó. Budapesti 2 szobás garázsos lakás cserealapot képezhet a megegyezésben.
A fűtésről és melegvízről gáz cirkó kazán gondoskodik. Természetesen víz, villany, és szennyvízbekötés is van. Az udvarban fúrt kútról lehet öntözni.
1.010 négyzetméteres teljesen sík terület tartozik hozzá, nagyon sok fával, és bokorral. Mivel saroktelek, nem csak a garázsban fér el 2 autó, de a másik utcáról is ki lehet építeni egy bejáratot. Akár egy másik épület is építhető a telekre, a szülők, vagy a gyerekek számára.
Referenciaszám: M312050
140000000 Ft
Referencia szám: M312050
Tulajdonságok
Családi ház
Felújított
Gázkazán
2004
Nem adta meg a hirdető
Vedd fel a kapcsolatot a hirdetővel
+36 20 938 4
Hitelkalkulátor
Második évtől
602 496 Ft A 13. hónaptól
7,99%
Végig fix Futamidő: 20 év Banki visszahívás
Az OTP Bank munkatársai a neked megfelelő napszakban veszik fel veled a kapcsolatot. A becslés a hirdető által megadott adatokon alapul. A jelen tájékoztatás nem minősül ajánlattételnek és nem teljes körű, az egyes feltételek a hitelbírálat eredményétől függően változhatnak. Kérjük, a részletekről tájékozódj az OTP Bank fiókjaiban vagy az OTP Bank honlapján közzétett vonatkozó Üzletszabályzatokból és Hirdetményekből.
Vedd fel a kapcsolatot a hirdetővel
+36 20 938 4
Vedd fel a kapcsolatot a hirdetővel
+36 20 938 4
UI_KIT.CHARACTER_COUNTER__COMPONENT.REMAINING_SPACE__SR_ONLYUI_KIT.CHARACTER_COUNTER__COMPONENT.MAXIMUM_CHARACTER__SR_ONLY
Hasonló eladó ingatlanok Nagykozáron
Frissítve: 17 napja
20
140 M Ft 1 400 000 Ft/m²
Eladó családi ház, Nagykozár

Frissítve: 17 napja
20
140 M Ft 1 400 000 Ft/m²
Eladó családi ház, Nagykozár

Frissítve: 17 napja
20
140 M Ft 1 400 000 Ft/m²
Eladó családi ház, Nagykozár


Fedezd fel a
hasonló házakat!Még további házak Baranya megyében 140 M Ft körüli értékben
Tovább a hirdetésekhez Frissítve: 17 napja
20
140 M Ft 1 400 000 Ft/m²
Eladó családi ház, Nagykozár

Frissítve: 13 napja
20
140 M Ft 933 333 Ft/m²
Eladó családi ház, Nagykozár

Frissítve: 17 napja
20
140 M Ft 1 400 000 Ft/m²
Eladó családi ház, Nagykozár

