+15 fotó
Hirdetéskód: 8966399
Referenciaszám: M325593-5198050
Frissítve: 6 napja
Nagyvenyim eladó családi ház 2 szobás: 28 millió Ft
28 millió Ft
437,5 ezer Ft/m²
64 m²
960 m²
2 szoba
Eladó Ház, Nagyvenyim
Nagyvenyimen kínálok eladásra egy takaros, rendezett parasztházat, mely tágas telken fekszik.
A ház 64 m2, a telek mérete 960 m2.
Az épület falazata vegyes, főként vályog. A tető fagerendás szerkezetű, cseréptetővel borított.
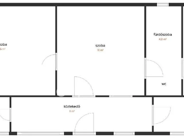
A ház parasztház jellegű. Hosszú, világos tornácról lépünk be az egyik szobába, melyből balra nyílik a másik szoba, jobbra pedig a fürdőszoba wc-vel, és egy tárolóhelyiség található. A konyha a tornác egyik végén, a kamra a másik végén helyezkedik el.
A falak vastagok, jó hőszigetelésűek.
A belső szobában fapadló, a többi helyiségben műanyag padlóburkolat található.
A fűtésről a középső szobában felszerelt hűtő-fűtő klíma, illetve fatüzelésű kályha gondoskodik. A ház fűtése korszerűsíthető, igény szerint.
A házban még nem történt villamossági felújítás.
A házhoz tartozik egy 11 m2-es tároló, beton és kis részben tégla falazattal. Az építmény garázsként is funkcionálhat, hiszen akna is kialakításra került.
Az ingatlan felújítandó, de kis fantáziával egy bájos otthon varázsolható belőle.
A telek gondosan ki lett takarítva, tágas, napsütéses, rendezett és bekerített.
Az utca aszfaltos, a szomszédság békés.
Igény esetén, ingyenes pénzügyi tanácsadással, kedvezményes lakásvásárlási kölcsön teljes körű ügyintézésével, valamint ügyvédi közreműködés megszervezésével tudunk segítséget nyújtani.
Ha felkeltette érdeklődését az ingatlan, megtekintésért vagy bármilyen felmerülő kérdéssel kapcsolatban keressen bizalommal, akár hétvégén is.
Az energetikai tanúsítvány készítése folyamatban van, amint rendelkezésre áll, úgy azzal a hirdetés frissítésre kerül.
Tulajdonságok
Családi ház
Átlagos
Elektromos
1970
Nem adta meg a hirdető
Vedd fel a kapcsolatot a hirdetővel

Máté Katalin
OTPip - Szigetszentmiklós Tököli út 19.B - OTP Ingatlanpont Iroda
Az iroda összes hirdetése +36 70 324 2
Hitelkalkulátor
Második évtől
120 499 Ft A 13. hónaptól
7,99%
Végig fix Futamidő: 20 év Banki visszahívás
Az OTP Bank munkatársai a neked megfelelő napszakban veszik fel veled a kapcsolatot. A becslés a hirdető által megadott adatokon alapul. A jelen tájékoztatás nem minősül ajánlattételnek és nem teljes körű, az egyes feltételek a hitelbírálat eredményétől függően változhatnak. Kérjük, a részletekről tájékozódj az OTP Bank fiókjaiban vagy az OTP Bank honlapján közzétett vonatkozó Üzletszabályzatokból és Hirdetményekből.
Vedd fel a kapcsolatot a hirdetővel

Máté Katalin
OTPip - Szigetszentmiklós Tököli út 19.B - OTP Ingatlanpont Iroda
Az iroda összes hirdetése +36 70 324 2
Vedd fel a kapcsolatot a hirdetővel

Máté Katalin
OTPip - Szigetszentmiklós Tököli út 19.B - OTP Ingatlanpont Iroda
Az iroda összes hirdetése +36 70 324 2
UI_KIT.CHARACTER_COUNTER__COMPONENT.ACTUAL_CHARACTER__SR_ONLY UI_KIT.CHARACTER_COUNTER__COMPONENT.MAXIMUM_CHARACTER__SR_ONLY
Hasonló eladó ingatlanok Nagyvenyimen
Frissítve: 3 napja
20
27,9 millió Ft 362,3 ezer Ft/m²
Eladó családi ház, Nagyvenyim

Frissítve: 7 napja
20
27,9 millió Ft 362,3 ezer Ft/m²
Eladó családi ház, Nagyvenyim

Frissítve: 1 napja
26
27,9 millió Ft 362,3 ezer Ft/m²
Eladó családi ház, Nagyvenyim

Fedezd fel a
hasonló házakat!Még további házak Fejér megyében 28 M Ft körüli értékben
Tovább a hirdetésekhez Frissítve: 13 napja
5
27,9 millió Ft 310 ezer Ft/m²
Eladó családi ház, Nagyvenyim
Feltöltve: 10 hónapja
1
29 millió Ft 358 ezer Ft/m²
Eladó családi ház, Nagyvenyim
Frissítve: 6 hónapja
16
28,9 millió Ft 704,9 ezer Ft/m²
Eladó családi ház, Nagyvenyim

