

+5 fotó
Hirdetéskód: 8730161
Referenciaszám: 388011
Feltöltve: 4 napja
Nyíregyháza eladó családi ház 3 szobás: 99 millió Ft
99 millió Ft
712 230 Ft/m²
139 m²
720 m²
3 szoba
Eladó családi ház Nyíregyháza, 139nm, 99.000.000Ft - Kollégium utcai lakópark 3
Eladó Nyíregyháza Nyírszőlős részén a Kollégium utcai lakóparkban 2025-ben épülő új A++ besorolású 3 szobás garázsos családi ház. (K/3)
Ára: 99.000.000 Ft.
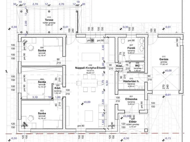
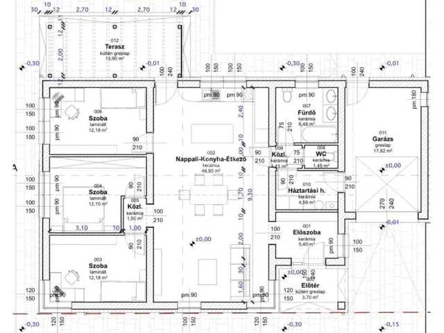
Az ingatlan alap méretei:
- a telek mérete: 720nm,
- a ház alapterülete: 139nm.
Az épület hasznos alapterülete 139nm melyben található:
- 3 szoba,
- 2 közlekedő,
- nappali-konyha-étkező,
- háztartási helység,
- fürdőszoba,
- WC,
- előtér,
- garázs (17,82nm),
- terasz (13,9nm).
Az új építésű családi ház várhatóan 8 hónapon belül kerül átadásra, mely korszerű hő takarékos építészeti megoldásokat alkalmazva készül el. A falazata 30-as téglából épül, mely 15 cm-es EPS homlokzati hőszigetelést kap. A födém szerkezete 15 cm-es ásványszálas hőszigetelésű lesz, így az egész épület energetikai szempontból A++ kategóriájú.
Az épületben áram, víz, gáz és csatorna bekötésre kerül. Az épület padlófűtéssel, radiátoros fűtéssel vagy kérés esetén a kettő kombinációjával készül el, mely gáz cirkó kazánról fog működni. Ezen kívül még 2 db hűtő-fűtő klíma is rendelkezésre fog állni. A melegvíz ellátásról szintén a gáz cirkó kazán gondoskodik.
Az ingatlan ideális választás lehet mindazok számára, akik új építésű, modern energiatakarékos otthont keresnek nyugodt kertvárosi környezetben.
Fontos!
Az ingatlan per és tehermentes, 2 gyerekes CSOK Plusz is igénybe vehető!
Figyelem!
Minőségi kivitelezés és választható belső burkolatok, szaniterek.
2025-ös energetikai szabványoknak megfelelő modern megoldások.
A belső elrendezés igény szerint módosítható.
Ha felkeltette érdeklődését, hívja irodánkat bizalommal!
Ha hitelre van szüksége éljen ingyenes, személyre szabott hitel ügyintézési szolgáltatásunkkal is. ...TOVÁBBI, TÖBBEZRES INGATLAN KÍNÁLAT: www.gdn-ingatlan.hu - GDN azonosító: 388011
Tulajdonságok
Családi ház
1
Új építésű
Gázkazán
2025
14 m²
A++
Vedd fel a kapcsolatot a hirdetővel
+36 70 789 1
Hitelkalkulátor
Második évtől
426 051 Ft A 13. hónaptól
7,99% 8,49%
Végig fix Futamidő: 20 év Banki visszahívás
Az OTP Bank munkatársai a neked megfelelő napszakban veszik fel veled a kapcsolatot. A becslés a hirdető által megadott adatokon alapul. A jelen tájékoztatás nem minősül ajánlattételnek és nem teljes körű, az egyes feltételek a hitelbírálat eredményétől függően változhatnak. Kérjük, a részletekről tájékozódj az OTP Bank fiókjaiban vagy az OTP Bank honlapján közzétett vonatkozó Üzletszabályzatokból és Hirdetményekből.
Vedd fel a kapcsolatot a hirdetővel
+36 70 789 1
Vedd fel a kapcsolatot a hirdetővel
+36 70 789 1
UI_KIT.CHARACTER_COUNTER__COMPONENT.REMAINING_SPACE__SR_ONLYUI_KIT.CHARACTER_COUNTER__COMPONENT.MAXIMUM_CHARACTER__SR_ONLY
Hasonló eladó ingatlanok Nyírszőlős városrészben
Frissítve: 1 hónapja

12
94,5 M Ft 875 000 Ft/m²
Eladó ikerház, Nyíregyháza, Nyírszőlős
Frissítve: 21 napja

18
89,99 M Ft 708 583 Ft/m²
Eladó ikerház, Nyíregyháza, Nyírszőlős, Kincses köz 1
Feltöltve: 4 hónapja

20
99,9 M Ft 1 009 091 Ft/m²
Eladó családi ház, Nyíregyháza, Nyírszőlős

Fedezd fel a
hasonló házakat!Még további házak Nyíregyházán 99 M Ft körüli értékben
Tovább a hirdetésekhez Frissítve: 4 napja

7
89,9 M Ft 890 099 Ft/m²
Eladó családi ház, Nyíregyháza, Nyírszőlős

Frissítve: 4 napja

7
99 M Ft 712 230 Ft/m²
Eladó családi ház, Nyíregyháza, Nyírszőlős

Feltöltve: 2 hónapja

5
99 M Ft 712 230 Ft/m²
Eladó családi ház, Nyíregyháza, Nyírszőlős

Töltsd fel hirdetésed ingyenesen!
Egyszerű