+17 fotó
Hirdetéskód: 8803981
Referenciaszám: M316857-5094964
Frissítve: 22 napja
Nyúl eladó családi ház 4 szobás: 146 millió Ft
146 millió Ft
1,02 millió Ft/m²
143 m²
810 m²
4 szoba
Eladó Ház, Nyúl
Igazi minőség és nyugalom Nyúl központjában. Eladó egy csendes kis zsákutca utolsó háza. Óvoda és az iskola a közelben.
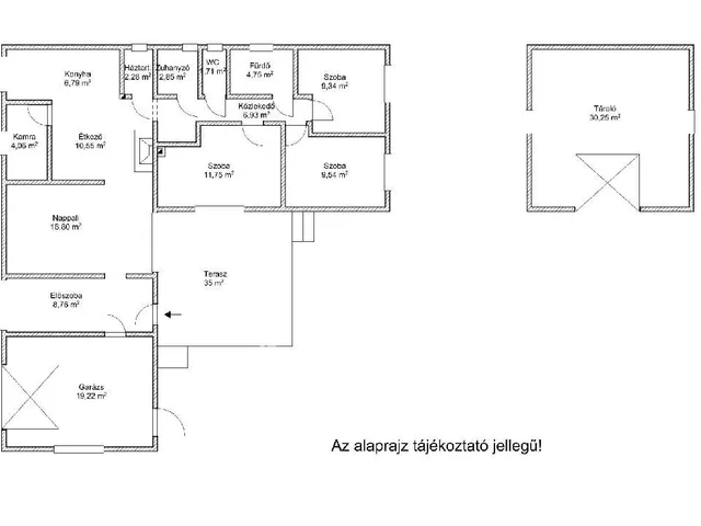
A ház 2005-ben épült, jól átgondolt egyedi igények alapján, kiváló minőségű anyagokból. A tulajdonosok nagy figyelmet fordítottak az energiatakarékosságra így napelem rendszert építettek ki. Bár a házat 44-es porotherm téglából építették, kapott még 5 cm szigetelést, a tökéletes hőmegtartás érdekében. Van fúrt kút, szivattyúval. A házban 3 hálószoba, nappali, két fürdőszoba és konditerem szolgálja a benne lakók kényelmét. A konyhában gondosan megtervezett helytakarékos, igényes egyedi konyhabútor, minden extrával ellátva. A nappaliban és a szobákban egyedi méretre készült bútorok vannak, rengeteg tárolási lehetőséggel. A fűtést gázkazán biztosítja, illetve egy szép cserépkályha, ami igazán hangulatossá teszi a hideg téli estéket és önállóan is befűti az egész házat. Az emeleti tetőtér jelenleg részlegesen van beépítve, előtér és konditerem van fent. A tetőtér többi része, kb. 70 m2-es terület még igény szerint kialakítható. A házban van garázs, amiből rögtön az előszobába vezető ajtón tudunk a hideg és az eső elől elzártan, kényelmesen kipakolni az autóból. A nagy 35 m2-es hangulatos pergolás terasz biztosítja, hogy egy hosszú nap után megpihenhessünk és gyönyörködhessünk az udvarban virágzó bokrok, gyümölcsfák között, vagy ha kedvünk van kicsit kertészkedhetünk is a konyhakertben. Az udvaron továbbá van még egy kedves kis 30 m2-es melléképület, ami kis átalakítás után akár vendégházként is funkcionálhat.
Amennyiben az ingatlan felkeltette az érdeklődését, kérem keressen bizalommal.
Referencia szám: M316857
Az energetikai tanúsítvány készítése folyamatban van, amint rendelkezésre áll, úgy azzal a hirdetés frissítésre kerül.
146000000 Ft
Amennyiben az ingatlan felkeltette érdeklődését, esetleg bármivel kapcsolatban kérdése lenne, keressen Bizalommal! Verrasztó Edina: +36703156380
Referencia szám: M316857-ZE
Tulajdonságok
Családi ház
Felújított
Gázkazán
2005
Nem adta meg a hirdető
Vedd fel a kapcsolatot a hirdetővel

+36 70 315 6
Hitelkalkulátor
Második évtől
628 317 Ft A 13. hónaptól
7,99%
Végig fix Futamidő: 20 év Banki visszahívás
Az OTP Bank munkatársai a neked megfelelő napszakban veszik fel veled a kapcsolatot. A becslés a hirdető által megadott adatokon alapul. A jelen tájékoztatás nem minősül ajánlattételnek és nem teljes körű, az egyes feltételek a hitelbírálat eredményétől függően változhatnak. Kérjük, a részletekről tájékozódj az OTP Bank fiókjaiban vagy az OTP Bank honlapján közzétett vonatkozó Üzletszabályzatokból és Hirdetményekből.
Vedd fel a kapcsolatot a hirdetővel

+36 70 315 6
Vedd fel a kapcsolatot a hirdetővel

+36 70 315 6
UI_KIT.CHARACTER_COUNTER__COMPONENT.ACTUAL_CHARACTER__SR_ONLY UI_KIT.CHARACTER_COUNTER__COMPONENT.MAXIMUM_CHARACTER__SR_ONLY
Hasonló eladó ingatlanok Nyúlon
Frissítve: 9 napja
20
146 millió Ft 1,02 millió Ft/m²
Eladó családi ház, Nyúl

Frissítve: 1 hónapja
20
146 millió Ft 1,02 millió Ft/m²
Eladó családi ház, Nyúl

Frissítve: 8 napja
20
146 millió Ft 1,02 millió Ft/m²
Eladó családi ház, Nyúl


Fedezd fel a
hasonló házakat!Még további házak Győr-Moson-Sopron megyében 146 M Ft körüli értékben
Tovább a hirdetésekhez Frissítve: 19 napja
20
146 millió Ft 1,02 millió Ft/m²
Eladó családi ház, Nyúl

Frissítve: 1 hónapja
20
146 millió Ft 1,02 millió Ft/m²
Eladó családi ház, Nyúl

Frissítve: 1 hónapja
20
146 millió Ft 1,02 millió Ft/m²
Eladó családi ház, Nyúl

