+2 fotó
Hirdetéskód: 8840570
Referenciaszám: 729500072
Feltöltve: 4 napja
Őrbottyán eladó családi ház 4 szobás: 95,5 millió Ft
95,5 millió Ft
1 015 957 Ft/m²
94 m²
430 m²
4 szoba
4643: Új építésű családi ház Őrbottyánban!
Őrbottyán, Vácbottyáni részén magas műszaki tartalommal épülő, nappali + 3 szobás elrendezésű, nettó 81,79 nm lakóterületű + 17,1 nm-es terasszal + 2,68 nm-es külső tárolóval rendelkező, dupla-komfortos családi házak eladók, 430 nm-es saját telekrészekkel.
Portfóliónkban számos, különböző paraméterekkel rendelkező új építésű ingatlan megtalálható Őrbottyán területén és környékén, az azonnal beköltözhető ingatlanoktól kezdve, a még szabadon alakítható, saját igényre tervezhető lakásokig. Keressen bizalommal és segítünk megtalálni az elképzeléseinek megfelelő otthonát!
CÉGES ÉPÍTKEZÉS, a 2024-től aktuális állami támogatások valamint kedvezményes, kamattámogatott hitelek felvehetőek – akár a 3%-os OTTHON START hitel, CSOK PLUS, babaváró is igényelhető, az ügyintézésben díjmentesen segítünk!
Az építő munkájára jellemző a megbízhatóság és igényesség, leinformálható, referencia házai megtekinthetők.
Az ingatlan homlokzati falai 30-as PTH téglából épülnek, 12 cm grafitos hőszigeteléssel.
Műanyag szerkezetű, hőszigetelő üvegezéssel ellátott nyílászárók kerülnek beépítésre, fehér színben.
A tető beton cseréppel lesz fedett.
A ház fűtése modern, hőszivattyús fűtésrendszerrel történik, a hő leadás padlófűtéssel, + fan-coil rendszeri is kiépítésre kerül.
Az ingatlanok H-tarifás órával és napelem kiállással kerülnek átadásra.
EÜ Gerendás födém - tehát pakolható padlástér.
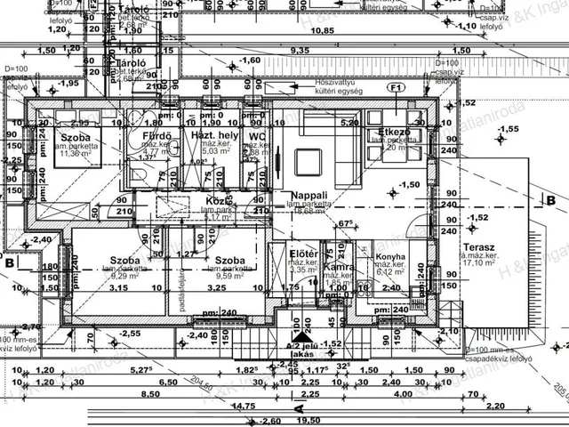
Helyiséglista:
amerikai konyhás nappali (29 nm), 3 szoba (11,36 nm, 9,29 nm és 9,59 nm), fürdőszoba (4.77 nm), háztartási helyiség (5,03 nm), külön WC (2.38 nm), előtér (3.35 nm), kamra (1.85 nm), közlekedő (5,17 nm), terasz (17,1 nm), külső tároló (2,68 nm)
Parkolás: burkolt, udvari beállón kerül kialakításra.
A ház kulcsrakész állapotban kerül átadásra.
Akár 10 %-os foglalózás is lehetséges, a fennmaradó 90 % átadást megelőzően!
Lehetőség van egyedi elképzelések megvalósításra a ház belső elrendezésének tekintetében.
Köszönjük, hogy megtisztel bizalmával, és irodánkat választja új otthona kiválasztására. Tapasztalt és felkészült kollégáink segítenek Önnek akár a hétvégén is.
Ha esetleg még nem sikerült eladni ingatlanát, kedvezményes feltételekkel vállaljuk annak értékesítését!
A fotókon az építő már elkészült, azonos paraméterekkel rendelkező háza látható referenciaként.
Kulcsrakész ár: 95.550.000.- Ft
Azonosító: 4643
Tulajdonságok
Családi ház
1
Új építésű
Hőszivattyú
2026
Nem adta meg a hirdető
Van
Vedd fel a kapcsolatot a hirdetővel
+36 70 418 1
Hitelkalkulátor
Második évtől
410 988 Ft A 13. hónaptól
7,99% 8,49%
Végig fix Futamidő: 20 év Banki visszahívás
Az OTP Bank munkatársai a neked megfelelő napszakban veszik fel veled a kapcsolatot. A becslés a hirdető által megadott adatokon alapul. A jelen tájékoztatás nem minősül ajánlattételnek és nem teljes körű, az egyes feltételek a hitelbírálat eredményétől függően változhatnak. Kérjük, a részletekről tájékozódj az OTP Bank fiókjaiban vagy az OTP Bank honlapján közzétett vonatkozó Üzletszabályzatokból és Hirdetményekből.
Vedd fel a kapcsolatot a hirdetővel
+36 70 418 1
Vedd fel a kapcsolatot a hirdetővel
+36 70 418 1
UI_KIT.CHARACTER_COUNTER__COMPONENT.REMAINING_SPACE__SR_ONLYUI_KIT.CHARACTER_COUNTER__COMPONENT.MAXIMUM_CHARACTER__SR_ONLY
Hasonló eladó ingatlanok Őrbottyánban
Frissítve: ma
3
92 M Ft 989 247 Ft/m²
Eladó ikerház, Őrbottyán

Frissítve: 19 napja
4
Green Hill lakópark - új építésű házak Őrbottyánban II.ütem
88,95 M Ft 1 049 681 Ft/m²
Eladó ikerház, Őrbottyán, Kálvária utca

Frissítve: 18 napja
3
89,5 M Ft 955 075 Ft/m²
Eladó ikerház, Őrbottyán


Fedezd fel a
hasonló házakat!Még további házak Őrbottyánban 95,5 M Ft körüli értékben
Tovább a hirdetésekhez Frissítve: 18 napja
3
89,5 M Ft 955 075 Ft/m²
Eladó ikerház, Őrbottyán

Frissítve: 18 napja
4
95,5 M Ft 710 038 Ft/m²
Eladó ikerház, Őrbottyán

Frissítve: 18 napja
6
89,2 M Ft 761 093 Ft/m²
Eladó ikerház, Őrbottyán

