+13 fotó
Hirdetéskód: 8849037
Referenciaszám: 729500091
Feltöltve: 3 napja
Őrbottyán eladó családi ház 4 szobás: 105,5 millió Ft
105,5 millió Ft
1 055 000 Ft/m²
100 m²
360 m²
4 szoba
4667: Panorámás családi ház!!
Kedves Otthonkereső!
Panorámás családi ház!!
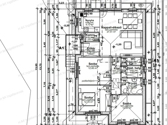
Szíves figyelmébe ajánlom ezt a gondosan megtervezett, panorámás családi házat, amely Őrbottyán, Kálváriadomb városrészében, nyugodt, zöld környezetben helyezkedik el. Az ingatlan 360 m²-es telekrészen épül, kellemes arányú kerttel és terasszal, ahol a mindennapok csendje és a kilátás egyaránt élvezhető.
CÉGES ÉPÍTKEZÉS, az aktuális állami támogatások valamint kedvezményes, kamattámogatott hitelek felvehetőek – akár a 3%-os OTTHON START hitel, CSOK PLUS, babaváró is igényelhető, az ügyintézésben díjmentesen segítünk!
Az építő munkájára jellemző a megbízhatóság és igényesség, leinformálható, referencia házai megtekinthetők.
A ház 91 m² lakóterű, nappali + 3 szobás elrendezésű, amelyet egy 16 m²-es terasz egészít ki. A belső terek világosak, jól tagoltak, a nappali–étkező–konyha egysége természetes központja az otthonnak, míg a külön nyíló szobák kényelmes visszavonulást biztosítanak a család minden tagjának.
A műszaki tartalom korszerű és átgondolt: az ingatlan hőszivattyús fűtési rendszerrel készül, H tarifás villanyórával, így a fenntartási költségek hosszú távon is kedvezően alakulnak.
A hő leadás minden helyiségben padlófűtéssel történik.
A beton gerendás födém teljes mértékben pakolható és terhelhető, a 10 cm vastag grafitos Dryvit hőszigetelés pedig hozzájárul az energia hatékony működéshez.
A ház napelem előkészítéssel készül, így a későbbi bővítés is adott.
A parkolás burkolt autóbeállón megoldott, az ingatlan környezete rendezett, családbarát.
Az ingatlan kulcsrakész állapotban kerül átadásra, konyhabútor nélkül.
Burkolatok, szaniterek választhatók, a belső műszaki tartalomban feltüntetett árakig a vételár részét képezve.
Ez az otthon ideális választás lehet azok számára, akik panorámás környezetben, mégis jól élhető, modern műszaki tartalommal rendelkező házat keresnek, nyugodt tempójú mindennapokhoz.
Köszönöm, hogy megtisztel bizalmával, és irodánkat választja új otthona kiválasztásához.
Készséggel állunk rendelkezésére további információval, egyeztetéssel.
Ára: 105.500.000.- Ft
Azonosító: 4667
Tulajdonságok
Családi ház
1
Új építésű
Hőszivattyú
2026
Nem adta meg a hirdető
Van
Vedd fel a kapcsolatot a hirdetővel
+36 70 418 1
Hitelkalkulátor
Második évtől
454 024 Ft A 13. hónaptól
7,99% 8,49%
Végig fix Futamidő: 20 év Banki visszahívás
Az OTP Bank munkatársai a neked megfelelő napszakban veszik fel veled a kapcsolatot. A becslés a hirdető által megadott adatokon alapul. A jelen tájékoztatás nem minősül ajánlattételnek és nem teljes körű, az egyes feltételek a hitelbírálat eredményétől függően változhatnak. Kérjük, a részletekről tájékozódj az OTP Bank fiókjaiban vagy az OTP Bank honlapján közzétett vonatkozó Üzletszabályzatokból és Hirdetményekből.
Vedd fel a kapcsolatot a hirdetővel
+36 70 418 1
Vedd fel a kapcsolatot a hirdetővel
+36 70 418 1
UI_KIT.CHARACTER_COUNTER__COMPONENT.REMAINING_SPACE__SR_ONLYUI_KIT.CHARACTER_COUNTER__COMPONENT.MAXIMUM_CHARACTER__SR_ONLY
Hasonló eladó ingatlanok Őrbottyánban
Frissítve: 26 napja
11
110 M Ft 974 400 Ft/m²
Eladó ikerház, Őrbottyán

Frissítve: 26 napja
10
98 M Ft 868 102 Ft/m²
Eladó ikerház, Őrbottyán

Frissítve: 25 napja
3
107 M Ft 1 141 821 Ft/m²
Eladó ikerház, Őrbottyán


Fedezd fel a
hasonló házakat!Még további házak Őrbottyánban 105,5 M Ft körüli értékben
Tovább a hirdetésekhez Frissítve: 1 napja
8
97,5 M Ft 955 882 Ft/m²
Eladó ikerház, Őrbottyán
Frissítve: 5 napja
20
98,9 M Ft 890 991 Ft/m²
Eladó családi ház, Őrbottyán

Feltöltve: 1 hónapja
7
95,55 M Ft 1 165 244 Ft/m²
Eladó ikerház, Őrbottyán

