

+11 fotó
Hirdetéskód: 8277850
Referenciaszám: H492494
Frissítve: 7 napja
Pécs eladó családi ház 3 szobás: 79 millió Ft
79 millió Ft
564 286 Ft/m²
140 m²
398 m²
3 szoba
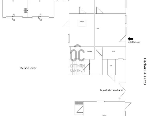
"Pécsi belvárosi ház, lakhely és munkahely együtt!"
Fedezze fel az EGYEDI LEHETŐSÉGEKET kínáló ingatlant Pécsen a Búza térhez közeli környezetben!
Ez az ingatlan különleges kombinációját nyújtja az OTTHONI KÉNYELEMNEK és a MUNKAHELYI PRAKTIKUMNAK, mindezt a belváros vonzáskörzetében.
Az épület kiváló alapanyagként szolgálhat mindazoknak, akik saját igényeikre szabnák otthonukat és munkahelyüket. A villamos hálózat a közelmúltban TELJESKÖRŰ FELÚJÍTÁSON esett át, így az alapvető infrastruktúra már Önre vár. Kialakításra került a fürdőszoba és új konyhabútor is került a konyhába. Így a ház azonnal költözhető lesz!!
Az ingatlan három különböző MŰHELYÉT, illetve GARÁZSÁT kifejezetten ajánljuk azok figyelmébe, akik számára fontos, hogy az otthoni környezet mellett rendelkezésükre álljon TÁGAS és praktikus munkaterület. Az épület adottságainak köszönhetően alkalmas lehet különböző kreatív, kézműves vagy kisipari tevékenységek számára.
A közeli Búza tér és a belváros közelsége tovább fokozza az ingatlan VONZEREJÉT. Így az ingatlan nemcsak azok számára jelenthet kiváló választást, akik a hétköznapi kényelmet részesítik előnyben, hanem azok számára is, akik vállalkozásuknak keresnek ideális helyszínt.
Ne hagyja ki ezt az egyedi lehetőséget, ahol a LAKHATÁS és a MUNKAVÉGZÉS harmonikusan egyesülhet! Fedezze fel a potenciált ebben a KIVÉTELES ingatlanban, és alakítsa át álmai otthonává és munkahelyévé!
Tulajdonságok
Családi ház
Gáz (konvektor)
1920
Nem adta meg a hirdető
Vedd fel a kapcsolatot a hirdetővel
+36 70 465 6
Hitelkalkulátor
Második évtől
339 980 Ft A 13. hónaptól
7,99%
Végig fix Futamidő: 20 év Banki visszahívás
Az OTP Bank munkatársai a neked megfelelő napszakban veszik fel veled a kapcsolatot. A becslés a hirdető által megadott adatokon alapul. A jelen tájékoztatás nem minősül ajánlattételnek és nem teljes körű, az egyes feltételek a hitelbírálat eredményétől függően változhatnak. Kérjük, a részletekről tájékozódj az OTP Bank fiókjaiban vagy az OTP Bank honlapján közzétett vonatkozó Üzletszabályzatokból és Hirdetményekből.
Vedd fel a kapcsolatot a hirdetővel
+36 70 465 6
Vedd fel a kapcsolatot a hirdetővel
+36 70 465 6
UI_KIT.CHARACTER_COUNTER__COMPONENT.REMAINING_SPACE__SR_ONLYUI_KIT.CHARACTER_COUNTER__COMPONENT.MAXIMUM_CHARACTER__SR_ONLY
Hasonló eladó ingatlanok Belváros városrészben
Frissítve: 7 napja

20
79,99 M Ft 672 185 Ft/m²
Eladó családi ház, Pécs, Belváros

Feltöltve: 8 hónapja

1
85 M Ft 885 417 Ft/m²
Eladó családi ház, Pécs, Belváros, Cinka Panna utca
Frissítve: 17 napja

15
79 M Ft 564 286 Ft/m²
Eladó családi ház, Pécs, Belváros


Fedezd fel a
hasonló házakat!Még további házak Pécsett 79 M Ft körüli értékben
Tovább a hirdetésekhez Frissítve: 2 hónapja

1
78,9 M Ft 606 923 Ft/m²
Eladó családi ház, Pécs, Belváros
Frissítve: 5 napja

20
84,9 M Ft 793 458 Ft/m²
Eladó családi ház, Pécs, Belváros

Feltöltve: 3 hónapja

1
83 M Ft 830 000 Ft/m²
Eladó családi ház, Pécs, Belváros, Losonc utca

Töltsd fel hirdetésed ingyenesen!
Egyszerű