+17 fotó
Hirdetéskód: 8927403
Referenciaszám: M324682-5173657
Frissítve: ma
Pécs eladó családi ház 2+1 fél szobás: 58,7 millió Ft
58,7 millió Ft
838,6 ezer Ft/m²
70 m²
480 m²
2+1 fél szoba
Eladó Ház, Pécs
LEHETŐSÉG A ZSOLNAY NEGYEDNÉL! ? Saját kert + Garázs!
Eladó egy átlagos állapotú, szerkezetileg stabil, jó adottságokkal rendelkező családi ház Pécsett, a Kiss Ernő utcában (Zsolnay-domb)!
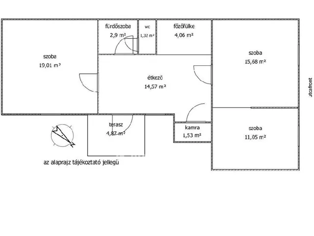
? 70 m? lakótér: 2,5 szoba, konyha, étkező, spájz.
? Dupla fűtés: Gázkazán + vegyestüzelésű kazán (rugalmas rezsi!).
? 480 m?-es kert: Pont akkora, amit még élvezet gondozni.
? 21 m?-es garázs: A kert végében, külön helyrajzi számmal, és villanyórával (benne van az árban!).
? Melléképületek: Tároló és kazánház az udvarban.
jelenleg főzőfülke van a házban. Kisebb átalakítással a kamra mellé lehet telepíteni konyhát.
Az udvar két részre van bontva pl. kutyatartás miatt lehet érdekes. Az első udvarban kisebb pince található.
Buszmegálló: 1 perc gyalog!
Zsolnay negyed: 3 perc séta!
Ideális választás családoknak vagy befektetésnek a kulturális negyed közelsége miatt. Alakítsad saját ízlésedre és varázsolj belőle modern otthont! A ház 1970. előtt épült.
Referenciaszám: M324682
58700000 Ft
Referencia szám: M324682
Tulajdonságok
Családi ház
Átlagos
Gázkazán
1960
Nem adta meg a hirdető
Vedd fel a kapcsolatot a hirdetővel

+36 20 938 4
Hitelkalkulátor
Második évtől
252 618 Ft A 13. hónaptól
7,99%
Végig fix Futamidő: 20 év Banki visszahívás
Az OTP Bank munkatársai a neked megfelelő napszakban veszik fel veled a kapcsolatot. A becslés a hirdető által megadott adatokon alapul. A jelen tájékoztatás nem minősül ajánlattételnek és nem teljes körű, az egyes feltételek a hitelbírálat eredményétől függően változhatnak. Kérjük, a részletekről tájékozódj az OTP Bank fiókjaiban vagy az OTP Bank honlapján közzétett vonatkozó Üzletszabályzatokból és Hirdetményekből.
Vedd fel a kapcsolatot a hirdetővel

+36 20 938 4
Vedd fel a kapcsolatot a hirdetővel

+36 20 938 4
UI_KIT.CHARACTER_COUNTER__COMPONENT.ACTUAL_CHARACTER__SR_ONLY UI_KIT.CHARACTER_COUNTER__COMPONENT.MAXIMUM_CHARACTER__SR_ONLY
Hasonló eladó ingatlanok Pécsett
Frissítve: 1 napja
18
61,5 millió Ft 1,03 millió Ft/m²
Eladó családi ház, Pécs, Gödör utca

Frissítve: ma
20
59 millió Ft 567,3 ezer Ft/m²
Eladó ikerház, Pécs, Lőcse utca

Frissítve: ma
21
59 millió Ft 567,3 ezer Ft/m²
Eladó ikerház, Pécs


Fedezd fel a
hasonló házakat!Még további házak Pécsett 58,7 M Ft körüli értékben
Tovább a hirdetésekhez Frissítve: 1 éve
1
58 millió Ft 322,2 ezer Ft/m²
Eladó egyéb ház, Pécs
Frissítve: ma
20
59 millió Ft 567,3 ezer Ft/m²
Eladó ikerház, Pécs

Frissítve: ma
18
61,5 millió Ft 1,03 millió Ft/m²
Eladó családi ház, Pécs

