

+18 fotó
Hirdetéskód: 8237524
Referenciaszám: M287206-4737466
Frissítve: 3 napja
Pilisborosjenő eladó családi ház 6+1 fél szobás: 249 millió Ft
249 millió Ft
835 570 Ft/m²
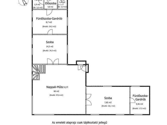
298 m²
841 m²
6+1 fél szoba
Eladó Ház, Pilisborosjenő
EGY IGAZÁN KÜLÖNLEGES, INGATLAN KERESI ÚJ TULAJDONOSÁT ? AHOL ÁLMAI VALÓRA VÁLNAK
Pilisborosjenő napsütötte dombjain, egy 841 m2-es telken található ez a pazar vidéki kúria, amelyet 2002-ben építettek újjá és modernizáltak.
Az átépítés során nagy gondot fordítottak arra, hogy az épület kívülről továbbra is korhű maradjon, de belülről a 21. század kényelmét biztosítsa lakóinak. Jól egészítik ki egymást a gázcirkó fűtés és az iparművész által tervezett cserépkályha, a hőszigetelt ablakok az eredeti kőkeretek megtartásával. Az eredetileg kőből épült földszintes udvarházra a kétezres évek elején emeltek egy újabb szintet, új tetővel és újabb lakóterek kialakításával. A múlt és a jelen páratlan kombinációját alakítva ki.
Az emeleti ráépítés Dr Lázár Antal munkáját dicséri (Kossuth-, Ybl-, Europa díjas építész), aki az A&D Stúdió keretein belül dolgozott (amelynek akkori tulajdonosa Rubik Ernő és dr Lázár Antal volt).
Az ingatlan központi elhelyezkedésével, de csendes intim kertjével, pilisi panorámájával lenyűgöző látványt nyújt.
Hatalmas terek és barátságos zugok egyszerre jellemzik az ingatlant. Télikert és olvasószoba, impozáns műterem-nappali és wellness fürdő nagyságú fürdőszobák harmonikusan egészítik ki egymást.
Kiváló tervezésének köszönhetően az egész házat átjárja a fény. Az ingatlanban minden igényesen és magas minőségben készült el, csak úgy mint a vörösfenyőből készült belső ajtók, az ónémet faragással díszített fali elemek, a hajópadlók, vagy a modern üvegfalú tusoló.
Terei együtt változtathatóak a tulajdonosok igényeivel. Az emeleti műterem-nappali a felső szint lelke, amely közösségi térként használva minden igényt kielégít.
A ház alatt található, 25m hosszú, tágas, jól szellőző, nagy belmagasságú borospincéje, nem csak borászkodásra, de nagy baráti összejövetelek megszervezésére is tökéletesen alkalmas.
Az épület része továbbá egy kétállásos, fűtött, vízzel ellátott garázs.
Lakótere méretei és elosztása alapján a rezsi szempontjából 3 külön lakrészre osztható, így a kedvezményes limitet háromszorosan lehetséges igénybe venni.
Pilisborosjenő Budapesttől 4 km-re északra, a Pilis délkeleti vonulatai mentén lévő, zsáktelepülés, amely a természetjárók, túrázók kedvelt úti célja.
Amennyiben felkeltette érdeklődését ez a különleges ingatlan, várom megtisztelő hívását a hét minden napján!
Tulajdonságok
Családi ház
Jó állapotú
Gázkazán
2002
Nem adta meg a hirdető
Vedd fel a kapcsolatot a hirdetővel
Veress Marietta OTPip - Budapest III. kerület Lajos utca 74-76 - OTP Ingatlanpont Iroda Az iroda összes hirdetése
+36 30 612 5
Hitelkalkulátor
Második évtől
1 071 582 Ft A 13. hónaptól
7,99%
Végig fix Futamidő: 20 év Banki visszahívás
Az OTP Bank munkatársai a neked megfelelő napszakban veszik fel veled a kapcsolatot. A becslés a hirdető által megadott adatokon alapul. A jelen tájékoztatás nem minősül ajánlattételnek és nem teljes körű, az egyes feltételek a hitelbírálat eredményétől függően változhatnak. Kérjük, a részletekről tájékozódj az OTP Bank fiókjaiban vagy az OTP Bank honlapján közzétett vonatkozó Üzletszabályzatokból és Hirdetményekből.
Vedd fel a kapcsolatot a hirdetővel
Veress Marietta OTPip - Budapest III. kerület Lajos utca 74-76 - OTP Ingatlanpont Iroda Az iroda összes hirdetése
+36 30 612 5
Vedd fel a kapcsolatot a hirdetővel
Veress Marietta OTPip - Budapest III. kerület Lajos utca 74-76 - OTP Ingatlanpont Iroda Az iroda összes hirdetése
+36 30 612 5
UI_KIT.CHARACTER_COUNTER__COMPONENT.REMAINING_SPACE__SR_ONLYUI_KIT.CHARACTER_COUNTER__COMPONENT.MAXIMUM_CHARACTER__SR_ONLY
Hasonló eladó ingatlanok Pilisborosjenőn
Frissítve: 10 napja

20
249 M Ft 835 571 Ft/m²
Eladó családi ház, Pilisborosjenő

Frissítve: ma

20
249 M Ft 835 570 Ft/m²
Eladó családi ház, Pilisborosjenő

Frissítve: 11 napja

20
249 M Ft 835 570 Ft/m²
Eladó családi ház, Pilisborosjenő


Fedezd fel a
hasonló házakat!Még további házak Pest megyében 249 M Ft körüli értékben
Tovább a hirdetésekhez Frissítve: 10 napja

20
249 M Ft 835 570 Ft/m²
Eladó családi ház, Pilisborosjenő

Frissítve: 11 napja

20
256 M Ft 1 280 000 Ft/m²
Eladó családi ház, Pilisborosjenő

Frissítve: 3 napja

20
249 M Ft 835 570 Ft/m²
Eladó családi ház, Pilisborosjenő


Töltsd fel hirdetésed ingyenesen!
Egyszerű