+17 fotó
Hirdetéskód: 8972401
Referenciaszám: M326241-5200495
Feltöltve: ma
Piliscsaba eladó családi ház 3+1 fél szobás: 74,9 millió Ft
74,9 millió Ft
1 134 848 Ft/m²
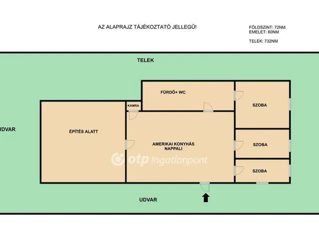
66 m²
732 m²
3+1 fél szoba
Eladó Ház, Piliscsaba
Piliscsabán kínálunk megvételre egy 732 nm-es telken fekvő 132 nm-es, 2 szintes családi házat.
A ház 1980-as években épült, előszőr az alsószint, későbbi bővítéssel pedig egy garázs lett tervezve, de csak a falak lettek felhúzva.
A tetőszerkezet 7 évvel ezelőtt teljesen újjá lett építve, ugyanakkor a belső rész befejezésre vár.
Áram- és vízvezetékek 8 éve lettek cserélve.
Fűtésről kandalló gondoskodik, vegyestüzelés kialakítására van lehetőség.
A teleknek 30%-a beépíthető!
Bővebb információ és megtekintés miatt kérem hívjon!
Közlekedés szempontjából könnyen megközelíthető, vasútállomás és buszmegálló 10 perc sétatávolságra.
Közelben vásárlási lehetőség, iskola, bölcsőde, posta és gyógyszertár is elérhető!
Az OTP Ingatlanpont teljeskörű ügyintézéssel áll az eladók és a vevők rendelkezésére! Az ingatlan finanszírozásához kedvezményes hitel- és lízingkonstrukciókat, lakástakarék-pénztári megoldásokat kínálunk. További információkért kérem hívjon, vagy írjon!
Referencia szám: M326241
Tulajdonságok
Családi ház
Felújítandó
Egyéb
1980
F
Vedd fel a kapcsolatot a hirdetővel
Reich Melinda OTPip - Budapest I. kerület Fő utca 7 - OTP Ingatlanpont Iroda Az iroda összes hirdetése
+36 30 544 1
Hitelkalkulátor
Második évtől
322 335 Ft A 13. hónaptól
7,99%
Végig fix Futamidő: 20 év Banki visszahívás
Az OTP Bank munkatársai a neked megfelelő napszakban veszik fel veled a kapcsolatot. A becslés a hirdető által megadott adatokon alapul. A jelen tájékoztatás nem minősül ajánlattételnek és nem teljes körű, az egyes feltételek a hitelbírálat eredményétől függően változhatnak. Kérjük, a részletekről tájékozódj az OTP Bank fiókjaiban vagy az OTP Bank honlapján közzétett vonatkozó Üzletszabályzatokból és Hirdetményekből.
Vedd fel a kapcsolatot a hirdetővel
Reich Melinda OTPip - Budapest I. kerület Fő utca 7 - OTP Ingatlanpont Iroda Az iroda összes hirdetése
+36 30 544 1
Vedd fel a kapcsolatot a hirdetővel
Reich Melinda OTPip - Budapest I. kerület Fő utca 7 - OTP Ingatlanpont Iroda Az iroda összes hirdetése
+36 30 544 1
UI_KIT.CHARACTER_COUNTER__COMPONENT.ACTUAL_CHARACTER__SR_ONLY UI_KIT.CHARACTER_COUNTER__COMPONENT.MAXIMUM_CHARACTER__SR_ONLY
Hasonló eladó ingatlanok Piliscsabán
Frissítve: 9 napja
20
74,9 M Ft 567 425 Ft/m²
Eladó családi ház, Piliscsaba

Feltöltve: 5 napja
9
80 M Ft 963 855 Ft/m²
Eladó ikerház, Dabas

Frissítve: 9 napja
8
67,9 M Ft 798 824 Ft/m²
Eladó családi ház, Monor


Fedezd fel a
hasonló házakat!Még további házak Pest megyében 74,9 M Ft körüli értékben
Tovább a hirdetésekhez Frissítve: 9 napja
17
71 M Ft 1 690 476 Ft/m²
Eladó családi ház, Szentendre

Feltöltve: 4 hónapja
18
75 M Ft 1 041 667 Ft/m²
Eladó családi ház, Verőce

Feltöltve: ma
20
70 M Ft 486 111 Ft/m²
Eladó családi ház, Pilis

