+15 fotó
Hirdetéskód: 8878635
Referenciaszám: M322019
Frissítve: 5 napja
Pusztaszabolcs eladó családi ház 3 szobás: 61,9 millió Ft
61,9 millió Ft
547,8 ezer Ft/m² *
* A m² árat a hirdető adta meg.
113 m²
550 m²
3 szoba
Leírás
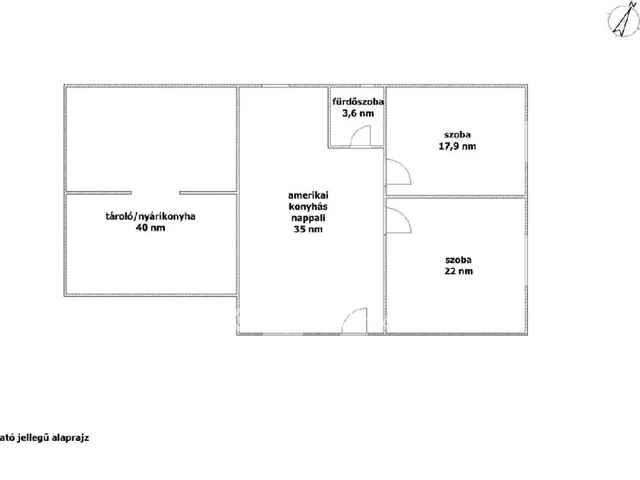
Fejér megye, Pusztaszabolcs 113 nm-es családi ház eladó. A felújított, tégla falazatú lakóingatlan a település központjához közel egy 550 nm-es telken helyezkedik el. A tehermentes családi házban amerikai konyhás nappali, két tágas hálószoba és fürdőszoba található, valamint az ingatlanhoz tartozik egy hozzáépített 40 nm-es tároló(fele beszámítva a hasznos alapterületbe), mely több szoba kialakítására alkalmas, alatta pedig egy 30 nm-es pince található. A belső felújítás során cserélték a víz-és villanyvezetékeket, az összes nyílászárót műanyagra, az összes burkolatot, teljes aljzatcsere és aljzatszigetelés, mennyezetszigetelés, új gépesített konyhabútor. A meghirdetett ár tartalmazza a külső szigetelést is. A fűtésről új kombi gázkazán és új hűtő fűtő klíma gondoskodik. Séta távolságra a vasútállomás, boltok, gyógyszertár, orvosi rendelő, óvoda, iskola, játszótér, polgármesteri hivatal. Teljes körű ügyintézésben segítjük ügyfeleinket díjtalanul: CSOK igénylése, kedvezményes hitel mobil bankári szolgáltatással, adásvétel teljes lebonyolításával. Energetikai tanúsítvány nem áll rendelkezésre.
Tulajdonságok
Családi ház
1
Átlagos
Gázkazán
1980
Nem adta meg a hirdető
Vedd fel a kapcsolatot a hirdetővel

+36 20 487 4
Hitelkalkulátor
Második évtől
266 389 Ft A 13. hónaptól
7,99%
Végig fix Futamidő: 20 év Banki visszahívás
Az OTP Bank munkatársai a neked megfelelő napszakban veszik fel veled a kapcsolatot. A becslés a hirdető által megadott adatokon alapul. A jelen tájékoztatás nem minősül ajánlattételnek és nem teljes körű, az egyes feltételek a hitelbírálat eredményétől függően változhatnak. Kérjük, a részletekről tájékozódj az OTP Bank fiókjaiban vagy az OTP Bank honlapján közzétett vonatkozó Üzletszabályzatokból és Hirdetményekből.
Vedd fel a kapcsolatot a hirdetővel

+36 20 487 4
Vedd fel a kapcsolatot a hirdetővel

+36 20 487 4
UI_KIT.CHARACTER_COUNTER__COMPONENT.ACTUAL_CHARACTER__SR_ONLY UI_KIT.CHARACTER_COUNTER__COMPONENT.MAXIMUM_CHARACTER__SR_ONLY
Hasonló eladó ingatlanok Pusztaszabolcson
Frissítve: 4 napja
11
64,9 millió Ft 729,2 ezer Ft/m²
Eladó családi ház, Pusztaszabolcs
Frissítve: 1 napja
17
66 millió Ft 673,5 ezer Ft/m²
Eladó családi ház, Pusztaszabolcs

Frissítve: ma
17
66 millió Ft 673,5 ezer Ft/m²
Eladó családi ház, Pusztaszabolcs


Fedezd fel a
hasonló házakat!Még további házak Pusztaszabolcson 61,9 M Ft körüli értékben
Tovább a hirdetésekhez Frissítve: ma
17
66 millió Ft 673,5 ezer Ft/m²
Eladó családi ház, Pusztaszabolcs

Frissítve: ma
9
65,5 millió Ft 1,01 millió Ft/m²
Eladó családi ház, Pusztaszabolcs
Frissítve: 23 napja
1
67,5 millió Ft 562,5 ezer Ft/m²
Eladó családi ház, Pusztaszabolcs
