+17 fotó
Hirdetéskód: 8777153
Referenciaszám: 389103
Frissítve: 11 napja
Ráckeve eladó családi ház 3 szobás: 81,6 millió Ft
81,6 millió Ft
800 000 Ft/m²
102 m²
836 m²
3 szoba
Eladó családi ház Ráckeve, 102nm, 81.600.000Ft - Szent Vendel út közelében
Eladó új építésű önálló családi házak Ráckevén!
Most épülő új lakóparkban kínálunk megvételre új építésű, önálló családi házakat. 16 db telek van a kivitelező tulajdonában, melyek 800-1000 nm közöttiek, ön még választhat!
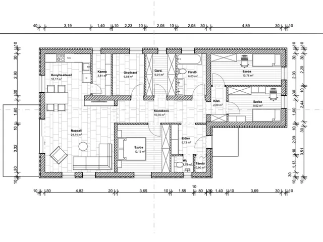
A választható ingatlanok alaprajz szerint:
1,- nappali + 2 hálószobás kialakítás nettó 102 nm - 81.600.000.-Ft,
2,- nappali + 3 hálószobás kialakítás nettó 110 nm - 88.000.000.-Ft,
A belső falak jelenleg még az ön igényei szerint alakíthatóak, illetve ha nagyobb alapterületű ingatlanra van szüksége az is kivitelezhető.
Műszaki paraméterek:
- porotherm 30-as tégla falak, 15 cm külső szigetelés,
- műanyag 3 rétegű nyílászárók redőnnyel, szúnyoghálóval szerelve,
- fűtést és a melegvizet gázkazán biztosítja padlófűtéses hőleadással,
- 3 db hűtő-fűtő klíma,
- burkolatok 10.000.-Ft/nm árig,
- beltéri ajtók 150.000.Ft/db árig,
- bejárati ajtó 300.000.-Ft -ig,
- szaniterek -Mofém,Grohe, vagy Alföldi tipusok kerülnek beépítésre,
- terasz burkolva,
- 1 autónak térkövezett beálló,
- oldalt beton kerítés, elől WPC,
Opcionálisan kérhető:
- Hibrid fűtésrendszer- a gázfűtés mellé hőszivattyút is szerelnek, ennek ára: 1.350.000.-Ft,
- 3 Kw napelem felszerelése 1.500.000.-Ft,
- belsőépítészeti munák a mellékelt fotók alapján, ennek ára megegyezés szerint.
A telkek közötti térkövezett utat ( 5 méter széles) , és a járdákat a kivitelező építi. A tulajdonos célja egy zárt lakópark kialakítása ahol a tervek alapján egy magánbölcsöde is épül.
Birtokbaadás: 2026. negyedik negyedéve.
Iskola, óvoda, orvosi rendelő, Penny, buszmegálló 5-10 perc sétával elérhető.
Amivel segítjük az Ön ingatlanvásárlását:
- ingyenes hitelügyintézés,
- jogi háttér,
- földhivatali ügyintézés,
- energetikai tanúsítvány,
- a vevő számára az ingatlanközvetítés ingyenes.
Irodánk 30 éves szakmai tapasztalattal áll ügyfelei rendelkezésére!
Várom szíves megkeresését! ...TOVÁBBI, TÖBBEZRES INGATLAN KÍNÁLAT: www.gdn-ingatlan.hu - GDN azonosító: 389103
Tulajdonságok
Családi ház
1
Új építésű
Gáz (héra)
2025
Nem adta meg a hirdető
Vedd fel a kapcsolatot a hirdetővel
+36 70 269 5
Hitelkalkulátor
Második évtől
351 169 Ft A 13. hónaptól
7,99% 8,49%
Végig fix Futamidő: 20 év Banki visszahívás
Az OTP Bank munkatársai a neked megfelelő napszakban veszik fel veled a kapcsolatot. A becslés a hirdető által megadott adatokon alapul. A jelen tájékoztatás nem minősül ajánlattételnek és nem teljes körű, az egyes feltételek a hitelbírálat eredményétől függően változhatnak. Kérjük, a részletekről tájékozódj az OTP Bank fiókjaiban vagy az OTP Bank honlapján közzétett vonatkozó Üzletszabályzatokból és Hirdetményekből.
Vedd fel a kapcsolatot a hirdetővel
+36 70 269 5
Vedd fel a kapcsolatot a hirdetővel
+36 70 269 5
UI_KIT.CHARACTER_COUNTER__COMPONENT.REMAINING_SPACE__SR_ONLYUI_KIT.CHARACTER_COUNTER__COMPONENT.MAXIMUM_CHARACTER__SR_ONLY
Hasonló eladó ingatlanok Ráckevén
Frissítve: 27 napja
20
88,9 M Ft 786 726 Ft/m²
Eladó családi ház, Ráckeve

Frissítve: 27 napja
20
87,9 M Ft 777 877 Ft/m²
Eladó családi ház, Ráckeve

Frissítve: 24 napja
20
84,9 M Ft 530 625 Ft/m²
Eladó családi ház, Ráckeve

Fedezd fel a
hasonló házakat!Még további házak Ráckevén 81,6 M Ft körüli értékben
Tovább a hirdetésekhez Frissítve: 28 napja
20
77,9 M Ft 581 343 Ft/m²
Eladó családi ház, Ráckeve
Frissítve: 18 napja
20
Ráckeve Dunaparti családi házak
77,99 M Ft 519 933 Ft/m²
Eladó családi ház, Ráckeve

Frissítve: 3 napja
20
79 M Ft 464 706 Ft/m²
Eladó családi ház, Ráckeve

