+7 fotó
Hirdetéskód: 8802768
Referenciaszám: 4892_164
Frissítve: 16 napja
Ráckeve eladó családi ház 4 szobás: 74,9 millió Ft
74,9 millió Ft
706,6 ezer Ft/m²
106 m²
1000 m²
4 szoba
Leírás
3%-OS HITEL, CSOK+, ILLETÉKMENTESSÉG, ZÖLD-HITEL, ENERGIATAKARÉKOS HÁZ!!!
Csak a Dream Credit kínálatában!!
Megvételre kínálom Ráckevén, Gyönyörű zöld környezetben, 2 percre a kisDunától ezt az új építésű, 4szobás ÖNÁLLÓ CSALÁDI házat, hatalmas telekkel.
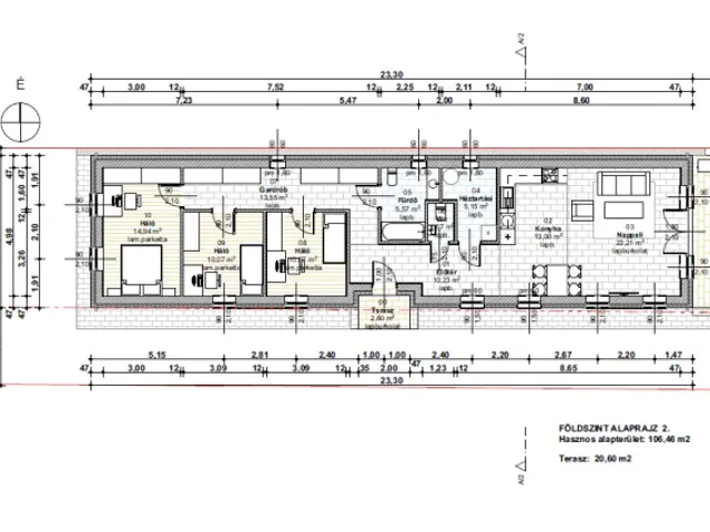
Az ingatlan Hasznos alapterület: 106,46 m2 Terasz: 20,60 m2 Kert: 1000 m2
-Amerikai-konyha-nappali
-3db hálószoba
-kamra
-fürdő
-wc
MEGBÍZHATÓ, REFERENCIÁVAL RENDELKEZŐ KIVITELEZŐTŐL!!!
A fűtéséről, NAPELEMMEL KOMBINÁLHATÓ, HŐSZIVATTYÚ gondoskodik, padlófűtéssel.
KIEMELKEDŐ műszaki tartalom.
Alapozás C-12-16/KK beton sávalap, lábazat 2 sor zsalukő PC simított
Teherhordó falazat: PTH 30, válaszfal PHT 10
Födém: faszerkezet 20 cm Therwoolin szigetelés, 12,5 mm gipszkarton
Héjazat: Bramach Duna betoncserép
Külső nyílászárók: FEHNSTER műanyag, Thermo nyílászárók 3 rétegű
Ereszcsatorna: körben antracit
Külső homlokzat: 10 cm grafitos dryvit, Kingston,v secret vödrös nemes vakolat fehér színekben
Kapcsolók- konnektorok: 50db
Fűtés: padlófűtés, hőszivatyú fűtés, Hajdu hőszivattyú, Hajdu villanybojler
Belső nyílászárók: utólag beszerelhető antracit beltéri ajtó
Hidegburkolatok: Padlólap 10.000Ft/nm-ig.
Meleg burkolatok: Laminált parketta 10.000 Ft/nm-ig
Fürdőszobában csempe: 2 m magasan, wc-ben: 150 cm magasan
Konyhában két bútor közt 60 cm
Csaptelepek:20.000 Ft/db
Szaniteráruk: ALFÖLDI porcelán mosdó 50.000 Ft, WC 40.000 Ft (mű .a. tartállyal), 170-es akril kád 120.000 Ft
Teraszburkolat: Csak munkadíj. Anyag, ragasztó, élvédő vásárlása a vevő költsége, ha vevő a terven megadott m2-nél nagyobb teraszt kér annak költségét vevő viseli.
Festés: 2X glettelés, DISZPERZITEZÉS festés fehér színben
Műszaki járda: 60 cm beton a ház körül + a kerítéstől a bejáratig 100 cm
Kerítés: Elválasztó kerítés. Utcafronti kerítés, antracit szürke , díszkövekből áll,
Választható: napelem közökkel, amit igény szerint rá tud kötni saját rendszerére is.
Általános tereprendezés, földfeltöltés nélkül
Közművek: Villany 220 V, Vezetékes víz, csatorna
H-tarifás óra
Riasztó kiállás
Elektromos kapu kiállás
Cégünk INGYENES, iroda és bank-független Hitel ügyintézéssel is rendelkezésére áll, nem csak nálunk vásárolt ingatlanokra!!
Kérdés és-vagy időpont egyeztetés miatt hívjon bátran akár hétvégén is.
Amennyiben nem tudom felvenni visszahívom.
Tulajdonságok
Családi ház
1
Új építésű
Nem adta meg a hirdető
Vedd fel a kapcsolatot a hirdetővel
+36 70 779 8
Hitelkalkulátor
Második évtől
322 335 Ft A 13. hónaptól
7,99% 8,49%
Végig fix Futamidő: 20 év Banki visszahívás
Az OTP Bank munkatársai a neked megfelelő napszakban veszik fel veled a kapcsolatot. A becslés a hirdető által megadott adatokon alapul. A jelen tájékoztatás nem minősül ajánlattételnek és nem teljes körű, az egyes feltételek a hitelbírálat eredményétől függően változhatnak. Kérjük, a részletekről tájékozódj az OTP Bank fiókjaiban vagy az OTP Bank honlapján közzétett vonatkozó Üzletszabályzatokból és Hirdetményekből.
Vedd fel a kapcsolatot a hirdetővel
+36 70 779 8
Vedd fel a kapcsolatot a hirdetővel
+36 70 779 8
UI_KIT.CHARACTER_COUNTER__COMPONENT.ACTUAL_CHARACTER__SR_ONLY UI_KIT.CHARACTER_COUNTER__COMPONENT.MAXIMUM_CHARACTER__SR_ONLY
Hasonló eladó ingatlanok Ráckevén
Frissítve: 5 hónapja
1
76 millió Ft 628,1 ezer Ft/m²
Eladó ikerház, Ráckeve
Frissítve: 1 hónapja
16
79 millió Ft 731,5 ezer Ft/m²
Eladó családi ház, Ráckeve
Frissítve: 23 napja
14
76 millió Ft 593,8 ezer Ft/m²
Eladó ikerház, Ráckeve


Fedezd fel a
hasonló házakat!Még további házak Ráckevén 74,9 M Ft körüli értékben
Tovább a hirdetésekhez Frissítve: 21 napja
15
76 millió Ft 931,3 ezer Ft/m²
Eladó ikerház, Ráckeve

Frissítve: 10 napja
7
70 millió Ft 1,17 millió Ft/m²
Eladó családi ház, Ráckeve

Frissítve: 9 hónapja
1
79 millió Ft 493,8 ezer Ft/m²
Eladó családi ház, Ráckeve
