+17 fotó
Hirdetéskód: 8854633
Referenciaszám: 391834
Frissítve: 18 napja
Seregélyes eladó családi ház 4 szobás: 65,9 millió Ft
65,9 millió Ft
652,5 ezer Ft/m²
101 m²
1020 m²
4 szoba
Eladó családi ház Seregélyes, 101nm, 65.900.000Ft - Központ
Vh-004501 Seregélyes központjában 101m2 hasznos alapterületű, nappali +3 hálószobás, önálló, teljes körűen felújított és újra gondolt családi ház 1020m2-es telekterülettel eladó!
A település rendezett, folyamatosan fejlődik és bővül. Székesfehérvártól, illetve a Velencei-tó partjától mindössze 15 perc autóútra található. A településen számos buszmegálló és vasútállomás is található. Az ingatlan környezetében szinte minden elérhető, ami a kényelmes életvitelhez elengedhetetlen (gyógyszertár, orvosi rendelő, általános és középiskola, posta, bank, boltok, sportpályák...).
Az ingatlan 1976-ban épült vegyesfalazattal (vályog, tégla).
Az elmúlt évek során teljeskörű felújításon esett át, mely magába foglalja a víz,- és villanyvezeték, nyílászárók, hideg-meleg burkolatok cseréjét, a villanyhálózat 32 A-ra bővült (nappali és éjszakai áram).
A teljes fűtésrendszer korszerűsítve lett.
A homlokzati falak 5cm vastag szigetelést kaptak, a vályog részre légáteresztő vakolat is került.
A tetőszerkezet felújított, új fedést kapott. A födém fából készült, 30cm vastag kőzetgyapottal szigetelve, a padlástér járhatóvá lett téve.
A padló is új szigeteléssel lett ellátva.
Lábazata terméskő, az ingatlan nem vizesedik, műszakilag kiváló állapotú.
A ház melegét egy teljesen új Ariston kazán biztosítja radiátoros hőleadással.
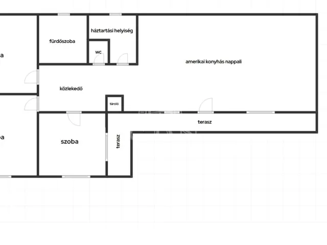
Elosztását tekintve 101m2 hasznos alapterületű.
Amerikai konyhás nappali, közlekedő, 3 tágas hálószoba, fürdőszoba, vendég WC, háztartási helyiség került kialakításra.
A telek 1020m2-es teljesen körbekerített, található rajta 2 ásott kút és számos gyümölcsfa is. A bejutás elektromos kapun keresztül biztosított. A helyi építési szabályzat lehetőséget kínál további melléképületek, garázs kialakítására.
Utcafrontja: 20m
Az ingatlan per,-és tehermentes, azonnal költözhető.
Eladási irányár: 65,9 M Ft
A terület mérete számos lehetőséget kínál a kikapcsolódásra, legyen szó kertművelésről vagy medence kialakításáról.
Ideális választás mindenki számára, legyen szó gyermekkel költöző családoknak, vagy pihenni vágyóknak, illetve az elhelyezkedése miatt befektetésre is tökéletes választás.
A ház a kényelmes otthont biztosít a lakók számára, mind a belső lakrészben, mind a kert, udvar, illetve a terasz területén. Nyugalmat sugároz, a mindennapos rohanások után.
Ha felkeltette érdeklődését, hívjon bizalommal, éljen ingyenes, személyre szabott hitelügyintézés szolgáltatásunkkal. Segítünk továbbá adásvételhez szükséges ügyvédi közreműködésben, energetikai tanúsítvány, valamint értékbecslés elkészítésében
.
For English details please send us a message or an e-mail, thank you. ...TOVÁBBI, TÖBBEZRES INGATLAN KÍNÁLAT: www.gdn-ingatlan.hu - GDN azonosító: 391834
Tulajdonságok
Családi ház
1
Felújított
Gázkazán
1973
10 m²
A
Vedd fel a kapcsolatot a hirdetővel
+36 20 583 7
Hitelkalkulátor
Második évtől
283 604 Ft A 13. hónaptól
7,99%
Végig fix Futamidő: 20 év Banki visszahívás
Az OTP Bank munkatársai a neked megfelelő napszakban veszik fel veled a kapcsolatot. A becslés a hirdető által megadott adatokon alapul. A jelen tájékoztatás nem minősül ajánlattételnek és nem teljes körű, az egyes feltételek a hitelbírálat eredményétől függően változhatnak. Kérjük, a részletekről tájékozódj az OTP Bank fiókjaiban vagy az OTP Bank honlapján közzétett vonatkozó Üzletszabályzatokból és Hirdetményekből.
Vedd fel a kapcsolatot a hirdetővel
+36 20 583 7
Vedd fel a kapcsolatot a hirdetővel
+36 20 583 7
UI_KIT.CHARACTER_COUNTER__COMPONENT.ACTUAL_CHARACTER__SR_ONLY UI_KIT.CHARACTER_COUNTER__COMPONENT.MAXIMUM_CHARACTER__SR_ONLY
Hasonló eladó ingatlanok Seregélyesen
Frissítve: 18 napja
20
65,9 millió Ft 652,5 ezer Ft/m²
Eladó családi ház, Seregélyes

Frissítve: 2 napja
3
72 millió Ft 496,6 ezer Ft/m²
Eladó családi ház, Seregélyes
Frissítve: 18 napja
20
70,5 millió Ft 587,5 ezer Ft/m²
Eladó családi ház, Seregélyes


Fedezd fel a
hasonló házakat!Még további házak Fejér megyében 65,9 M Ft körüli értékben
Tovább a hirdetésekhez Frissítve: 4 napja
20
70,5 millió Ft 587,5 ezer Ft/m²
Eladó családi ház, Seregélyes

Frissítve: ma
20
70,5 millió Ft 587,5 ezer Ft/m²
Eladó családi ház, Seregélyes

Feltöltve: 8 napja
20
70,5 millió Ft 587,5 ezer Ft/m²
Eladó családi ház, Seregélyes

