

 +11 fotó 
Hirdetéskód: 8583813
Referenciaszám: M304289-4965740
 Frissítve: 7 napja 
Siófok eladó családi ház 3+1 fél szobás: 78,5 millió Ft
 78,5 millió Ft 
 740 566 Ft/m² 
 106 m²  
 800 m²  
 3+1 fél szoba 
Eladó Ház, Siófok
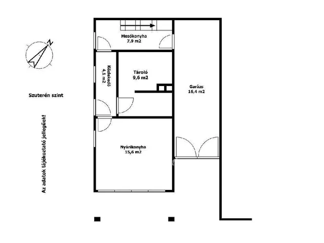
 Balaton déli part Siófok 160 m2 családi ház eladó. Az ingatlan Kiliti városrészben családi házas övezetben helyezkedik el. A két szintes lakóépület alsó szintjén garázs, nyári konyha, mosókonyha és tároló kapott helyet, alkalmas lehet külön lakrészként való hasznosításra. A két szint belső lépcsővel összekötött. A 108 m2-es lakószinten a lakóelőtérből 3 szoba és egy félszoba nyílik. A kedvező tájolású nappalihoz teraszkapcsolat biztosított. A tetőtér jelenleg padlásként funkcionál, belső lépcsőről megközelíthető, de külső lépcső építése és tetőtér beépítése esetén nettó 90 m2-es önálló lakásként használható lehet. A lakóépület tetőfedése néhány éve felújításra került. A ház fűtés kombi gázkazánnal, radiátoros hőleadókkal kiépített a lakószinten, a szuterénben gázkonvektor fűt. Az összközműves, bekerített telek terület 800 m2, melyen további gazdasági épület: tároló, műhely található. A lakóépület vásárláshoz OTP hitel, CSOK+ hitel igénybe vehető, ügyintézésben ingyenes szakértői segítséget nyújtunk. Balaton-part 3200 méter, autópálya csatlakozás 1200 méter távolságban van. Bővebb információért keressen telefonon!   (M304289)
 78500000 Ft
Referencia szám: M304289 
Tulajdonságok
Családi ház
Átlagos
Gázkazán
1982
Nem adta meg a hirdető
Vedd fel a kapcsolatot a hirdetővel
 +36 70 393 4 
Hitelkalkulátor
 Második évtől 
 337 828 Ft  A 13. hónaptól 
 7,99% 
 Végig fix  Futamidő: 20 év Banki visszahívás
Az OTP Bank munkatársai a neked megfelelő napszakban veszik fel veled a kapcsolatot. A becslés a hirdető által megadott adatokon alapul. A jelen tájékoztatás nem minősül ajánlattételnek és nem teljes körű, az egyes feltételek a hitelbírálat eredményétől függően változhatnak. Kérjük, a részletekről tájékozódj az OTP Bank fiókjaiban vagy az OTP Bank honlapján közzétett vonatkozó Üzletszabályzatokból és Hirdetményekből. 
Vedd fel a kapcsolatot a hirdetővel
 +36 70 393 4 
Vedd fel a kapcsolatot a hirdetővel
 +36 70 393 4 
UI_KIT.CHARACTER_COUNTER__COMPONENT.REMAINING_SPACE__SR_ONLYUI_KIT.CHARACTER_COUNTER__COMPONENT.MAXIMUM_CHARACTER__SR_ONLY
Hasonló eladó ingatlanok Siófokon
 Frissítve: 8 napja 

 3 
 72 M Ft  545 455 Ft/m² 
 Eladó családi ház, Siófok 

 Frissítve: 8 napja 

 7 
 71,8 M Ft  1 087 879 Ft/m² 
 Eladó családi ház, Siófok 

 Frissítve: 8 napja 

 10 
 72 M Ft  1 200 000 Ft/m² 
 Eladó családi ház, Siófok 


Fedezd fel a 
hasonló házakat!Még további házak Siófokon 78,5 M Ft körüli értékben
 Tovább a hirdetésekhez  Frissítve: 19 napja 

 7 
 71,8 M Ft  1 087 879 Ft/m² 
 Eladó családi ház, Siófok 

 Frissítve: 19 napja 

 3 
 72 M Ft  545 455 Ft/m² 
 Eladó családi ház, Siófok 

 Frissítve: 2 napja 

 11 
 72,9 M Ft  1 072 059 Ft/m² 
 Eladó ikerház, Siófok 


Töltsd fel hirdetésed ingyenesen!
Egyszerű 

