

+1 fotó
Hirdetéskód: 8749416
Referenciaszám: 22912
Frissítve: ma
Szeged eladó családi ház 5 szobás: 159,9 millió Ft
159,9 millió Ft
1 066 000 Ft/m² *
* A m² árat a hirdető adta meg.
150 m²
500 m²
5 szoba
Eladó családi ház, Petőfitelep!
Home&People azonosító: #22912
Marton Laura Vezető referens 06302237719
AMENNYIBEN KOLLÉGÁNK ELFOGLALT, KÉRJEN VISSZAHÍVÁST A SMS-BEN A 06302237719-es TELEFONSZÁMON AZ INGATANAZONOSÍTÓ MEGJELÖLÉSÉVEL!
ELADÓ CSALÁDI HÁZ, SZEGED!
Eladásra kínálom Szegeden az alábbi paraméterekkel rendelkező új építésű ingatlant:
Lokáció: Szeged-Petőfitelep
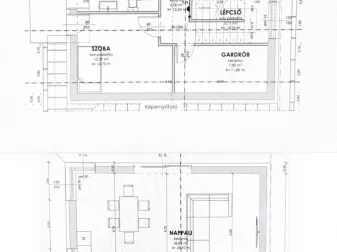
Elosztása:
Földszint: előtér, amerikai konyhás-étkezős nappali, hálószoba, fürdőszoba, mosókonyha, terasz
Emelet: 3 db hálószoba, gardróbszoba/hálószoba, fürdőszoba, wc, közlekedő, háztartási helység/gardrób
Telek: cc. 500 m2
Kulcsrakész átadás: ‘26 IV.Negyedév
Falazat: tégla
Hőszivattyú /padlófűtés/
Választható belső design
Minőségi kivitelezés, magas műszaki tartalom, megtekinthető referencia házak
Cégünk az ügyfeleink részére ingyenesen vállalja, a megegyezés sikeres lebonyolítását, jogi tanácsadást, illetve teljeskörü CSOK és hitel ügyintézést!
Kérje ingyenes tájékoztatásunkat telefonon, vagy személyesen irodánkban a Bécsi krt. 18. szám alatt!
Amennyiben felkeltettem érdeklődését, kérem hívjon bizalommal.
A kínálatában található összes ingatlannal kapcsolatban felvilágosítást tudunk nyújtani, a Home and People Ingatlanügynökség szegedi irodájában a Bécsi krt. 18. szám alatt.
Szolgáltatásaink vevőink részére díjmentesek.
Irányár: 159.900.000 Ft
H&P azonosító: #22912
Tulajdonságok
Családi ház
1
Új építésű
Geotermikus
2026
Nem adta meg a hirdető
Vedd fel a kapcsolatot a hirdetővel
+36 30 223 7
Hitelkalkulátor
Második évtől
688 137 Ft A 13. hónaptól
7,99% 8,49%
Végig fix Futamidő: 20 év Banki visszahívás
Az OTP Bank munkatársai a neked megfelelő napszakban veszik fel veled a kapcsolatot. A becslés a hirdető által megadott adatokon alapul. A jelen tájékoztatás nem minősül ajánlattételnek és nem teljes körű, az egyes feltételek a hitelbírálat eredményétől függően változhatnak. Kérjük, a részletekről tájékozódj az OTP Bank fiókjaiban vagy az OTP Bank honlapján közzétett vonatkozó Üzletszabályzatokból és Hirdetményekből.
Vedd fel a kapcsolatot a hirdetővel
+36 30 223 7
Vedd fel a kapcsolatot a hirdetővel
+36 30 223 7
UI_KIT.CHARACTER_COUNTER__COMPONENT.REMAINING_SPACE__SR_ONLYUI_KIT.CHARACTER_COUNTER__COMPONENT.MAXIMUM_CHARACTER__SR_ONLY
Hasonló eladó ingatlanok Petőfitelep városrészben
Frissítve: 21 napja

12
147,9 M Ft 1 155 469 Ft/m²
Eladó családi ház, Szeged, Petőfitelep
Frissítve: 22 napja

6
168 M Ft 1 226 277 Ft/m²
Eladó családi ház, Szeged, Petőfitelep
Frissítve: 6 napja

20
149 M Ft 1 295 652 Ft/m²
Eladó ikerház, Szeged, Petőfitelep

Fedezd fel a
hasonló házakat!Még további házak Szegeden 159,9 M Ft körüli értékben
Tovább a hirdetésekhez Frissítve: 21 napja

11
148,9 M Ft 1 063 571 Ft/m²
Eladó családi ház, Szeged, Petőfitelep
Frissítve: 6 napja

19
148,9 M Ft 992 667 Ft/m²
Eladó családi ház, Szeged, Petőfitelep
Frissítve: 1 napja

10
148,9 M Ft 1 063 571 Ft/m²
Eladó családi ház, Szeged, Petőfitelep

Töltsd fel hirdetésed ingyenesen!
Egyszerű