+1 fotó
Hirdetéskód: 8966155
Frissítve: 1 hónapja
Szeged eladó családi ház 4 szobás: 123,99 millió Ft
123,99 millió Ft
1,24 millió Ft/m²
100 m²
450 m²
4 szoba
Eladó új építésű ház, Petőfitelep!
Eladásra kínálom Szegeden az alábbi paraméterekkel rendelkező ingatlant:
- Lokáció: Petőfitelep kertvárosi alacsony autós forgalmú utcája
- Telken belüli elhelyezkedés: Szabadonálló, nincs közös fala másik épülettel
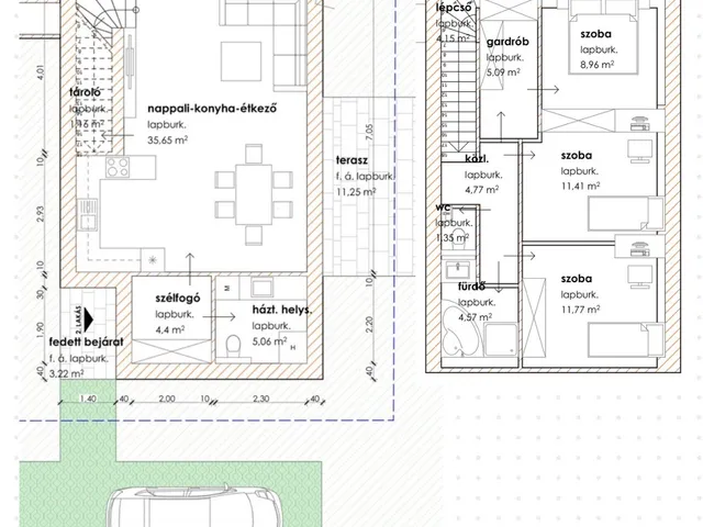
- Ingatlan nettó 100 m2, Kert cc 500 m2
- Elosztása:
Földszint: előtér, háztartási helyiség/mosókonyha, amerikai konyhás nappali, wc, terasz
Emelet: 3 db hálószoba, gardróbszoba/dolgozószoba, fürdőszoba, közlekedő
- Kulcsrakész átadás: 2026. december
- Falazat: Porotherm 30K
- Szigetelés falakon: 10cm EPS
- Födém: monolit vasbeton
- Fűtés : levegő-víz hőszivattyúval történik, a fűtési rendszer nedves fektetésű padlófűtés, 2 db osztó-gyűjtővel, 2 db termosztáttal a fűtési körökre.
Megbízható, tőkeerős kivitelező
Megtekinthető referencia munkák
Szakaszos finanszírozás
Alkalmas: Piaci jelzáloghitel, 3%-os Otthon Start, CSOK Plus
Tulajdonságok
Családi ház
2
Új építésű
Hőszivattyú
2026
12 m²
A+
Vedd fel a kapcsolatot a hirdetővel
MI
Marton Ingatlan Az iroda összes hirdetése
+36 30 333 2
Hitelkalkulátor
Második évtől
533 596 Ft A 13. hónaptól
7,99% 8,49%
Végig fix Futamidő: 20 év Banki visszahívás
Az OTP Bank munkatársai a neked megfelelő napszakban veszik fel veled a kapcsolatot. A becslés a hirdető által megadott adatokon alapul. A jelen tájékoztatás nem minősül ajánlattételnek és nem teljes körű, az egyes feltételek a hitelbírálat eredményétől függően változhatnak. Kérjük, a részletekről tájékozódj az OTP Bank fiókjaiban vagy az OTP Bank honlapján közzétett vonatkozó Üzletszabályzatokból és Hirdetményekből.
Vedd fel a kapcsolatot a hirdetővel
MI
Marton Ingatlan Az iroda összes hirdetése
+36 30 333 2
Vedd fel a kapcsolatot a hirdetővel
MI
Marton Ingatlan Az iroda összes hirdetése
+36 30 333 2
UI_KIT.CHARACTER_COUNTER__COMPONENT.ACTUAL_CHARACTER__SR_ONLY UI_KIT.CHARACTER_COUNTER__COMPONENT.MAXIMUM_CHARACTER__SR_ONLY
Hasonló eladó ingatlanok Szegeden
Frissítve: 4 napja
2
120,99 millió Ft 1,19 millió Ft/m²
Eladó családi ház, Szeged
Frissítve: 2 napja
11
119 millió Ft 1,03 millió Ft/m²
Eladó családi ház, Szeged

Frissítve: 9 napja
20
129 millió Ft 416,1 ezer Ft/m²
Eladó családi ház, Szeged


Fedezd fel a
hasonló házakat!Még további házak Szegeden 123,99 M Ft körüli értékben
Tovább a hirdetésekhez Frissítve: 5 napja
20
119 millió Ft 850 ezer Ft/m²
Eladó családi ház, Szeged

Frissítve: 1 hónapja
16
115 millió Ft 1,44 millió Ft/m²
Eladó családi ház, Szeged

Frissítve: 11 napja
20
119 millió Ft 820,7 ezer Ft/m²
Eladó ikerház, Szeged

