

+12 fotó
Hirdetéskód: 8286690
Referenciaszám: ingatlancoachdaniel@gmail.com
Frissítve: 10 napja
Szentendre eladó családi ház 5 szobás: 209,9 millió Ft
209,9 millió Ft
945 495 Ft/m²
222 m²
1076 m²
5 szoba
Leírás
Eladó Új Építésű Családi Ház Szentendrén - English below
Az ár kulcsrakész állapotra vonatkozik! CSOK Plusz igényelhető!
Fedezze fel új otthonát!
Rövid összefoglaló
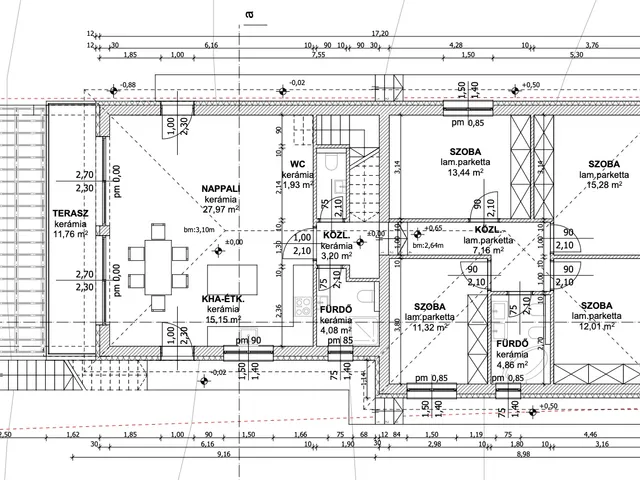
Modern, mélygarázsos, bruttó 222 nm alapterületű, nettó 170 nm-es családi ház eladó gyönyörű panorámával.
Szentendre Pismány részén, 250 méterre a Barackos úti buszfordulótól.
Lehetőség van a saját igények kialakítására, a belső terek teljes mértékben személyre szabhatóak.
Befejezés várható időpontja 2024. év vége
Főbb jellemzők:
•Telek: 1076 m², örökpanorámás, ideális családi élethez.
•Parkolás: Pince szinten 30 m²-es garázs, plusz két autó számára parkolási lehetőség a telken.
•Földszint: Négy tágas szoba, két fürdőszoba, külön WC, közlekedő és amerikai konyhás étkező-nappali.
•Nappali: Hatalmas üvegfelületek, amelyek a teraszra vezetnek, gyönyörű kilátással.
Modern technológiák és kiváló anyagok:
•Építési anyagok: 30-as Porotherm tégla, 12 cm grafitos hőszigetelés.
•Födém: Vasbeton monolit födém.
•Nyílászárók: Műanyag, 3 rétegű, 7 kamrás antracit színben, elektromos redőnyökkel és szúnyoghálókkal.
•Burkolatok: Választható hideg- és melegburkolatok, beltéri ajtók, szaniterek.
Fűtési rendszer:
•Padlófűtés: Az ingatlan minden helyiségében.
•Használati melegvíz: 300 literes HMV tároló.
•Energiahatékonyság: Hőszivattyú és napelem előkészítés.
Kiegészítő szolgáltatások:
•Biztonság: Riasztórendszer kiépítve.
•Klíma: Előkészítés a klímaberendezésekhez.
•Kaputelefon: Elektromos motorral működő kapu.
A hirdetett ár bruttó ár, 5%-os áfát tartalmaz.
Aki nem a belvárosban szeretne élni, csendre, nyugalomra vágyik, annak ez a családi otthon egy vonzó lehetőség.
Várom a hívását a hét bármely napján!
-------------------------------------------------------------------
For Sale: New Build Family House in Szentendre
The price refers to a turnkey condition! CSOK Plus is available!
Discover your new home!
Brief Summary
A modern, underground garage family house for sale, with a gross area of 222 m² and a net area of 170 m², offering a beautiful panoramic view. Located in the Pismány area of Szentendre, just 250 meters from the bus terminus on Barackos Road.
There is an opportunity to customize according to your needs; the interior spaces can be fully personalized.
Expected completion date: End of 2024.
Main Features:
Plot Size: 1076 m², with eternal panorama, ideal for family life.
Parking: 30 m² garage on the basement level, plus parking for two cars on the property.
Ground Floor: Four spacious rooms, two bathrooms, separate WC, hallway, and an American-style kitchen-dining-living area.
Living Room: Huge glass surfaces leading to the terrace, offering beautiful views.
Modern Technologies and High-Quality Materials:
Building Materials: 30 cm Porotherm bricks, 12 cm graphite insulation.
Ceiling: Reinforced concrete monolithic ceiling.
Windows: Plastic, triple-glazed, 7-chamber anthracite color, with electric shutters and mosquito nets.
Finishes: Choice of cold and warm coverings, interior doors, sanitary ware.
Heating System:
Underfloor Heating: Present in every room.
Hot Water Supply: 300-liter hot water storage.
Energy Efficiency: Heat pump and solar panel preparation.
Additional Services:
Security: Alarm system installed.
Air Conditioning: Preparation for air conditioning units.
Intercom: Gate operated by an electric motor.
The advertised price is a gross price, including 5% VAT.
For those who wish to live away from the city center and desire peace and quiet, this family home is an attractive option.
I look forward to your call any day of the week!
Let me know if you need any adjustments!
Tulajdonságok
Családi ház
2
Új építésű
Hőszivattyú
2024
Nem adta meg a hirdető
Vedd fel a kapcsolatot a hirdetővel
Vas Dàniel Az iroda összes hirdetése
+36 20 417 7
Hitelkalkulátor
Második évtől
903 314 Ft A 13. hónaptól
7,99% 8,49%
Végig fix Futamidő: 20 év Banki visszahívás
Az OTP Bank munkatársai a neked megfelelő napszakban veszik fel veled a kapcsolatot. A becslés a hirdető által megadott adatokon alapul. A jelen tájékoztatás nem minősül ajánlattételnek és nem teljes körű, az egyes feltételek a hitelbírálat eredményétől függően változhatnak. Kérjük, a részletekről tájékozódj az OTP Bank fiókjaiban vagy az OTP Bank honlapján közzétett vonatkozó Üzletszabályzatokból és Hirdetményekből.
Vedd fel a kapcsolatot a hirdetővel
Vas Dàniel Az iroda összes hirdetése
+36 20 417 7
Vedd fel a kapcsolatot a hirdetővel
Vas Dàniel Az iroda összes hirdetése
+36 20 417 7
UI_KIT.CHARACTER_COUNTER__COMPONENT.REMAINING_SPACE__SR_ONLYUI_KIT.CHARACTER_COUNTER__COMPONENT.MAXIMUM_CHARACTER__SR_ONLY
Hasonló eladó ingatlanok Pismány városrészben
Frissítve: 3 hónapja

1
225 M Ft 762 712 Ft/m²
Eladó családi ház, Szentendre, Pismány
Frissítve: 1 hónapja

1
194 M Ft 873 874 Ft/m²
Eladó családi ház, Szentendre, Pismány, Csóka u 22.
Frissítve: 2 napja

18
204,9 M Ft 1 095 722 Ft/m²
Eladó családi ház, Szentendre, Pismány


Fedezd fel a
hasonló házakat!Még további házak Szentendrén 209,9 M Ft körüli értékben
Tovább a hirdetésekhez Frissítve: 2 napja

20
230 M Ft 1 703 704 Ft/m²
Eladó családi ház, Szentendre, Pismány

Frissítve: 12 napja

20
230 M Ft 1 840 000 Ft/m²
Eladó családi ház, Szentendre, Pismány

Frissítve: 8 napja

15
199 M Ft 995 000 Ft/m²
Eladó családi ház, Szentendre, Pismány

Töltsd fel hirdetésed ingyenesen!
Egyszerű