

+7 fotó
Hirdetéskód: 8759672
Referenciaszám: 360011110-17
Feltöltve: 1 napja
Szentendre eladó családi ház 6 szobás: 149 millió Ft
149 millió Ft
876 471 Ft/m²
170 m²
1000 m²
6 szoba
SZENTENDRE ÚJ ÉPÍTÉSŰ HÁZ 170 NM
Csend,Tér és természet!
Új építésű otthon Szentendrén!
Szentendre csendes,zöldövezeti részén a Szentlászlói úton 2026-os kulcsrakész átadással megvételre kínálunk egy 170 nm-es kétszites családi házat saját 1000 nm-es panorámás telekkel.
A ház egy 2000 nm-es dupla besorolású LKE/2 telken épül,melyen két teljesen különálló,azonos kialakítású ingatlan kap helyet egymás felett.
Saját telekrésszel,külön bejárattal és közműórákkal.
Főbb jellemzők:
-alapterület:170 nm:
-Telekterület:1000nm
-Szintek száma:2
-Szobák száma:6
-Építés éve:2025
-Ár:149 millió Ft
-Állapot:Új építésű,kulcsrakész
-Parkolás:Udvari beálló,az árban benne van
-Kilátás:Panorámás
-Légkondicionálás:van
-Fűtés:Hőszivattyús rendszer
-Szigetelés:30-as tégla,15 cm-es hőszigeteléssel
-Nyilászárok:3 rétegű,6 légkamrás,elektromos redönnyel
Műszaki tartalom:
-Modern,energiatakarékos hőszivattyús fűtés
-Külön főmérő minden közműre
-Elektromos redönyök,3 rétegű ablakok
-Minőségi épitőanyagok,igényes belső kivitelezés
-A ház kulcsrakész állapotban kerül átadásra:burkolva,festve,szaniterekkel felszerelve.
-A kert rendezése az árban nincs benne
-Energetikai tanúsítvány folyamatban
1 szint:
-Előszoba:4,90nm
-közlekedő:7,44nm
-fürdőszoba:8,28nm
-háztartási helyiség:6,24nm
-konyha:11,60nm
-nappali:19,90nm
-szoba:11,59nm
-terasz:15nm
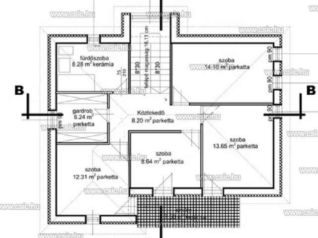
2 szint:
-közlekedő:8,20nm
-fürdőszoba:8,28nm
-gardrob:6,24nm
-szoba:14,10nm
-szoba:12,31nm
-szoba:13,65nm
-szoba:8,64nm
-erkély:7,50nm
Összes nettó alapterület 155,23nm
A ház Szentendre egyik kedvelt részén,a természethez közel,mégis jól megközelíthető helyen található.
Az épületek jól elhatároltan helyezkednek el a telken,biztositva a nyugalmat és a privát életteret.
Tulajdonságok
Családi ház
2
Új építésű
Nem adta meg a hirdető
Vedd fel a kapcsolatot a hirdetővel
+36 70 526 8
Hitelkalkulátor
Második évtől
641 228 Ft A 13. hónaptól
7,99% 8,49%
Végig fix Futamidő: 20 év Banki visszahívás
Az OTP Bank munkatársai a neked megfelelő napszakban veszik fel veled a kapcsolatot. A becslés a hirdető által megadott adatokon alapul. A jelen tájékoztatás nem minősül ajánlattételnek és nem teljes körű, az egyes feltételek a hitelbírálat eredményétől függően változhatnak. Kérjük, a részletekről tájékozódj az OTP Bank fiókjaiban vagy az OTP Bank honlapján közzétett vonatkozó Üzletszabályzatokból és Hirdetményekből.
Vedd fel a kapcsolatot a hirdetővel
+36 70 526 8
Vedd fel a kapcsolatot a hirdetővel
+36 70 526 8
UI_KIT.CHARACTER_COUNTER__COMPONENT.REMAINING_SPACE__SR_ONLYUI_KIT.CHARACTER_COUNTER__COMPONENT.MAXIMUM_CHARACTER__SR_ONLY
Hasonló eladó ingatlanok Szentendrén
Frissítve: 30 napja

14
159,9 M Ft 1 066 000 Ft/m²
Eladó családi ház, Szentendre
Frissítve: 30 napja

9
149 M Ft 1 064 286 Ft/m²
Eladó családi ház, Szentendre
Frissítve: 1 napja

20
139,9 M Ft 466 333 Ft/m²
Eladó családi ház, Szentendre

Fedezd fel a
hasonló házakat!Még további házak Szentendrén 149 M Ft körüli értékben
Tovább a hirdetésekhez Frissítve: 25 napja

9
149 M Ft 1 064 286 Ft/m²
Eladó ikerház, Szentendre
Frissítve: 25 napja

20
149 M Ft 1 064 286 Ft/m²
Eladó családi ház, Szentendre

Frissítve: 5 hónapja

1
159 M Ft 742 991 Ft/m²
Eladó családi ház, Szentendre, Vasúti villasor

Töltsd fel hirdetésed ingyenesen!
Egyszerű