+17 fotó
Hirdetéskód: 8972476
Referenciaszám: M320424-5200452
Frissítve: ma
Szigetszentmiklós eladó családi ház 6+1 fél szobás: 149,9 millió Ft
149,9 millió Ft
563 534 Ft/m²
266 m²
719 m²
6+1 fél szoba
Eladó Ház, Szigetszentmiklós
Tágas otthon és vállalkozás egy helyen! 266 m2-es családi ház Szigetszentmiklós szívében!
Leírás:
Szigetszentmiklós abszolút központjában, mégis nyugodt környezetben eladó egy kiváló adottságokkal rendelkező, nettó 266 négyzetméteres, kétgenerációsnak is alkalmas családi ház! Ha tágas tereket, központi elhelyezkedést és remek közlekedést keres, ez az ingatlan Önre vár.
Az ingatlan főbb jellemzői:
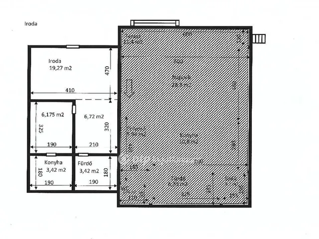
Alapterület: 266 m2 lakótér.
Elrendezés: 6 tágas szoba + 1 félszoba, amely ideális nagycsaládosoknak és otthoni vállalkozásra is.
Állapot: Jó állapotú, folyamatosan karbantartott Családi ház.
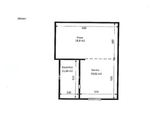
Telek: 719 m2-es parkosított udvar.
Miért válassza ezt a házat?
Központi elhelyezkedés: Szigetszentmiklós szívében minden karnyújtásnyira van: szakorvosi rendelő, Városháza, posta, iskolák, óvodák és bevásárlási lehetőségek.
Kiváló közlekedés: Az M0-ás autóút mindössze 5-8 perc alatt elérhető, így Budapest belvárosa vagy a környező agglomeráció is gyorsan megközelíthető.
Az OTP Bankcsoport teljeskörű ügyintézéssel áll az eladók és a vevők rendelkezésére! A kínálatunkból választott ingatlan finanszírozásához kedvezményes hitelkonstrukciókat kínálunk. Az adásvételi szerződés megkötéséhez igény szerint megbízható ügyvédi közreműködést biztosítunk és segítséget nyújtunk az adásvételhez kapcsolódó ügyek intézéséhez. Referenciaszám:M320424
Tulajdonságok
Családi ház
Felújított
Gázkazán
1980
Nem adta meg a hirdető
Vedd fel a kapcsolatot a hirdetővel
Máté Katalin OTPip - Szigetszentmiklós Tököli út 19.B - OTP Ingatlanpont Iroda Az iroda összes hirdetése
+36 70 324 2
Hitelkalkulátor
Második évtől
645 101 Ft A 13. hónaptól
7,99%
Végig fix Futamidő: 20 év Banki visszahívás
Az OTP Bank munkatársai a neked megfelelő napszakban veszik fel veled a kapcsolatot. A becslés a hirdető által megadott adatokon alapul. A jelen tájékoztatás nem minősül ajánlattételnek és nem teljes körű, az egyes feltételek a hitelbírálat eredményétől függően változhatnak. Kérjük, a részletekről tájékozódj az OTP Bank fiókjaiban vagy az OTP Bank honlapján közzétett vonatkozó Üzletszabályzatokból és Hirdetményekből.
Vedd fel a kapcsolatot a hirdetővel
Máté Katalin OTPip - Szigetszentmiklós Tököli út 19.B - OTP Ingatlanpont Iroda Az iroda összes hirdetése
+36 70 324 2
Vedd fel a kapcsolatot a hirdetővel
Máté Katalin OTPip - Szigetszentmiklós Tököli út 19.B - OTP Ingatlanpont Iroda Az iroda összes hirdetése
+36 70 324 2
UI_KIT.CHARACTER_COUNTER__COMPONENT.ACTUAL_CHARACTER__SR_ONLY UI_KIT.CHARACTER_COUNTER__COMPONENT.MAXIMUM_CHARACTER__SR_ONLY
Hasonló eladó ingatlanok Szigetszentmiklóson
Frissítve: 11 napja
20
149,9 M Ft 535 357 Ft/m²
Eladó családi ház, Szigetszentmiklós

Frissítve: ma
20
149 M Ft 541 818 Ft/m²
Eladó családi ház, Szigetszentmiklós

Frissítve: 11 napja
20
149 M Ft 541 818 Ft/m²
Eladó családi ház, Szigetszentmiklós


Fedezd fel a
hasonló házakat!Még további házak Szigetszentmiklóson 149,9 M Ft körüli értékben
Tovább a hirdetésekhez Frissítve: 2 hónapja
20
155,9 M Ft 649 583 Ft/m²
Eladó családi ház, Szigetszentmiklós
Frissítve: 3 napja
2
136 M Ft 1 000 000 Ft/m²
Eladó családi ház, Szigetszentmiklós

Frissítve: 11 napja
2
136 M Ft 1 000 000 Ft/m²
Eladó családi ház, Szigetszentmiklós

