+15 fotó
Hirdetéskód: 8813579
Referenciaszám: M314937-5099177
Frissítve: 16 napja
Szikszó eladó családi ház 2 szobás: 37 millió Ft
37 millió Ft
406,6 ezer Ft/m²
91 m²
1095 m²
2 szoba
Eladó Ház, Szikszó
Eladó családi ház Szikszó csendes utcájában, tágas telekkel!
Eladásra kínálok Szikszón, nyugodt, rendezett környezetben, egy 91 m2-es, családi házat, amely egy 1095 m2-es, gondozott telken helyezkedik el. Az ingatlan 1960-ban épült, főfalai vályogból, a mellékfalak téglából készültek.
Ideális választás családoknak vagy pároknak, akik csendes, biztonságos lakókörnyezetben keresnek otthont.
Az évek során a ház folyamatos karbantartást kapott, több fontos felújítás is megtörtént: műanyag, hőszigetelt nyílászárók, vízvezeték cseréje, villanyvezetékek részben felújítva, tetőszerkezet részben felújítva,30 cm vastag üveggyapot födémszigetelés, ami jó hőmegtartást biztosít.
A fűtést gázkonvektorok, a melegvizet villanybojler biztosítja, így a fenntartási költségek kedvezőek.
Helyiségek és burkolatok:
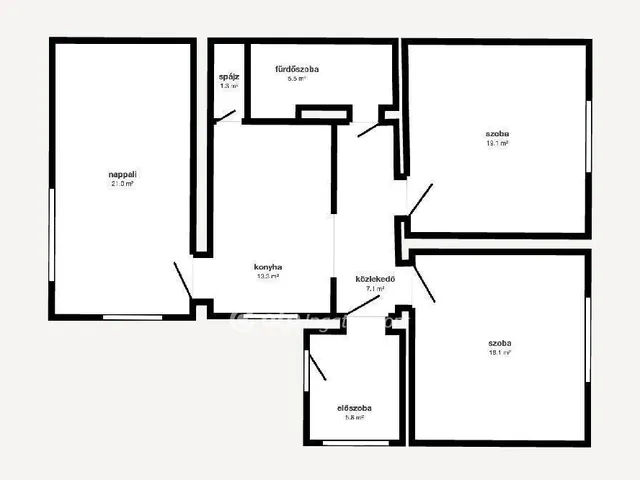
A ház elrendezése praktikus és tágas: nappali + étkező ,konyha, két hálószoba, fürdőszoba és WC egyben, előszoba. A szobákban laminált padló, a többi helyiségben járólap található.
A nappali folytatásában terasz kialakítása is lehetséges, és a filagória alapja már elkészült, így a kert további kényelmi funkciókkal könnyen bővíthető.
Telek és környezet:
A 1095 m2-es telek rendezett, jól kihasználható, többféle lehetőséget kínál: kertészkedésre, pihenésre, akár kisállattartásra is kiváló. Udvaron garázs is megtalálható.
A környék csendes, jó szomszédsággal és biztonságos lakókörnyezettel.
A vételár tartalmazza:
A ház részben bútorozott, a következő bútorok a vételár részét képezik: konyhabútor, nappali bútor, hálószobabútor.
Ez az ingatlan remek lehetőség mindazoknak, akik egy nyugodt, biztonságos környéken, felújított, azonnal költözhető házat keresnek Szikszón.
Banki háttérrel, teljes körű ügyintézéssel segítem a vásárlást! Otthon Start Hitelprogram, CSOK Plusz és lakáshitel ügyintézésben is támogatást nyújtok díjmentesen! Érdeklődés esetén hivatkozzon M314937 azonosítási számra.
Tulajdonságok
Családi ház
Jó állapotú
Gáz (konvektor)
1962
Nem adta meg a hirdető
Vedd fel a kapcsolatot a hirdetővel

Nagy István György
OTPip - Miskolc Szemere Bertalan utca 20 - OTP Ingatlanpont Iroda
Az iroda összes hirdetése +36 20 449 3
Hitelkalkulátor
Második évtől
159 231 Ft A 13. hónaptól
7,99%
Végig fix Futamidő: 20 év Banki visszahívás
Az OTP Bank munkatársai a neked megfelelő napszakban veszik fel veled a kapcsolatot. A becslés a hirdető által megadott adatokon alapul. A jelen tájékoztatás nem minősül ajánlattételnek és nem teljes körű, az egyes feltételek a hitelbírálat eredményétől függően változhatnak. Kérjük, a részletekről tájékozódj az OTP Bank fiókjaiban vagy az OTP Bank honlapján közzétett vonatkozó Üzletszabályzatokból és Hirdetményekből.
Vedd fel a kapcsolatot a hirdetővel

Nagy István György
OTPip - Miskolc Szemere Bertalan utca 20 - OTP Ingatlanpont Iroda
Az iroda összes hirdetése +36 20 449 3
Vedd fel a kapcsolatot a hirdetővel

Nagy István György
OTPip - Miskolc Szemere Bertalan utca 20 - OTP Ingatlanpont Iroda
Az iroda összes hirdetése +36 20 449 3
UI_KIT.CHARACTER_COUNTER__COMPONENT.ACTUAL_CHARACTER__SR_ONLY UI_KIT.CHARACTER_COUNTER__COMPONENT.MAXIMUM_CHARACTER__SR_ONLY
Hasonló eladó ingatlanok Szikszón
Frissítve: 10 napja
17
34 millió Ft 323,8 ezer Ft/m²
Eladó családi ház, Szikszó

Frissítve: ma
9
37 millió Ft 355,8 ezer Ft/m²
Eladó családi ház, Szikszó

Frissítve: 2 napja
18
37 millió Ft 406,6 ezer Ft/m²
Eladó családi ház, Szikszó


Fedezd fel a
hasonló házakat!Még további házak Borsod-Abaúj-Zemplén megyében 37 M Ft körüli értékben
Tovább a hirdetésekhez Frissítve: 16 napja
18
37 millió Ft 406,6 ezer Ft/m²
Eladó családi ház, Szikszó

Frissítve: 16 napja
18
37 millió Ft 406,6 ezer Ft/m²
Eladó családi ház, Szikszó

Frissítve: 16 napja
18
37 millió Ft 406,6 ezer Ft/m²
Eladó családi ház, Szikszó

