+17 fotó
Hirdetéskód: 8814131
Referenciaszám: M318515
Frissítve: 11 napja
Szilvásvárad eladó családi ház 6 szobás: 224,9 millió Ft
224,9 millió Ft
791 902 Ft/m² *
* A m² árat a hirdető adta meg.
284 m²
1000 m²
6 szoba
Leírás
Eladó exkluzív vendégház Szilvásvárad központi részén, a Szalajka-völgy bejáratától mindössze 400 méterre!
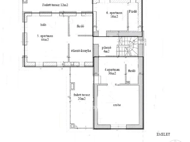
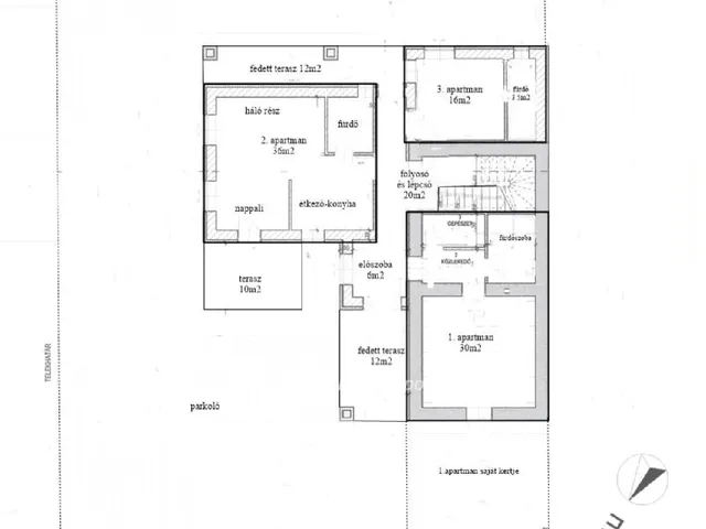
Szilvásvárad legfrekventáltabb pontján, közvetlenül a főút mellett kínálunk megvételre egy mindössze két éve épült, kiemelkedően igényes, 284 m2-es, luxus komfortfokozatú családi házat, amely jelenleg is sikeresen működő vendégházként üzemel. A 1.000 m2-es, gondosan karbantartott telken elhelyezkedő ingatlan páratlan panorámával és tökéletes adottságokkal rendelkezik, így kivételes lehetőséget kínál mind befektetési, mind lakhatási célra.
Az épületben hat, teljesen felszerelt apartman kapott helyet, mindegyik saját konyhával, fürdőszobával, valamint erkéllyel vagy terasszal kialakítva. Az apartmanok fűtése egyedileg szabályozható, ez pedig nemcsak a vendégek komfortját növeli, hanem rendkívül gazdaságossá teszi az üzemeltetést is.
A tágas udvarban 5-6 gépkocsi számára kialakított parkolóhely áll rendelkezésre, továbbá az ingatlan előtt egy aszfaltos magánparkoló is a vendégek és a tulajdonos kényelmét szolgálja. Az ingatlan építészeti minősége, elhelyezkedése és igényes kivitelezése együttesen biztosítják, hogy a vendégház magas kihasználtsággal és stabil jövedelemmel működhessen.
Ez az egyedülálló ingatlan azonnal folytatható, bejáratott vendégházként is kiváló opciónak számít Magyarország egyik legnépszerűbb turisztikai célpontján. Ugyanakkor azok számára is tökéletes választás, akik exkluzív családi rezidenciát szeretnének a Bükk hegység lenyűgöző természeti környezetében, kivételes nyugalmat és inspiráló panorámát élvezve.
Tulajdonságok
Családi ház
2
Újszerű
Gázkazán
2024
Nem adta meg a hirdető
Vedd fel a kapcsolatot a hirdetővel
+36 30 628 2
Hitelkalkulátor
Második évtől
967 867 Ft A 13. hónaptól
7,99%
Végig fix Futamidő: 20 év Banki visszahívás
Az OTP Bank munkatársai a neked megfelelő napszakban veszik fel veled a kapcsolatot. A becslés a hirdető által megadott adatokon alapul. A jelen tájékoztatás nem minősül ajánlattételnek és nem teljes körű, az egyes feltételek a hitelbírálat eredményétől függően változhatnak. Kérjük, a részletekről tájékozódj az OTP Bank fiókjaiban vagy az OTP Bank honlapján közzétett vonatkozó Üzletszabályzatokból és Hirdetményekből.
Vedd fel a kapcsolatot a hirdetővel
+36 30 628 2
Vedd fel a kapcsolatot a hirdetővel
+36 30 628 2
UI_KIT.CHARACTER_COUNTER__COMPONENT.REMAINING_SPACE__SR_ONLYUI_KIT.CHARACTER_COUNTER__COMPONENT.MAXIMUM_CHARACTER__SR_ONLY
Hasonló eladó ingatlanok Szilvásváradon
Frissítve: ma
20
224,9 M Ft 791 901 Ft/m²
Eladó családi ház, Szilvásvárad

Frissítve: 1 éve
1
220 M Ft 873 016 Ft/m²
Eladó családi ház, Egerszalók
Feltöltve: 2 éve
18
230 M Ft 542 453 Ft/m²
Eladó családi ház, Szarvaskő

Fedezd fel a
hasonló házakat!Még további házak Heves megyében 224,9 M Ft körüli értékben
Tovább a hirdetésekhez Frissítve: 22 napja
20
219,9 M Ft 862 353 Ft/m²
Eladó családi ház, Egerszalók

Frissítve: 21 napja
20
210 M Ft 549 739 Ft/m²
Eladó családi ház, Egerszalók

Frissítve: 18 napja
20
210 M Ft 477 273 Ft/m²
Eladó családi ház, Egerszalók


Töltsd fel hirdetésed ingyenesen!
Egyszerű