+2 fotó
Hirdetéskód: 8888370
Referenciaszám: 24689
Feltöltve: 3 napja
Sződ eladó családi ház 4+1 fél szobás: 116,9 millió Ft
116,9 millió Ft
1 134 951 Ft/m²
103 m²
800 m²
4+1 fél szoba
Leírás
Sződ nyugodt, csendes részén épülő új családi házas övezetben modern, 2 szintes, amerikai konyhás, 4 szobás otthonok várják új tulajdonosaikat.
A vásárláshoz CSOK Plusz, Falusi CSOK, otthonfelújítási támogatás, valamint kedvezményes, 3%-os hitel is igényelhető.
Az ingatlan 2026-ben épült vasbeton szerkezettel.
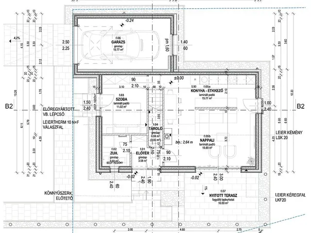
Elosztása:
Földszint: Amerikai Konyhás nappali, hálószoba, fürdőszoba.
Emelet: 2 db hálószoba, félszoba, fürdőszoba és háztartási helyiség
Az energiahatékony kialakítást 20 cm-es hőszigetelés, háromrétegű nyílászárók és redőnyök biztosítják.
A fűtésről 6 kW-os hőszivattyús rendszer gondoskodik, padlófűtéssel a ház teljes területén.
A 800 m²-es telek tágas lehetőséget kínál kert és kültéri pihenőhely kialakítására.
A családi házas övezet fejlesztési terve játszótér kialakítását is tartalmazza, valamint biztosított az ingatlanok aszfaltozott úton történő megközelítése minden tulajdonos számára.
Sződ fejlesztés alatt lévő területén, újonnan kialakított építési telkeken több mérettel és elosztással rendelkező ház épül, minőségi elismert kivitelező álltal. Van lehetőség szinte kész állapotban lévő ház megvásárlására (gyorsabban költözhető), félkész állapotban (szaniterek, fal színek, belső nyílászárók stb. Választására), vagy akár a jövőben épült házak lefoglalásához (a tervezéstől kezdve minden módosítható).
További kérdéseivel, illetve megtekintési szándékával kérem keresse irodánkat.
A hirdetésben szereplő adatok tájékoztató jellegűek.
Az ingatlan hitelre is megvásárolható. Bankfüggetlen tanácsadóink, az ország összes pénzintézete közül gyorsan és gördülékenyen találja meg az Önnek legmegfelelőbb konstrukciót, egyedi kedvezményekkel. A hitel közvetítés díjmentes
Tulajdonságok
Családi ház
2
Új építésű
Hőszivattyú
2025
16 m²
Nem adta meg a hirdető
Vedd fel a kapcsolatot a hirdetővel
+36 30 109 6
Hitelkalkulátor
Második évtől
503 084 Ft A 13. hónaptól
7,99% 8,49%
Végig fix Futamidő: 20 év Banki visszahívás
Az OTP Bank munkatársai a neked megfelelő napszakban veszik fel veled a kapcsolatot. A becslés a hirdető által megadott adatokon alapul. A jelen tájékoztatás nem minősül ajánlattételnek és nem teljes körű, az egyes feltételek a hitelbírálat eredményétől függően változhatnak. Kérjük, a részletekről tájékozódj az OTP Bank fiókjaiban vagy az OTP Bank honlapján közzétett vonatkozó Üzletszabályzatokból és Hirdetményekből.
Vedd fel a kapcsolatot a hirdetővel
+36 30 109 6
Vedd fel a kapcsolatot a hirdetővel
+36 30 109 6
UI_KIT.CHARACTER_COUNTER__COMPONENT.ACTUAL_CHARACTER__SR_ONLY UI_KIT.CHARACTER_COUNTER__COMPONENT.MAXIMUM_CHARACTER__SR_ONLY
Hasonló eladó ingatlanok Sződön
Frissítve: 1 hónapja
5
114 M Ft 966 102 Ft/m²
Eladó családi ház, Sződ
Frissítve: 26 napja
6
Ütem I. - 2025
117,6 M Ft 117 600 000 Ft/m²
Eladó családi ház, Sződ, Csörögi út

Frissítve: 3 napja
10
Ütem I. - 2025
124,2 M Ft 124 200 000 Ft/m²
Eladó családi ház, Sződ, Csörögi út


Fedezd fel a
hasonló házakat!Még további házak Pest megyében 116,9 M Ft körüli értékben
Tovább a hirdetésekhez Frissítve: 26 napja
4
Ütem I. - 2025
116,9 M Ft 116 900 000 Ft/m²
Eladó családi ház, Sződ, Csörögi út

Frissítve: 26 napja
4
Ütem I. - 2025
116,9 M Ft 116 900 000 Ft/m²
Eladó családi ház, Sződ, Csörögi út

Frissítve: 24 napja
15
119,9 M Ft 1 223 469 Ft/m²
Eladó családi ház, Sződ


