+17 fotó
Hirdetéskód: 8822314
Referenciaszám: M317454-5105137
Frissítve: 28 napja
Szűr eladó családi ház 3 szobás: 12 millió Ft
12 millió Ft
176 471 Ft/m²
68 m²
353 m²
3 szoba
Eladó Ház, Szűr
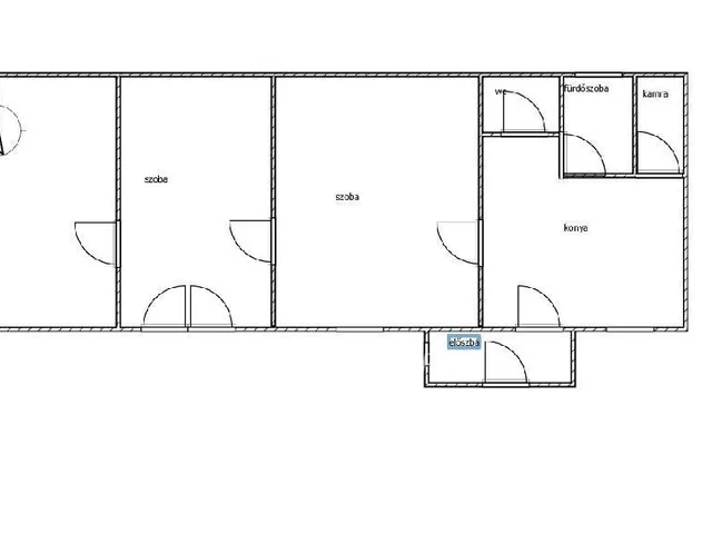
Eladó családi ház Szűrön! Baranya megye egyik bájos, dombos falujában, Szűrön kínálok eladásra egy 68 nm-es, háromszobás családi házat, amely 353 nm-es telken fekszik. Ez az ingatlan remek lehetőség mindazoknak, akik a nyugodt vidéki életre vágynak, de nem szeretnének lemondani a jó infrastruktúráról sem. Főbb jellemzők. Vegyes falazatú, cserépfedésű, gázkonvektor és kályha fűtéssel rendelkezik. Elrendezése, három tágas egymásból nyíló szoba, konyha, fürdőszoba és külön wc. A telekhez garázs és külön tároló is tartozik. Az új műanyag ablakok már meg vannak vásárolva, ami benne van a vételárban. Igy a felújítás költsége ezzel csökken. A 353 nm-es telek elegendő helyet biztosít kertnek, pihenő saroknak, játszótérnek, akárcsak hobbiudvarnak. Környezet és infrastruktúrája, Szűr Baranya megyében, a Geresdi-dombság lankáin fekszik, gyönyörű vidéki környezetben. Az M60-as autópálya könnyen elérhető Véméndnél vagy Mohácsnál, így Pécs és más nagyvárosok is jól megközelíthetők. A faluban buszközlekedés rendszeresen működik. Szűr könnyen elérhető Mohácsról és Pécsváradról is. Szűr községében működik falugondnoki rendszer, amely segíti a helyi közösséget. Iskola és óvoda Himesházán található, gyerekjárattal szervezetten. Elérhető minden közmű a csatornázás is megoldott, és van szélessávú internet, így a modern igények sem maradnak kielégítetlenek. Az ingatlan ideális választás lehet családoknak, idősebbeknek vagy azoknak, akik vidéki, kényelmes életre vágynak. A telek viszonylag visszafogott mérete miatt a gondozása nem jelent jelentős terhet. . A ház falusi CSOK-ra alkalmas. További kérdéseivel és személyes megtekintésért keressen bizalommal! M317454
Referencia szám: M317454
Tulajdonságok
Családi ház
Átlagos
Gáz (konvektor)
1970
E
Vedd fel a kapcsolatot a hirdetővel
+36 20 509 7
Hitelkalkulátor
Második évtől
51 643 Ft A 13. hónaptól
7,99%
Végig fix Futamidő: 20 év Banki visszahívás
Az OTP Bank munkatársai a neked megfelelő napszakban veszik fel veled a kapcsolatot. A becslés a hirdető által megadott adatokon alapul. A jelen tájékoztatás nem minősül ajánlattételnek és nem teljes körű, az egyes feltételek a hitelbírálat eredményétől függően változhatnak. Kérjük, a részletekről tájékozódj az OTP Bank fiókjaiban vagy az OTP Bank honlapján közzétett vonatkozó Üzletszabályzatokból és Hirdetményekből.
Vedd fel a kapcsolatot a hirdetővel
+36 20 509 7
Vedd fel a kapcsolatot a hirdetővel
+36 20 509 7
UI_KIT.CHARACTER_COUNTER__COMPONENT.ACTUAL_CHARACTER__SR_ONLY UI_KIT.CHARACTER_COUNTER__COMPONENT.MAXIMUM_CHARACTER__SR_ONLY
Hasonló eladó ingatlanok Szűrön
Frissítve: 1 hónapja
20
12 M Ft 176 471 Ft/m²
Eladó családi ház, Szűr

Frissítve: ma
20
12 M Ft 176 471 Ft/m²
Eladó családi ház, Szűr

Frissítve: ma
10
13 M Ft 130 000 Ft/m²
Eladó családi ház, Szűr


Fedezd fel a
hasonló házakat!Még további házak Baranya megyében 12 M Ft körüli értékben
Tovább a hirdetésekhez Frissítve: 24 napja
10
13 M Ft 130 000 Ft/m²
Eladó családi ház, Szűr, Petőfi Sándor utca

Frissítve: 24 napja
17
11,9 M Ft 183 077 Ft/m²
Eladó családi ház, Görcsönydoboka, Nagyfa utca

Frissítve: ma
20
11 M Ft 220 000 Ft/m²
Eladó családi ház, Pécs

