+17 fotó
Hirdetéskód: 8944076
Referenciaszám: M312510
Feltöltve: 1 hónapja
Tapolca eladó családi ház 7 szobás: 133,9 millió Ft
133,9 millió Ft
233,3 ezer Ft/m²
574 m²
924 m²
7 szoba
Eladó Veszprém Vármegye Tapolca Családi Ház
Eladó Veszprém Vármegye Tapolca Családi Ház
Tapolcán eladó egy 574 nm hasznos alapterületű három szintes családi ház.
Az ingatlan összkomfortos teteje Bramac tető cserép, Állapota jó.
Elrendezése praktikus és napfényes.
Méretéből adódóan számos célra hasznosítható! Kivalló befektetési lehetőség!
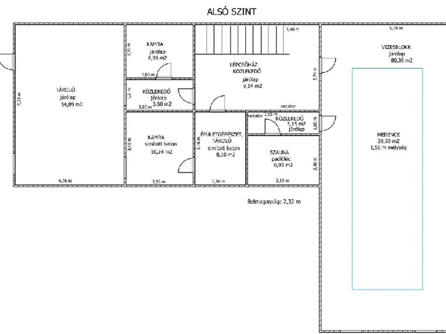
Az alsó szinten található: medence, 12 fős szauna, épületgépészet és sok tárolóhelyiség.
A földszinten található: Nagy méretű fedett terasz, egy nagy méretű napfényes nappali, konyha, előszoba, kettő fürdőszoba, kettő nagy szoba, közlekedő, lépcsőház és tárolók.
Felső szinten: Öt tágas szoba, nagy méretű nappali, kettő fürdőszoba, két erkély, lépcsőház és tároló helység.
Összesen 4 fürdőszoba, 7 szoba, 2 nappali.
Az otthon melegéről vegyes tüzelésű kazán gondoskodik. Valamint a gáz központi is kialakítva.
A nyári hőségről pedig 3 db légkondicionáló gondoskodik. Nappaliban egy szép kandalló is gondoskodik a hangulatról.
Minden helység lapradiátorral felszerelt.
Udvara rendezett folyamatosan karban tartott, nagy része térkövezett.
A ház folytatásában a kazánház új vegyes tüzelésű kazánnal, gázkazánnal és külön mosdóval felszerelt.
A garázs 36 m2-es, fűtött, kiváló állapotú!
Az udvaron felépítésre került egy 56 m2-es pavilon, mely kisebb rendezvények megtartására is alkalmas lehet.
Az ingatlan kamera rendszerrel és riasztóval felszerelt! A kapu elektromos.
Ipari áram bevezetésre került.
Telek mérete: 924 m2.
Tapolcai Malom-Tó öt perc sétával érhető el, így a központ is könnyű sétával megközelíthető.
Ajánlom az ingatlant befektetőknek, vállalkozóknak, mivel a Balaton közelsége adott.
Amennyiben hirdetésem felkeltette az érdeklődését, hívjon bizalommal.
Tulajdonságok
Családi ház
3
Jó állapotú
Vegyes tüzelésű kazán
1991
46 m²
Nem adta meg a hirdető
Vedd fel a kapcsolatot a hirdetővel

+36 30 275 7
Hitelkalkulátor
Második évtől
576 245 Ft A 13. hónaptól
7,99%
Végig fix Futamidő: 20 év Banki visszahívás
Az OTP Bank munkatársai a neked megfelelő napszakban veszik fel veled a kapcsolatot. A becslés a hirdető által megadott adatokon alapul. A jelen tájékoztatás nem minősül ajánlattételnek és nem teljes körű, az egyes feltételek a hitelbírálat eredményétől függően változhatnak. Kérjük, a részletekről tájékozódj az OTP Bank fiókjaiban vagy az OTP Bank honlapján közzétett vonatkozó Üzletszabályzatokból és Hirdetményekből.
Vedd fel a kapcsolatot a hirdetővel

+36 30 275 7
Vedd fel a kapcsolatot a hirdetővel

+36 30 275 7
UI_KIT.CHARACTER_COUNTER__COMPONENT.ACTUAL_CHARACTER__SR_ONLY UI_KIT.CHARACTER_COUNTER__COMPONENT.MAXIMUM_CHARACTER__SR_ONLY
Hasonló eladó ingatlanok Tapolcán
Frissítve: 2 hónapja
20
133,9 millió Ft 233,3 ezer Ft/m²
Eladó családi ház, Tapolca
Frissítve: 1 hónapja
20
133,9 millió Ft 233,3 ezer Ft/m²
Eladó családi ház, Tapolca

Frissítve: 6 napja
20
133,9 millió Ft 233,3 ezer Ft/m²
Eladó családi ház, Tapolca


Fedezd fel a
hasonló házakat!Még további házak Veszprém megyében 133,9 M Ft körüli értékben
Tovább a hirdetésekhez Frissítve: 3 napja
20
129 millió Ft 661,5 ezer Ft/m²
Eladó családi ház, Tapolca

Frissítve: 1 napja
20
130 millió Ft 625 ezer Ft/m²
Eladó családi ház, Tapolca
Frissítve: 20 napja
20
138 millió Ft 690 ezer Ft/m²
Eladó családi ház, Balatonalmádi
