+2 fotó
Hirdetéskód: 8956727
Referenciaszám: 9795
Frissítve: ma
Tata eladó családi ház 4 szobás: 197,5 millió Ft
197,5 millió Ft
1,24 millió Ft/m²
159 m²
400 m²
4 szoba
Leírás
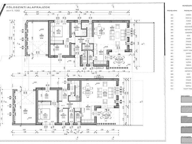
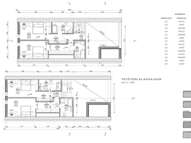
PRÉMIUM KATEGÓRIÁS, ENERGIAHATÉKONY ÁLOMOTTHON- 2027 TAVASZI ÁTADÁSSAL!!
Tata egyik legnemesebb városrészében, a Kálvária-domb és az Öreg-tó közvetlen szomszédságában kínáljuk megvételre ezt a kimagasló műszaki tartalommal rendelkező, új építésű otthont – ahol a természet közelsége és a modern luxus találkozik.
Főbb adatok:
• 134 m² lakótér
• 24 m² garázs
• 10 m² fedett terasz
Átgondolt, modern elrendezés:
• 3 hálószoba gardróbbal, saját fürdő + WC-vel
• földszinten vendég WC
• nappali + konyha + étkező egyben
• tégla építés, grafitos hőszigeteléssel a kiemelkedő energiahatékonyságért
• beton tetőcserép, hosszú évtizedekre tervezve
Prémium műszaki tartalom:
• H-tarifás hőszivattyú + teljes felületen padlófűtés
• Helyiségenkénti egyedi fűtésszabályozás
3 db 2,6 Kw teljesítményű hűtő-fűtő klíma
• Veka, 3 rétegű nyílászárók – jelenleg a legjobb hőszigetelési értékkel a piacon
• Riasztó- és kamerarendszer előkészítés
• Elektromos redőnyök
• Aszfaltos utcafront + közvilágítás
Térköves kocsibehajtó
Miért különleges ez az ingatlan?
A Kálvária-domb és az Öreg-tó közelsége nem csupán panorámát és természetközeli hangulatot ad:
itt minden nap egy időtálló, nyugodt és prémium életérzés részese lehet.
Nívós,energiatakarékos, hosszú távon értékálló ingatlan, kivételes lokációval – ritka lehetőség a piacon.
Részletesebb műszaki tartalomért, egyéb kérdéseivel keressen bizalommal: Telek Bernadett 06703677606
HITEL ÉS TÁMOGATÁSOK – SORBAN ÁLLÁS NÉLKÜL! Irodánk INGYENES hitelügyintézést és állami támogatások (CSOK, stb.) lehívását vállalja. Bankfüggetlen szakértőnk megtalálja a piacon elérhető legjobb konstrukciót, és végigviszi az egész folyamatot. Ön választ, mi finanszírozunk.
Tulajdonságok
Családi ház
Házközponti fűtés egyedi méréssel
2026
Nem adta meg a hirdető
Vedd fel a kapcsolatot a hirdetővel
+36 70 367 7
Hitelkalkulátor
Második évtől
849 950 Ft A 13. hónaptól
7,99%
Végig fix Futamidő: 20 év Banki visszahívás
Az OTP Bank munkatársai a neked megfelelő napszakban veszik fel veled a kapcsolatot. A becslés a hirdető által megadott adatokon alapul. A jelen tájékoztatás nem minősül ajánlattételnek és nem teljes körű, az egyes feltételek a hitelbírálat eredményétől függően változhatnak. Kérjük, a részletekről tájékozódj az OTP Bank fiókjaiban vagy az OTP Bank honlapján közzétett vonatkozó Üzletszabályzatokból és Hirdetményekből.
Vedd fel a kapcsolatot a hirdetővel
+36 70 367 7
Vedd fel a kapcsolatot a hirdetővel
+36 70 367 7
UI_KIT.CHARACTER_COUNTER__COMPONENT.ACTUAL_CHARACTER__SR_ONLY UI_KIT.CHARACTER_COUNTER__COMPONENT.MAXIMUM_CHARACTER__SR_ONLY
Hasonló eladó ingatlanok Tatán
Frissítve: 2 hónapja
1
199 millió Ft 1,33 millió Ft/m²
Eladó családi ház, Tata, fő
Frissítve: 4 napja
20
179 millió Ft 672,9 ezer Ft/m²
Eladó családi ház, Tata
Frissítve: ma
20
179 millió Ft 672,9 ezer Ft/m²
Eladó villa, kastély, Tata


Fedezd fel a
hasonló házakat!Még további házak Komárom-Esztergom megyében 197,5 M Ft körüli értékben
Tovább a hirdetésekhez Frissítve: 10 napja
20
179 millió Ft 672,9 ezer Ft/m²
Eladó villa, kastély, Tata

Frissítve: 1 hónapja
20
179 millió Ft 672,9 ezer Ft/m²
Eladó villa, kastély, Tata

Frissítve: ma
20
179,99 millió Ft 1,06 millió Ft/m²
Eladó sorház, Tata
