+6 fotó
Hirdetéskód: 8888216
Referenciaszám: M322316
Frissítve: 5 napja
Téglás eladó családi ház 4 szobás: 76,5 millió Ft
76,5 millió Ft
813,8 ezer Ft/m² *
* A m² árat a hirdető adta meg.
94 m²
603 m²
4 szoba
Leírás
Téglás - Eladó egy nettó 94 nm-es, ÚJ ÉPÍTÉSŰ, prémium kategóriás családi ház 603 nm-es saját telekkel!
Tervezett energetikai besorolás: A+
Téglás kertvárosias, csendes utcájában, kiváló elhelyezkedéssel kínáljuk eladásra ezt a modern stílusú, földszintes, nappali + 3 szobás, saját, önálló 603 nm-es telekkel rendelkező új építésű családi házat.
A kivitelezés során a tervező és a kivitelező egyaránt törekedett a belső terek maximális kihasználására, a világos, élhető terek kialakítására és a magas műszaki tartalomra.
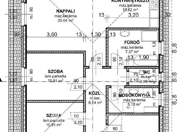
A nettó 93,8 nm-es ház helyiségei:
- amerikai konyhás nappali étkezővel
- 3 külön nyíló hálószoba
- fürdőszoba,külön WC
- mosókonyha
- közlekedő
- fedett terasz, közvetlen kertkapcsolattal
A burkolatok még választhatók, így az új tulajdonos saját ízlésére szabhatja az otthonát.
Főbb műszaki paraméterek:
Alapozás és falazat
-monolit vasbeton
- külső fal: 32 cm vastag Magnézium-Oxid grafitos SIP panel
- homlokzati hőszigetelés: 10 cm kőzetgyapot + 16,4 cm grafitos EPS 80
- válaszfalak: 13 cm SIP panel
- homlokzat: Baumit nemesvakolat
- lábazat: sötétbarna nemesvakolat
Födém és tetőszerkezet
-födémszigetelés: 15 + 20 cm URSA DF39 üveggyapot
- tető: kontyolt nyeregtető, 25°, Bramac Római Protector cserép
Nyílászárók és burkolatok:
- külső nyílászárók: 3 rétegű műanyag ablakok
- belső ajtók: fa, típus vagy egyedi
- burkolatok: hideg?meleg burkolatok választhatók (árkategória egyeztethető)
-Daikin Altherma hőszivattyú (fűtés/hűtés/HMV)
- padlófűtés minden helyiségben
Elektromos és kényelmi extrák:
- elektromos vezérlésű redőnyök
- videós kaputelefon előkészítés
- riasztó és kamerarendszer előkészítés
- teljes közmű: víz, villany, szennyvíz
- napelemes rendszer telepítésére alkalmas tetőfelület
A 603 nm-es telek teljesen önálló, minden telekhatáron kerítéssel.
A személykapu 1 m széles, a gépkocsi-beálló kialakítható.
A környék csendes, zöldövezeti, mégis közel van minden fontos szolgáltatás:
buszmegálló, iskola, óvoda,játszóterek,boltok, szolgáltatások.
Ideális választás családoknak, első otthonnak vagy befektetésnek. (a belső képek kizárólag látványtervek a terek elképzeléséhez és berendezési lehetőségének segítségét biztosítja)
Energetikai tanúsítvány nem áll rendelkezésre.
Ne hagyja ki ezt a lehetőséget! További kérdéseire készséggel válaszolok, akár hétvégén is. Kedvezményes kamatozású lakásvásárlási hitelek, valamint Babaváró és CSOK, Otthon Start ügyintézése az OTP hátterével irodánkban.
Tulajdonságok
Családi ház
1
Új építésű
Gázkazán
2026
19,5 m²
Nem adta meg a hirdető
Vedd fel a kapcsolatot a hirdetővel

+36 20 263 8
Hitelkalkulátor
Második évtől
329 221 Ft A 13. hónaptól
7,99% 8,49%
Végig fix Futamidő: 20 év Banki visszahívás
Az OTP Bank munkatársai a neked megfelelő napszakban veszik fel veled a kapcsolatot. A becslés a hirdető által megadott adatokon alapul. A jelen tájékoztatás nem minősül ajánlattételnek és nem teljes körű, az egyes feltételek a hitelbírálat eredményétől függően változhatnak. Kérjük, a részletekről tájékozódj az OTP Bank fiókjaiban vagy az OTP Bank honlapján közzétett vonatkozó Üzletszabályzatokból és Hirdetményekből.
Vedd fel a kapcsolatot a hirdetővel

+36 20 263 8
Vedd fel a kapcsolatot a hirdetővel

+36 20 263 8
UI_KIT.CHARACTER_COUNTER__COMPONENT.ACTUAL_CHARACTER__SR_ONLY UI_KIT.CHARACTER_COUNTER__COMPONENT.MAXIMUM_CHARACTER__SR_ONLY
Hasonló eladó ingatlanok Tégláson
Frissítve: 6 napja
1
69,8 millió Ft
Eladó sorház, Téglás

Feltöltve: 7 hónapja
1
75 millió Ft 797,9 ezer Ft/m²
Eladó családi ház, Téglás, Városháza utca 49.
Frissítve: 6 napja
4
76,5 millió Ft 822,6 ezer Ft/m²
Eladó családi ház, Téglás


Fedezd fel a
hasonló házakat!Még további házak Hajdú-Bihar megyében 76,5 M Ft körüli értékben
Tovább a hirdetésekhez Feltöltve: 6 hónapja
1
75 millió Ft 714,3 ezer Ft/m²
Eladó családi ház, Téglás
Frissítve: 1 hónapja
10
75 millió Ft 810,8 ezer Ft/m²
Eladó családi ház, Téglás

Frissítve: 1 hónapja
10
75 millió Ft 862,1 ezer Ft/m²
Eladó családi ház, Téglás

