+17 fotó
Hirdetéskód: 8850071
Referenciaszám: HZ045791-5123153
Frissítve: 17 napja
Tiszaszentimre eladó családi ház 4 szobás: 64,9 millió Ft
64,9 millió Ft
312 ezer Ft/m²
208 m²
1378 m²
4 szoba
Eladó ház, Tiszaszentimre
Parasztházi stílusban felújított otthon eladó Tiszaszentimrén – ahol a nyugalom valóban része a mindennapoknak
Tiszaszentimre a Tisza közelségével, tiszta levegőjével és csendes, barátságos hangulatával azok számára ideális választás, akik a városi rohanás után valódi nyugalomra vágynak. Itt az idő lassabban telik, a környezet megnyugtató, a mindennapok kiegyensúlyozottabbá válnak. Nem csupán egy lakóhely, hanem egy élhető vidéki életforma.
Ebben a harmonikus környezetben kínálunk megvételre egy 2019-ben teljes körűen, kívül-belül felújított, kiváló állapotú, parasztházi stílusú családi otthont, ahol minden részlet a minőséget és az átgondolt kialakítást tükrözi.
Az ingatlan hangulata egyszerre otthonos és időtálló, ideális választás állandó lakhatásra, pihenésre vagy akár befektetési célra is. A külön bejáratú szobák, a két fürdőszoba és a tágas amerikai konyhás nappali alkalmassá teszik apartmanként történő hasznosításra is.
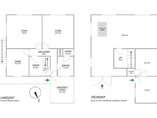
Alapterületek:
Hasznos alapterület: 103 m², fedett teraszokkal együtt 147 m²
Összes alapterület: 233 m² (melléképülettel, úszómedencével és gépkocsi-beállóval)
Telekméret: 1378 m², gondosan parkosított kerttel
Főbb jellemzők:
3 külön bejáratú szoba, akár két generáció számára is ideális
41 m²-es amerikai konyhás nappali, világos és tágas tér
2 fürdőszoba
Előszoba és gépészeti-tároló helyiség mosókonyhával
Két fedett terasz (26 m² és 18 m²), szúnyoghálóval ellátva
Különálló, fából készült fedett autóbeálló (25 m²)
Melléképület – újszerű állapotban (36 m²):
22,5 m²-es garázs, itt kapott helyet a medence gépészete
13,5 m²-es nyári konyha
Medence és kert – a pihenés középpontjában
A kert egyik legnagyobb értéke a 2020-ban épített, 5×10 méteres, 1,65 m mély úszómedence, korszerű gépészettel. Ideális helyszín a nyári feltöltődéshez, családi kikapcsolódáshoz vagy baráti együttlétekhez.
A fúrt kút biztosítja a parkosított kert öntözését, amely valódi nyugalomszigetté teszi az ingatlant.
További felszereltség:
Légkondicionáló
Páraelszívó
Modern konyhabútor, minőségi beépített gépekkel
Fagerendás mennyezet, ahol a hagyomány és a modern megoldások természetesen találkoznak
Ez az ingatlan azoknak szól, akik értékelik a csendet, a teret és a minőségi kialakítást. Egy hely, ahol a mindennapok nyugodtabbak, a nyarak élvezetesebbek, az élet pedig kiegyensúlyozottabb.
Ha egy valóban élhető vidéki otthont keres, ahol a pihenés nem ígéret, hanem valóság, érdemes személyesen is megismerni.
További részletekért és megtekintés egyeztetéséhez várom hívását telefonon.
Tulajdonságok
Családi ház
Felújított
Gázkazán
1985
E
Vedd fel a kapcsolatot a hirdetővel
+36 46 769 7
Hitelkalkulátor
Második évtől
279 300 Ft A 13. hónaptól
7,99%
Végig fix Futamidő: 20 év Banki visszahívás
Az OTP Bank munkatársai a neked megfelelő napszakban veszik fel veled a kapcsolatot. A becslés a hirdető által megadott adatokon alapul. A jelen tájékoztatás nem minősül ajánlattételnek és nem teljes körű, az egyes feltételek a hitelbírálat eredményétől függően változhatnak. Kérjük, a részletekről tájékozódj az OTP Bank fiókjaiban vagy az OTP Bank honlapján közzétett vonatkozó Üzletszabályzatokból és Hirdetményekből.
Vedd fel a kapcsolatot a hirdetővel
+36 46 769 7
Vedd fel a kapcsolatot a hirdetővel
+36 46 769 7
UI_KIT.CHARACTER_COUNTER__COMPONENT.ACTUAL_CHARACTER__SR_ONLY UI_KIT.CHARACTER_COUNTER__COMPONENT.MAXIMUM_CHARACTER__SR_ONLY
Hasonló eladó ingatlanok Tiszaszentimrén
Frissítve: 3 napja
20
64,9 millió Ft 312 ezer Ft/m²
Eladó családi ház, Tiszaszentimre

Frissítve: ma
20
64,9 millió Ft 312 ezer Ft/m²
Eladó családi ház, Tiszaszentimre

Frissítve: 17 napja
20
62 millió Ft 326,3 ezer Ft/m²
Eladó családi ház, Jászberény


Fedezd fel a
hasonló házakat!Még további házak Jász-Nagykun-Szolnok megyében 64,9 M Ft körüli értékben
Tovább a hirdetésekhez Frissítve: 3 napja
11
61,9 millió Ft 658,5 ezer Ft/m²
Eladó sorház, Jászberény

Frissítve: 17 napja
5
69,9 millió Ft 699 ezer Ft/m²
Eladó ikerház, Szolnok
Frissítve: 3 napja
7
63,8 millió Ft 802,4 ezer Ft/m²
Eladó ikerház, Jászberény

