+17 fotó
Hirdetéskód: 8896997
Referenciaszám: 697200534
Frissítve: 1 napja
Újszász eladó családi ház: 46 millió Ft
46 millió Ft
469 388 Ft/m²
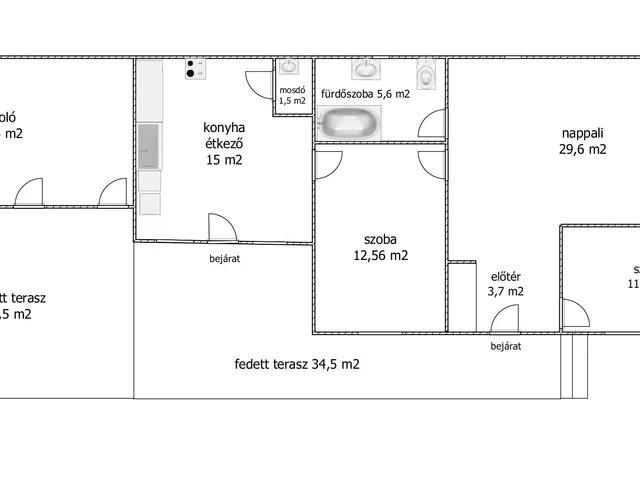
98 m²
1556 m²
Újszászon igényesen felújított családi ház
Eladó egy gyönyörű, felújított családi ház Újszászon, amely ideális választás lehet családok számára. Az ingatlan alapterülete 98 négyzetméter, míg a telek mérete 1 556 négyzetméter, így bőséges hely áll rendelkezésre a családi élethez és a szabadidős tevékenységekhez.
A ház 1970 körül épült, vegyes építési móddal, és az utóbbi időszakban teljes körű felújításon esett át, így modern és esztétikus megjelenéssel várja új tulajdonosát. A felújítás kiterjedt az összes gépészeti rendszerre (víz, villany, csatorna), minden burkolatot cseréltek. A teljes tetőszerkezet 2010-ben került cserélésre. Az ingatlan összkomfortos, ami biztosítja a kényelmet a mindennapi életben. Fűtéséről gázkazán gondoskodik, emellett vegyes tüzelésű másodlagos fűtési lehetőség is kialakítható (csazánt kell beállítani), így a téli hónapokban is meleg és otthonos környezet várja a lakókat. A biztonságot riasztó és kamerarendszer biztosítja.
A házban 2db saját split klíma (hűtő/fűtő) található, amely a nyári hőségben kellemes hűsítést biztosít. A kilátás udvari, ami csendes és nyugodt környezetet teremt. A parkolás megoldott, hiszen dupla két állásos garázs áll rendelkezésre, így az autó biztonságban lesz. Az udvarban lévő ásott kútból a kert öntözése megoldható.
Fontos megemlíteni, hogy az ingatlan nem akadálymentesített, de remek elhelyezkedése és a felújított állapot miatt érdemes megtekinteni. Az irányár 46 000 000 Ft, amely valóban kedvező lehetőség egy ilyen minőségű ingatlanért. Ne habozzon, jöjjön el és nézze meg ezt a kivételes ajánlatot!
Tulajdonságok
Családi ház
1
Felújított
Gázkazán
1970
Nem adta meg a hirdető
Vedd fel a kapcsolatot a hirdetővel
+36 70 384 5
Hitelkalkulátor
Második évtől
197 963 Ft A 13. hónaptól
7,99%
Végig fix Futamidő: 20 év Banki visszahívás
Az OTP Bank munkatársai a neked megfelelő napszakban veszik fel veled a kapcsolatot. A becslés a hirdető által megadott adatokon alapul. A jelen tájékoztatás nem minősül ajánlattételnek és nem teljes körű, az egyes feltételek a hitelbírálat eredményétől függően változhatnak. Kérjük, a részletekről tájékozódj az OTP Bank fiókjaiban vagy az OTP Bank honlapján közzétett vonatkozó Üzletszabályzatokból és Hirdetményekből.
Vedd fel a kapcsolatot a hirdetővel
+36 70 384 5
Vedd fel a kapcsolatot a hirdetővel
+36 70 384 5
UI_KIT.CHARACTER_COUNTER__COMPONENT.ACTUAL_CHARACTER__SR_ONLY UI_KIT.CHARACTER_COUNTER__COMPONENT.MAXIMUM_CHARACTER__SR_ONLY
Hasonló eladó ingatlanok Újszászon
Frissítve: 3 napja
15
43 M Ft 248 555 Ft/m²
Eladó családi ház, Újszász

Frissítve: 3 napja
15
43 M Ft 248 555 Ft/m²
Eladó családi ház, Újszász

Frissítve: 3 napja
15
43 M Ft 248 555 Ft/m²
Eladó családi ház, Újszász


Fedezd fel a
hasonló házakat!Még további házak Jász-Nagykun-Szolnok megyében 46 M Ft körüli értékben
Tovább a hirdetésekhez Frissítve: 3 napja
15
43 M Ft 248 555 Ft/m²
Eladó családi ház, Újszász

Feltöltve: 6 hónapja
0
47 M Ft 522 222 Ft/m²
Eladó családi ház, Újszász
Frissítve: 3 napja
20
44,9 M Ft 498 889 Ft/m²
Eladó családi ház, Újszász

