+17 fotó
Hirdetéskód: 8929400
Referenciaszám: 393539
Feltöltve: ma
Vác eladó családi ház 5 szobás: 295 millió Ft
295 millió Ft
2 418 033 Ft/m²
122 m²
838 m²
5 szoba
Eladó családi ház Vác, 122nm, 295.000.000Ft - Deákvár
Csodálatos panorámás, igényes, 2 szintes, családi otthon Vác közkedvelt városrészében eladó!
Az ingatlan gondos hozzáértéssel épült, kifejezetten elegáns, rendezett környezetben található Vácon. Az tulajdonos saját maga és családja számára építette ezt a gyönyörű házat, ezért a leendő lakója egy valódi otthonra lelhet benne.
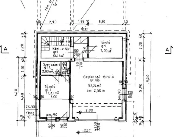
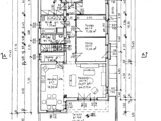
A lankás teleknek köszönhetően utcafronton 1, a kert felé pedig 2 szintes az épület. A pince szinten 2 állásos, tágas garázs, tároló résszel, egy nyárikonyha és egy zuhanyzó kapott helyet. A földszinten 4 szoba, 2 fürdőszoba és hatalmas, tágas nappali egy légtérben, mégis némileg elkülönülten található az étkező és a teljesen felszerelt konyha. A nappaliból nyílik az erkély, ahol kényelmesen elfér egy 6-8 személyes étkezőasztal. A teraszról és a pince szintről is a kertbe jutunk, ahol a csodálatos panoráma mellett egy medence is elénk tárul, amit a kiépített hőszivattyús rendszerrel fűteni is tudunk. A kertben automata (robot) fűnyíró gondoskodik a tulajdonosok kényelméről.
Műszaki tudnivalók:
A ház 2021-ben épült 30-as Porotherm téglából, melyre 15 cm grafit szigetelés került. A födém fa szerkezetű, ami teljes egészében szigetelt. 5 kw-os napelem látja el a ház elektromos áram igényét. A ház fűtése elektromos kazán, de rendelkezésre áll kandalló és több hűtő-fűtő klímaberendezés is. A kimagasló minőségi járólappal burkolt földszinten padlófűtés, az alsó szinten radiátorok biztosítják a meleget. A szobák ablakain szúnyogháló véd a nemkívánatos rovaroktól, műanyag redőnyök pedig a hőségtől. A nappali hatalmas üvegfelületeinél elektromos redőny beépítésének lehetősége kialakításra került. A helyiségek belmagassága 270 cm. A házban hatalmas gardrób- és tárolószekrények, teljesen gépesített konyha szolgálja a kényelmet.
A környék infrastruktúrája kiváló: tömegközlekedési lehetőségek, bevásárlóközpontok, boltok, iskola, óvoda, orvosi rendelő rövid sétatávolságon belül elérhetők. A környék csendes, mégis minden fontos szolgáltatás könnyen hozzáférhető. A Vác közeli hegyekben remek kiránduló útvonalak és tanösvények várják a látogatókat. A Duna közelsége lehetőséget ad a vízi sportok űzésére és a kiépített kerékpárút az egész Dunakanyart lefedi. A közvetlen szomszédok kedvesek, barátságosak és megbízhatóak.
Főbb jellemzők
•Földszint: 122 m²
•Pince szint: 68 m²
•Terasz: 23 m²
•Fűthető medence: 7m x 3,5m
•Szobák száma: 5
•Fürdőszobák száma: 2
•WC: külön 2
•Fűtés: elektromos kazán és hűtő-fűtő klímák
•Szintek száma: 2.
•Garázs: 2 beállós
További információért forduljon hozzám bizalommal!
Amivel segítjük az Ön ingatlanvásárlását:
•ingyenes, bankfüggetlen hitelügyintézés (CSOK és Babaváró ügyintézése is.)
•jogi háttér
•földhivatali ügyintézés
•energetikai tanúsítvány elkészítése
•biztosítás ...TOVÁBBI, TÖBBEZRES INGATLAN KÍNÁLAT: www.gdn-ingatlan.hu - GDN azonosító: 393539
Tulajdonságok
Családi ház
2
Új építésű
Elektromos
2021
23 m²
Nem adta meg a hirdető
Van
Vedd fel a kapcsolatot a hirdetővel
+36 70 422 2
Hitelkalkulátor
Második évtől
1 269 546 Ft A 13. hónaptól
7,99% 8,49%
Végig fix Futamidő: 20 év Banki visszahívás
Az OTP Bank munkatársai a neked megfelelő napszakban veszik fel veled a kapcsolatot. A becslés a hirdető által megadott adatokon alapul. A jelen tájékoztatás nem minősül ajánlattételnek és nem teljes körű, az egyes feltételek a hitelbírálat eredményétől függően változhatnak. Kérjük, a részletekről tájékozódj az OTP Bank fiókjaiban vagy az OTP Bank honlapján közzétett vonatkozó Üzletszabályzatokból és Hirdetményekből.
Vedd fel a kapcsolatot a hirdetővel
+36 70 422 2
Vedd fel a kapcsolatot a hirdetővel
+36 70 422 2
UI_KIT.CHARACTER_COUNTER__COMPONENT.ACTUAL_CHARACTER__SR_ONLY UI_KIT.CHARACTER_COUNTER__COMPONENT.MAXIMUM_CHARACTER__SR_ONLY
Hasonló eladó ingatlanok Deákvár városrészben
Frissítve: 22 napja
20
299 M Ft 958 333 Ft/m²
Eladó családi ház, Vác

Frissítve: 2 napja
20
299 M Ft 958 333 Ft/m²
Eladó családi ház, Vác

Frissítve: 1 napja
20
275 M Ft 597 826 Ft/m²
Eladó családi ház, Vác, Déli út


Fedezd fel a
hasonló házakat!Még további házak Pest megyében 295 M Ft körüli értékben
Tovább a hirdetésekhez Frissítve: 3 napja
20
275 M Ft 597 826 Ft/m²
Eladó családi ház, Vác

Frissítve: ma
20
275 M Ft 597 826 Ft/m²
Eladó családi ház, Vác

Frissítve: 24 napja
20
275 M Ft 597 826 Ft/m²
Eladó családi ház, Vác


