+1 fotó
Hirdetéskód: 8940009
Frissítve: 13 napja
Vácrátót eladó családi ház 4 szobás: 108 millió Ft
108 millió Ft
1,26 millió Ft/m²
86 m²
367 m²
4 szoba
Vácráróton egy szintes , önálló családi házak eladók!!!
Új építésű ingatlanokra vonatkozó kedvezmények, támogatott hitel, illeték kedvezmény igénybe vehető!!!
Vácrátóton /NEM a Szent István lakóparkban/ 739 nm-es telekre épülő 2 db egy szintes új építésű családiházak eladók!!!
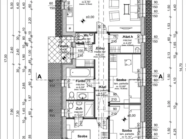
B.épület:
a ház nettó : 85,48 nm
előterasz: 2,86 nm
terasz: 19,80 nm
A ház elosztása:
előterasz: 2,86 nm
előszoba 6,23 nm
wc 1,20 nm
konyha-étkező 8,78 nm
nappali 18,50 nm
házt.helyiség 4,29 nm
szoba 10,66 nm
szoba 11,16 nm
szoba 10,78 nm
zuhanyzó 3,22 nm
fürdőszoba 6,09 nm
közlekedő 4,57 nm
Parkolás: zárt udvaron belül
A ház megbízható, számos referenciával rendelkező vállalkozó építi. Számos referenciája megtekinthető a környéken több településen.
Műszaki tartalom: /ingatlan megtekintésekor a teljes múszaki tartalom átadásra kerül.
-30 pth tégla
-10 cm vasalt aljzatbeton
-10 cm válaszfalak
-padlás szigetelés 25 cm üveggyapot
-10 cm XPS hőszigetelés
-műanyag, hőszigetelt nyilászáró
-a szobákon homlokzati nyilászárók, vakolható alumínium redőnytokkal lesznek kialakítva.
-70.000.-Ft/db belső nyilászárók
-laminált parkette 5.000.-Ft/nm
-kerámia burkolatok 7.000.-Ft/nm
-nappali teraszok beton térkő burkolatokból készülnek, beton kerti szegélykő lezárással
-bejárati ajtó esztétikus megjelenésű műanyag szerkezetű hőszigetelt, több ponton záródó kívül világos szürke, belül fehér színű műanyag bejárati ajtó.
-fűtés: hőszivattyú, padlófűtéssel, a lakás használati meleg vz ellátását a hőszivattyúról müködtetett HMV tartály látja el.
-hűtés: 2 db klíma alapcsővezés, készülék nélkül
-1x32A
-épület körül durva tereprendezés, parkosítás nélkül
-1 db kerti csaő
-a kerti burkolt felületek, a járda szürke beton térkő burkolattal, a terveknek megfelelő kialakítással.
-ház falánál közvetlenül 40 cm szélességben apró kavicssáv fut körben.
Kulcsrakész átadás: 2026. nyár eleje
Tulajdonságok
Családi ház
1
Új építésű
Hőszivattyú
2026
19,8 m²
Nem adta meg a hirdető
Vedd fel a kapcsolatot a hirdetővel
Bene Kriszti Az iroda összes hirdetése
+36 20 231 6
Hitelkalkulátor
Második évtől
464 783 Ft A 13. hónaptól
7,99% 8,49%
Végig fix Futamidő: 20 év Banki visszahívás
Az OTP Bank munkatársai a neked megfelelő napszakban veszik fel veled a kapcsolatot. A becslés a hirdető által megadott adatokon alapul. A jelen tájékoztatás nem minősül ajánlattételnek és nem teljes körű, az egyes feltételek a hitelbírálat eredményétől függően változhatnak. Kérjük, a részletekről tájékozódj az OTP Bank fiókjaiban vagy az OTP Bank honlapján közzétett vonatkozó Üzletszabályzatokból és Hirdetményekből.
Vedd fel a kapcsolatot a hirdetővel
Bene Kriszti Az iroda összes hirdetése
+36 20 231 6
Vedd fel a kapcsolatot a hirdetővel
Bene Kriszti Az iroda összes hirdetése
+36 20 231 6
UI_KIT.CHARACTER_COUNTER__COMPONENT.ACTUAL_CHARACTER__SR_ONLY UI_KIT.CHARACTER_COUNTER__COMPONENT.MAXIMUM_CHARACTER__SR_ONLY
Hasonló eladó ingatlanok Vácrátóton
Frissítve: 21 napja
10
99,9 millió Ft 876,3 ezer Ft/m²
Eladó családi ház, Vácrátót

Frissítve: 21 napja
9
99,9 millió Ft 892 ezer Ft/m²
Eladó ikerház, Vácrátót
Frissítve: 4 napja
20
105 millió Ft 1,36 millió Ft/m²
Eladó ikerház, Vácrátót


Fedezd fel a
hasonló házakat!Még további házak Vácrátóton 108 M Ft körüli értékben
Tovább a hirdetésekhez Frissítve: 13 napja
13
99,9 millió Ft 892 ezer Ft/m²
Eladó ikerház, Vácrátót

Frissítve: 21 napja
10
99,9 millió Ft 908,2 ezer Ft/m²
Eladó ikerház, Vácrátót

Frissítve: 21 napja
8
104,5 millió Ft 1,16 millió Ft/m²
Eladó családi ház, Vácrátót
