+17 fotó
Hirdetéskód: 8810108
Referenciaszám: M318102-5097996
Frissítve: 21 napja
Velence eladó családi ház 4 szobás: 215 millió Ft
215 millió Ft
1,4 millió Ft/m²
154 m²
1040 m²
4 szoba
Eladó Ház, Velence
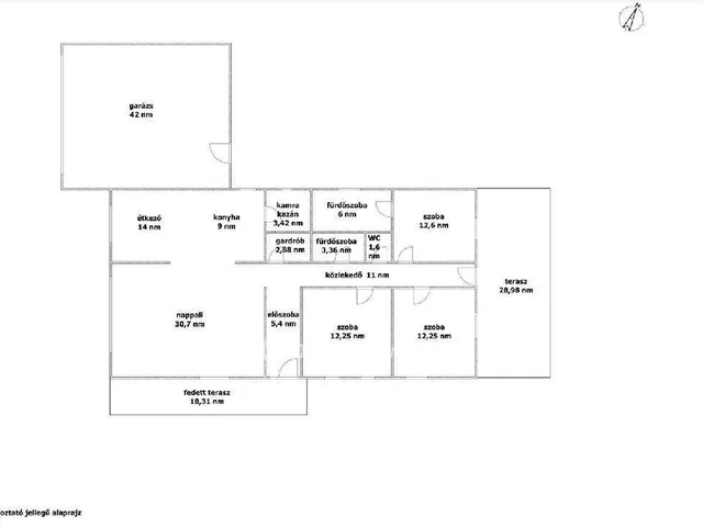
Fejér megye, Velence 154 nm-es mediterrán családi ház eladó. Az ingatlan 2020-ban épült, a Venezia villanegyedben egy 1040 nm-es gyönyörűen parkosított, dísznövénykerttel, gyümölcsfákkal betelepített telken helyezkedik el. A tégla falazatú, szigetelt házban tágas nappali, 3 szoba, étkező, konyha, kamra, gardrób, 2 fürdőszoba, 1 külön mosdó található, valamint tartozik hozzá egy 42 nm-es garázs, 18,31 nm-es fedett terasz, egy 28,98 nm-es terasz, kerti sütögető, játszótér, térkövezett kocsibeálló több autó számára. A fűtésről Ariston gázkazán gondoskodik radiátoros hő leadással. Az ingatlanba beszerelésre került egy 3,5 kW-os hűtő fűtő klíma is. Az épület 4 kW napelemmel is felszerelt, mely fedezi a teljes villanyfogyasztást. Az ingatlan fenntartása nagyon kedvező, a gáz átalány 12 000 Ft, köszönhetően a 38-as tégla falazatnak, a homlokzati és a födém szigetelésnek. Az összes nyílászáró műanyag. Kiváló adottságokkal rendelkező ingatlan, új építésű családi házas övezetben, közel a Velencei tóhoz. Amennyiben felkeltette az érdeklődését, további kérdések esetén várom hívását, akár hétvégén is! Kedvezményes kamatú hitellel, teljes körű ügyintézéssel segítjük ügyfeleinket díjtalanul, az adásvétel és ingatlanátírás teljes lebonyolításával.
Tulajdonságok
Családi ház
Újszerű
Gázkazán
2020
Nem adta meg a hirdető
Vedd fel a kapcsolatot a hirdetővel

+36 30 259 2
Hitelkalkulátor
Második évtől
925 262 Ft A 13. hónaptól
7,99%
Végig fix Futamidő: 20 év Banki visszahívás
Az OTP Bank munkatársai a neked megfelelő napszakban veszik fel veled a kapcsolatot. A becslés a hirdető által megadott adatokon alapul. A jelen tájékoztatás nem minősül ajánlattételnek és nem teljes körű, az egyes feltételek a hitelbírálat eredményétől függően változhatnak. Kérjük, a részletekről tájékozódj az OTP Bank fiókjaiban vagy az OTP Bank honlapján közzétett vonatkozó Üzletszabályzatokból és Hirdetményekből.
Vedd fel a kapcsolatot a hirdetővel

+36 30 259 2
Vedd fel a kapcsolatot a hirdetővel

+36 30 259 2
UI_KIT.CHARACTER_COUNTER__COMPONENT.ACTUAL_CHARACTER__SR_ONLY UI_KIT.CHARACTER_COUNTER__COMPONENT.MAXIMUM_CHARACTER__SR_ONLY
Hasonló eladó ingatlanok Velencén
Frissítve: 1 napja
18
205 millió Ft 486,9 ezer Ft/m²
Eladó családi ház, Velence

Frissítve: 21 napja
18
205 millió Ft 345,7 ezer Ft/m²
Eladó családi ház, Velence

Frissítve: 21 napja
11
210 millió Ft 1,35 millió Ft/m²
Eladó családi ház, Velence


Fedezd fel a
hasonló házakat!Még további házak Velencén 215 M Ft körüli értékben
Tovább a hirdetésekhez Frissítve: 7 napja
20
219 millió Ft 634,8 ezer Ft/m²
Eladó családi ház, Velence

Frissítve: 10 napja
11
210 millió Ft 1,35 millió Ft/m²
Eladó családi ház, Velence

Frissítve: 7 napja
11
210 millió Ft 1,35 millió Ft/m²
Eladó családi ház, Velence

