+2 fotó
Hirdetéskód: 8866474
Referenciaszám: 12638_rds
Frissítve: 1 napja
Veresegyház eladó családi ház 4 szobás: 120 millió Ft
120 millió Ft
952,4 ezer Ft/m²
126 m²
636 m²
4 szoba
Eladó családi ház Veresegyház Mézesvölgy 126m2 120000000 Ft
Modern, energiatakarékos új építésű családi ház Veresegyház egyik legjobb részén!
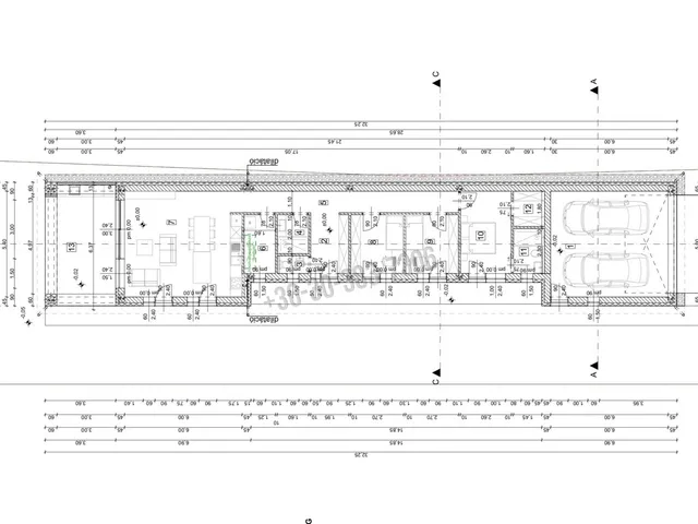
Veresegyház kedvelt, központhoz közeli, mégis nyugodt egyirányú utcájában épül ez a nettó 125,93 m²-es, átgondolt tervezésű egyszintes családi ház, 636 m²-es telken, dupla garázzsal.
Az épület hosszúkás téglalap formájú, utcafronton diszkréten csak a kétállásos garázs jelenik meg, így a lakótér maximális nyugalmat élvez. A ház igazi arca a kert felé nyílik, ahol az amerikai konyhás nappalihoz kapcsolódó, közel 22 m²-es terasz teremti meg a családi és baráti együttlétek ideális helyszínét.
Elrendezés:
- tágas nappali + étkező + amerikai konyha ( 31,74 nm)
- 3 külön nyíló szoba (10,92; 8,1; 8,1 nm)
- 2 fürdőszoba (3,2; 3,68 nm)
- wc (1,44 nm)
- gardrób (2,73 nm)
- háztartási helyiség (4,8 nm)
- közlekedő (12,82 nm)
- dupla garázs (32,4 nm)
A belső kialakítás világos, élhető, minden négyzetméter funkcionálisan hasznosított.
Műszaki tartalom – jövőbiztos megoldások:
- 30 cm-es Porotherm falazat, 15 cm homlokzati hőszigeteléssel
- födémen 2x10 cm ásványgyapot szigetelés
- levegő–vizes hőszivattyú
- padlófűtés, nyáron mennyezethűtés
- háromfázisú elektromos ellátás
- kiváló hő- és hangszigetelés
- energiahatékony, alacsony rezsijű működés
- gáz nincs – korszerű, fenntartható megoldások
Miért jó Veresegyházon élni?
Veresegyház az egyik legdinamikusabban fejlődő agglomerációs város:
gyors vonat- és buszközlekedés Budapest felé
autóval is könnyen megközelíthető
iskolák, óvodák, bölcsődék, bevásárlási lehetőségek, orvosi ellátás pár percen belül
rendezett, zöld környezet, családbarát hangulat
termálfürdő, tavak, sportolási és kikapcsolódási lehetőségek
A központi elhelyezkedés miatt minden kényelmesen elérhető, mégis csendes, élhető utcában lakhat.
Ideális választás azoknak, akik modern, energiatakarékos otthont keresnek kiváló lokációban, kompromisszumok nélkül.
Az ingatlan kivitelezését több sikeres, a régióban megvalósult lakóingatlan-referenciával rendelkező kivitelező végzi. A korábbi munkák a megbízható minőséget, precíz kivitelezést és hosszú távon is értékálló műszaki megoldásokat igazolják. A projekt során jól bevált technológiákat és anyagokat alkalmaznak, így a leendő tulajdonos biztos lehet egy átgondoltan megépített, gondos kivitelezésű otthonban.
Bővebb információért, az ingatlan részletes és személyes bemutatása kapcsán kérem keressen bizalommal!
Az ingatlan megvásárlásához irodánk jogi háttértámogatást és ingyenes hiteltanácsadást biztosít, hogy Ön biztonságban és gördülékenyen valósíthassa meg terveit.
Tulajdonságok
Családi ház
1
Újszerű
Hőszivattyú
2026
A+
Vedd fel a kapcsolatot a hirdetővel

+36 30 383 7
Hitelkalkulátor
Második évtől
516 425 Ft A 13. hónaptól
7,99%
Végig fix Futamidő: 20 év Banki visszahívás
Az OTP Bank munkatársai a neked megfelelő napszakban veszik fel veled a kapcsolatot. A becslés a hirdető által megadott adatokon alapul. A jelen tájékoztatás nem minősül ajánlattételnek és nem teljes körű, az egyes feltételek a hitelbírálat eredményétől függően változhatnak. Kérjük, a részletekről tájékozódj az OTP Bank fiókjaiban vagy az OTP Bank honlapján közzétett vonatkozó Üzletszabályzatokból és Hirdetményekből.
Vedd fel a kapcsolatot a hirdetővel

+36 30 383 7
Vedd fel a kapcsolatot a hirdetővel

+36 30 383 7
UI_KIT.CHARACTER_COUNTER__COMPONENT.ACTUAL_CHARACTER__SR_ONLY UI_KIT.CHARACTER_COUNTER__COMPONENT.MAXIMUM_CHARACTER__SR_ONLY
Hasonló eladó ingatlanok Mézesvölgy városrészben
Feltöltve: 1 hónapja
0
317 333 Euro
122,17 millió Ft 939,8 ezer Ft/m²
Eladó családi ház, Veresegyház, Mézesvölgy
Frissítve: 23 napja
11
119,99 millió Ft 470,5 ezer Ft/m²
Eladó ikerház, Veresegyház
Frissítve: 23 napja
7
119,9 millió Ft 999,2 ezer Ft/m²
Eladó családi ház, Veresegyház

Fedezd fel a
hasonló házakat!Még további házak Veresegyházon 120 M Ft körüli értékben
Tovább a hirdetésekhez Frissítve: 1 napja
16
109,9 millió Ft 845,4 ezer Ft/m²
Eladó családi ház, Veresegyház

Frissítve: 6 napja
14
109,9 millió Ft 845,4 ezer Ft/m²
Eladó családi ház, Veresegyház
Frissítve: 2 hónapja
5
110 millió Ft 1,01 millió Ft/m²
Eladó ikerház, Veresegyház
