

+18 fotó
Hirdetéskód: 8718767
Referenciaszám: M301713-5043882
Frissítve: 7 napja
Veresegyház eladó családi ház 6 szobás: 150 millió Ft
150 millió Ft
595 238 Ft/m²
252 m²
751 m²
6 szoba
Eladó Ház, Veresegyház
*** ELADÓ több generációs családi ház Széchenyidombon ***
(Az ingatlanban található béépített bútorok,berendezési tárgyak nem képezik a vételár részét és azok kötelezően megvásárolandóak)
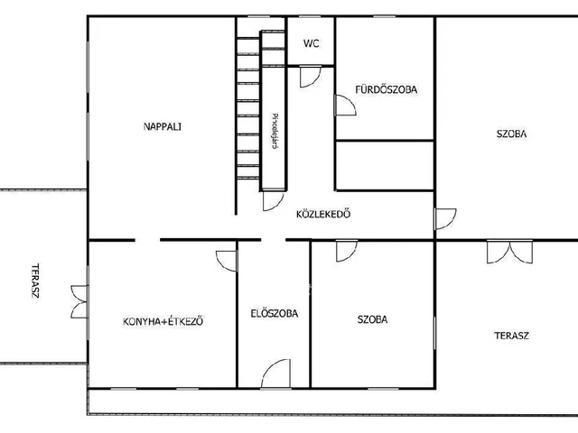
Megvételre kínálok Veresegyház közkedvelt területén, nyugodt, csendes lakóövezetben, egy 3 szintes, azonnal költözhető családi házat, hatalmas gyönyörű kerttel, medencével, dupla állásos garázzsal és további nyílt kocsibeállóval. A rendszeresen gondozott kertben öntözőrendszer is található.
A nettó 252 nm-es ingatlan, hatalmas tereket biztosít, napfényes, rengeteg holmi tárolására alkalmas. Tökéletes választás nagy családosok számára vagy akik idősebb generációval szeretnének összeköltözni. De ugyancsak jó választás lehet akár irodának, rendelőnek, esetleg magán óvodának is. A ház teljesen alápincézett, itt jelenleg egy elektromos kapuval ellátott dupla állásos garázs, egy tároló és egy mosókonyha/nyárikonyha és egy zuhanyzós fürdő van kialakítva.
A középső szinten kapott helyet egy előszoba, konyha, étkező, nappali, két hálószoba, két fürdő és mosdók illetve a 14.7 m2-es első terasz, mely a konyhából nyílik illetve a 27.7 m2-es hátsó terasz, mely a hálószobával kapcsolódik közvetlenül.
A legfelső szinten pedig egy szintén tágas nappali, 2 szoba és egy fürdő mosdóval került kialakításra.
Az ingatlan nem szigetelt, de 38-as téglából épült, tökéletes hőérzetet biztosít a téli és a nyári hónapokban egyaránt.
A fűtésért a pincében lévő gázkazán felel radiátoros hőleadással illetve a hűtő-fűtő klíma is alkalmasak erre a célra. A melegvízellátást két villanybojler oldja meg.
A bútorok igény esetén maradhatnak, megbeszélés szerint, a vételár részén felüli értéket képviselve.
Közelben: Veresegyház központja ahol szinten minden megtalálható, autóval 5 perc, gyalogosan maximum 15 perc, a távolsági busz és vonatállomás, óvodák, iskolák és gimnázium, boltok, piac, és a természet is karnyújtásnyira.
Tehermentes, 1/1-es tulajdon, rugalmasan költözhető.
Amennyiben érdekes leeht a számára, keressen a hét bármely napján rugalmasan mutatom!
Hivatkozás: M301713
Referencia szám: M301713
Tulajdonságok
Családi ház
Jó állapotú
Gázkazán
1995
Nem adta meg a hirdető
Vedd fel a kapcsolatot a hirdetővel
Czafit Péter OTPip - Budapest I. kerület Zsolt utca 6 - OTP Ingatlanpont Iroda Az iroda összes hirdetése
+36 20 399 0
Hitelkalkulátor
Második évtől
645 532 Ft A 13. hónaptól
7,99%
Végig fix Futamidő: 20 év Banki visszahívás
Az OTP Bank munkatársai a neked megfelelő napszakban veszik fel veled a kapcsolatot. A becslés a hirdető által megadott adatokon alapul. A jelen tájékoztatás nem minősül ajánlattételnek és nem teljes körű, az egyes feltételek a hitelbírálat eredményétől függően változhatnak. Kérjük, a részletekről tájékozódj az OTP Bank fiókjaiban vagy az OTP Bank honlapján közzétett vonatkozó Üzletszabályzatokból és Hirdetményekből.
Vedd fel a kapcsolatot a hirdetővel
Czafit Péter OTPip - Budapest I. kerület Zsolt utca 6 - OTP Ingatlanpont Iroda Az iroda összes hirdetése
+36 20 399 0
Vedd fel a kapcsolatot a hirdetővel
Czafit Péter OTPip - Budapest I. kerület Zsolt utca 6 - OTP Ingatlanpont Iroda Az iroda összes hirdetése
+36 20 399 0
UI_KIT.CHARACTER_COUNTER__COMPONENT.REMAINING_SPACE__SR_ONLYUI_KIT.CHARACTER_COUNTER__COMPONENT.MAXIMUM_CHARACTER__SR_ONLY
Hasonló eladó ingatlanok Veresegyházon
Frissítve: 6 napja

7
145 M Ft 1 208 333 Ft/m²
Eladó ikerház, Veresegyház
Frissítve: 9 napja

11
145,5 M Ft 1 299 107 Ft/m²
Eladó családi ház, Veresegyház

Frissítve: 10 napja

6
149,9 M Ft 1 338 393 Ft/m²
Eladó családi ház, Veresegyház

Fedezd fel a
hasonló házakat!Még további házak Veresegyházon 150 M Ft körüli értékben
Tovább a hirdetésekhez Frissítve: 10 napja

20
139,9 M Ft 874 375 Ft/m²
Eladó családi ház, Veresegyház
Frissítve: 11 napja

20
136,8 M Ft 755 801 Ft/m²
Eladó családi ház, Veresegyház
Frissítve: 11 napja

20
149 M Ft 993 333 Ft/m²
Eladó ikerház, Veresegyház


Töltsd fel hirdetésed ingyenesen!
Egyszerű