Hirdetéskód: 8832440
Referenciaszám: 2500000151
Frissítve: 2 napja
Vonyarcvashegy eladó családi ház 3 szobás: 325 millió Ft
325 millió Ft
1 m²
3 szoba
Leírás
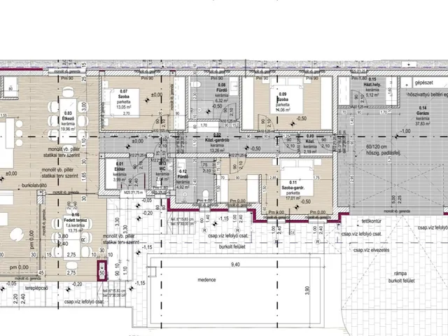
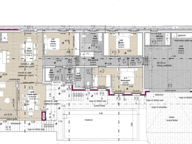
Emeleti elhelyezkedés: Földszinten Épület emeleteinek száma: 1 Állapota: átlagos Komfort besorolása: Luxus komfortos Építési éve: 2027 Alapterülete: 194 m2 Telekterülete: 1 m2 Szobák száma: 3szoba Közművek: Gáz, Víz, Villany, Csatorna Vízellátás: Vezetékes víz, Közelben Áramellátás: Telekhatáron, Közelben Homlokzat állapot: átlagos Építési mód: Tégla Napelem: Van Energetikai besorolás: Nincs adat
Extrák: Különnyíló szobák, Étkező, Energetikai tanúsítvány
Eladó luxus ingatlan panorámás balatoni kilátással!
Kivételes lehetőség a Balaton egyik legszebb pontján! Ez a modern, exkluzív otthon a luxus és a természet harmóniáját kínálja. A három tágas hálószoba, a nagy amerikai konyha-étkező és a világos nappali a kényelmet és a kifinomultságot ötvözi.
A fedett teraszról lenyűgöző panoráma tárul a Balatonra – tökéletes helyszín a reggeli kávéhoz, családi vacsorákhoz vagy baráti összejövetelekhez.
A házhoz tartozó impozáns garázs, elegáns kő- és faelemekkel díszített homlokzat, valamint gondosan megtervezett kert biztosítja a valódi luxus életérzést.
Kiemelt jellemzők:
3 hálószoba
Nagy amerikai konyha-étkező
Nappali és fedett terasz balatoni panorámával
Modern, minőségi anyagokból épülő luxus kivitelezés
Tágas garázs
Ez az otthon nem csupán ingatlan, hanem életstílus – azoknak, akik szeretik a minőséget és a nyugalmat.
Az ingatlan jelenleg építés alatt áll. A feltüntetett képek látványtervek, az alaprajz tájékoztató jellegű, a vevő igényei szerint módosítható.
Kérdés esetén keressen bizalommal!
+36 20 441 5668
takacs.adrienn@h-kontakt.hu
Tulajdonságok
Családi ház
1
Átlagos
2027
Nem adta meg a hirdető
Van
Vedd fel a kapcsolatot a hirdetővel
+36 20 349 8
Hitelkalkulátor
Második évtől
1 398 652 Ft A 13. hónaptól
7,99%
Végig fix Futamidő: 20 év Banki visszahívás
Az OTP Bank munkatársai a neked megfelelő napszakban veszik fel veled a kapcsolatot. A becslés a hirdető által megadott adatokon alapul. A jelen tájékoztatás nem minősül ajánlattételnek és nem teljes körű, az egyes feltételek a hitelbírálat eredményétől függően változhatnak. Kérjük, a részletekről tájékozódj az OTP Bank fiókjaiban vagy az OTP Bank honlapján közzétett vonatkozó Üzletszabályzatokból és Hirdetményekből.
Vedd fel a kapcsolatot a hirdetővel
+36 20 349 8
Vedd fel a kapcsolatot a hirdetővel
+36 20 349 8
UI_KIT.CHARACTER_COUNTER__COMPONENT.ACTUAL_CHARACTER__SR_ONLY UI_KIT.CHARACTER_COUNTER__COMPONENT.MAXIMUM_CHARACTER__SR_ONLY
Hasonló eladó ingatlanok Vonyarcvashegyen
Frissítve: 1 hónapja
3
325 millió Ft 1,63 millió Ft/m²
Eladó családi ház, Vonyarcvashegy
Frissítve: 9 napja
15
339 millió Ft 790,2 ezer Ft/m²
Eladó családi ház, Vonyarcvashegy

Frissítve: 2 napja
20
349,9 millió Ft 1,42 millió Ft/m²
Eladó családi ház, Vonyarcvashegy


Fedezd fel a
hasonló házakat!Még további házak Zala megyében 325 M Ft körüli értékben
Tovább a hirdetésekhez Frissítve: 23 napja
1
325 millió Ft 1,71 millió Ft/m²
Eladó családi ház, Vonyarcvashegy
Frissítve: ma
3
325 millió Ft 1,71 millió Ft/m²
Eladó családi ház, Vonyarcvashegy, Horváth Imre utca
Frissítve: 21 napja
2
325 millió Ft 1,71 millió Ft/m²
Eladó családi ház, Vonyarcvashegy
