+8 fotó
Hirdetéskód: 8908543
Referenciaszám: 1075011
Frissítve: 16 napja
Zalaegerszeg eladó családi ház 2+2 fél szobás: 99,5 millió Ft
99,5 millió Ft
985,1 ezer Ft/m²
101 m²
545 m²
2+2 fél szoba
Rugalmas kivitelezés, egyedi ház, magas minőség!
Eladásra kínálok Zalaegerszegen a Gébárti-tó közelében, 545 m²-es közel sík telken, hangulatos terasszal megálmodott 101 m²-es családi házat, melyet a vevő igényeihez igazodva, megegyezés alapján épít/szerel fel a kivitelező.
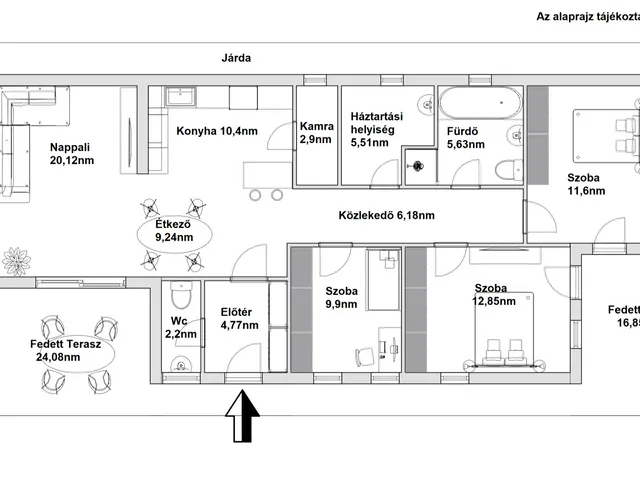
A tervek alapján nappali + 3 hálószoba, étkezős konyha, fürdőszoba, 2 toalett, kamra és háztartási helyiségből áll az egyszintes családi ház.
Az épület belső hasznos alapterülete 101,18 m², a külső fedett teraszok összesen 40,93 m²-t tesznek ki, így az épület összes nettó területe 142,11 m².
A kivitelező rugalmas, a vevő igényei és elképzelése alapján változtatható a fűtési rendszertől, szürkevíz hasznosítástól a napelemekig, és még számos opcionális lehetőséggel, amit lejjebb olvashat.
A telek két utcafrontról is megközelíthető, a tervezett elrendezés célja a funkcionalitás, a természetes fény optimális kihasználása és a korszerű, energiatakarékos lakókörnyezet megteremtése.
Az épület külső megjelenését és használhatóságát tovább növeli a két, különböző irányba tájolt fedett terasz, amelyek kellemes kültéri pihenő- és étkező funkciót biztosítanak, valamint szoros kapcsolatot teremtenek a kerttel.
A falazat YTONG téglából készül, a főfalak 30 cm vastagságúak, melyekre 10 cm-es EPS hőszigetelés kerül kívülről.
A falak 10 cm, a vizes helyiségekben 12,5 cm vastagságú szerelt válaszfalakból készülnek.
A tervezett födém szintén szerelt, némely helyiségben tűzálló gipszkarton álmennyezet, felette minimum 30cm vastagságú hőszigeteléssel.
Ezzel a szerkezeti megoldással AA+ energetikai besorolással bír majd az épület.
A tető beton anyagú tetőcserép, antracit szürke színben, 10 cm-es szigeteléssel készül, nyeregtető szerkezettel.
Műszaki tartalom:
Az épületben víztárolós kondenzációs gázkazán biztosítja a melegvíz ellátást, valamint a padlófűtést is. Alternatív fűtésre és hűtésre is alkalmas klíma, és a fürdőszobába egy törölközőszárítós radiátor kerül felszerelésre.
A nyílászárók műanyag szerkezetűek, hőszigetelő, 3 rétegű, víztiszta üvegezéssel ellátott, fokozott hő- és hangszigetelő tulajdonsággal rendelkeznek.
A vételár tartalmazza:
- bejárati ajtó 150.000 Ft értékhatárig
- redőnyök és rovarhálók
- 8 db beltéri ajtó
- fehér falfestés
- hidegburkolatok br 6.000-8000 Ft/m²-ig
- melegburkolat br 5.000-7000 Ft/m²-ig
Opcionálisan megrendelhető:
- falazott kerítés
- parkosított udvar
- öntözőrendszer csőrendszer kiépítése
- 2 kerti csap
- 2 kocsibejáró
- járda, térkövezett kocsibeálló, kültéri fedett beálló
- napelem
- motoros redőny
- színes falfestés
- br 9.000-10.000 ft/m² burkolat
- duál fűtésrendszer: a hőszivattyúról is működtethető padlófűtés és helyiségenként külön szabályozható hőmérséklet
- szürkevíz hasznosítás a toalettben, mellyel jelentősen csökkenhet a vízfogyasztás.
70 % opcionális megrendelésnél - a konyhabútor árából 2 Millió forint értékhatárig átvállal a kivitelező.
Ajánlom:
Ez a ház ideális választás mindazoknak, akik közel szeretnének maradni a városhoz, mégis természetközeli környezetben képzelik el jövőjüket egy modern, új otthonban, ami tényleg úgy készül, ahogy megálmodták.
Tulajdonságok
Családi ház
Új építésű
2026
AA+ (2016-2023-as besorolás)
Vedd fel a kapcsolatot a hirdetővel
+36 70 668 8
Hitelkalkulátor
Második évtől
428 203 Ft A 13. hónaptól
7,99% 8,49%
Végig fix Futamidő: 20 év Banki visszahívás
Az OTP Bank munkatársai a neked megfelelő napszakban veszik fel veled a kapcsolatot. A becslés a hirdető által megadott adatokon alapul. A jelen tájékoztatás nem minősül ajánlattételnek és nem teljes körű, az egyes feltételek a hitelbírálat eredményétől függően változhatnak. Kérjük, a részletekről tájékozódj az OTP Bank fiókjaiban vagy az OTP Bank honlapján közzétett vonatkozó Üzletszabályzatokból és Hirdetményekből.
Vedd fel a kapcsolatot a hirdetővel
+36 70 668 8
Vedd fel a kapcsolatot a hirdetővel
+36 70 668 8
UI_KIT.CHARACTER_COUNTER__COMPONENT.ACTUAL_CHARACTER__SR_ONLY UI_KIT.CHARACTER_COUNTER__COMPONENT.MAXIMUM_CHARACTER__SR_ONLY
Hasonló eladó ingatlanok Zalaegerszegen
Frissítve: 1 napja
17
90,48 millió Ft 580 ezer Ft/m²
Eladó családi ház, Zalaegerszeg

Frissítve: 1 hónapja
7
91,2 millió Ft 1,14 millió Ft/m²
Eladó családi ház, Zalaegerszeg

Frissítve: 8 napja
7
91,2 millió Ft 1,14 millió Ft/m²
Eladó családi ház, Zalaegerszeg


Fedezd fel a
hasonló házakat!Még további házak Zalaegerszegen 99,5 M Ft körüli értékben
Tovább a hirdetésekhez Frissítve: 9 napja
14
95 millió Ft 1,06 millió Ft/m²
Eladó családi ház, Zalaegerszeg

Frissítve: 21 napja
14
95 millió Ft 1,06 millió Ft/m²
Eladó családi ház, Zalaegerszeg

Frissítve: 9 napja
20
89,9 millió Ft 299,7 ezer Ft/m²
Eladó családi ház, Zalaegerszeg

