+17 fotó
Hirdetéskód: 8988795
Referenciaszám: 719300255
Frissítve: ma
Zalaerdőd eladó családi ház 3 szobás: 6,9 millió Ft
6,9 millió Ft
94,5 ezer Ft/m²
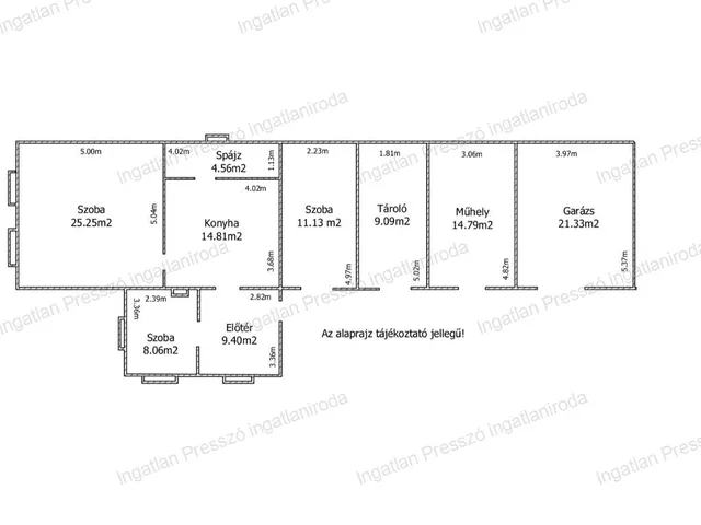
73 m²
2300 m²
3 szoba
Eladó 3 szobás, teljesen felújítandó családi ház Zalaerdődön!
Az Ingatlan Presszó eladásra kínál 3 szobás családi házat Zalaerdődön.
Az Ingatlan Preszó által kínált zalaerdődi családi ház jellemzői:
- az ingatlan 73 m2-es, a hozzá tartozó széles telek 2300 m2
- fűtése kályháról megoldott
- közművek: villany bevezetve, víz a telken (udvaron), csatorna a telken, gáz az utcában
- villany: 1x16 Ah nappali
- a tető borítása cserép, szerkezete nem mai de még jó
- melléképületek, garázs, nyárikonyha is tartozik az ingatlanhoz
- néhány gyümölcsfa is megtalálható a telken (diófa, almafa), a többi füves terület
- a településen optikai internet, óvoda, bolt, orvosi rendelő is elérhető
- szomszédos falukban (Dabronc, Gógánfa) posta, általános iskola, és bölcsöde is megtalálható
- Sümegen gyógyszertár, boltok, és gimnázium is van
- nagyon szuper kis falu, amit folyamatosan karbantartanak, ráadásul jó lakóközösséggel rendelkezik
Amennyiben az Ingatlan Presszó által kínált családi ház, vagy bármely kínálatunkban található ingatlan felkeltette érdeklődését, hívjon bizalommal a megadott telefonszámon.
Irodánk szakember ajánlásai igény esetén: ügyvéd, energetikai tanúsítvány, hitelügyintézés, értékbecslés, statikus, földmérő, építészmérnök, belsőépítész, villanyszerelő, víz-, gáz-, központi fűtés szerelő, kőműves, burkoló
Továbbiakban keresek eladó vagy kiadó családi házat-, lakást-, nyaralót-, gazdasági épületet-, raktárt-, csarnokot,- telephelyet,- építési telket-, zártkertet-, külterületet-, szántót-, legelőt-, erdőt, akár még tulajdoni hányadot is ügyfeleim részére, Veszprém vármegyében, Sümeg- és Tapolca környékén, valamint Balaton-felvidéken, Káli-medencében, Művészetek Völgyében, Balatonederics-Zánka között.
Köszönettel,
Bódis Péter
ingatlanértékesítő
Ingatlan Presszó
Térjen be hozzánk egy ingatlanra!
Tulajdonságok
Családi ház
1
Felújítandó
Egyéb
1912
II (2016-2023-as besorolás)
Vedd fel a kapcsolatot a hirdetővel
+36 30 688 6
Hitelkalkulátor
Második évtől
29 694 Ft A 13. hónaptól
7,99%
Végig fix Futamidő: 20 év Banki visszahívás
Az OTP Bank munkatársai a neked megfelelő napszakban veszik fel veled a kapcsolatot. A becslés a hirdető által megadott adatokon alapul. A jelen tájékoztatás nem minősül ajánlattételnek és nem teljes körű, az egyes feltételek a hitelbírálat eredményétől függően változhatnak. Kérjük, a részletekről tájékozódj az OTP Bank fiókjaiban vagy az OTP Bank honlapján közzétett vonatkozó Üzletszabályzatokból és Hirdetményekből.
Vedd fel a kapcsolatot a hirdetővel
+36 30 688 6
Vedd fel a kapcsolatot a hirdetővel
+36 30 688 6
UI_KIT.CHARACTER_COUNTER__COMPONENT.ACTUAL_CHARACTER__SR_ONLY UI_KIT.CHARACTER_COUNTER__COMPONENT.MAXIMUM_CHARACTER__SR_ONLY
Hasonló eladó ingatlanok Zalaerdődön
Frissítve: 21 napja
14
7,5 millió Ft 83,3 ezer Ft/m²
Eladó egyéb ház, Pápasalamon
Feltöltve: 1 éve
1
18 293 Euro
7,04 millió Ft 103,6 ezer Ft/m²
Eladó családi ház, Doba
Feltöltve: 1 éve
0
7 millió Ft 77,8 ezer Ft/m²
Eladó családi ház, Várkesző

Fedezd fel a
hasonló házakat!Még további házak Veszprém megyében 6,9 M Ft körüli értékben
Tovább a hirdetésekhez Frissítve: 21 napja
10
7,5 millió Ft 115,4 ezer Ft/m²
Eladó családi ház, Káptalanfa

Frissítve: 13 napja
4
7 millió Ft 77,8 ezer Ft/m²
Eladó családi ház, Csót

Frissítve: 1 napja
20
7,5 millió Ft 166,7 ezer Ft/m²
Eladó családi ház, Külsővat

