+11 fotó
Hirdetéskód: 8853486
Referenciaszám: M320529-5125754
Frissítve: 21 napja
Pécs eladó egyéb garázs 81 m² alapterületű: 41,5 millió Ft
41,5 millió Ft
512,3 ezer Ft/m²
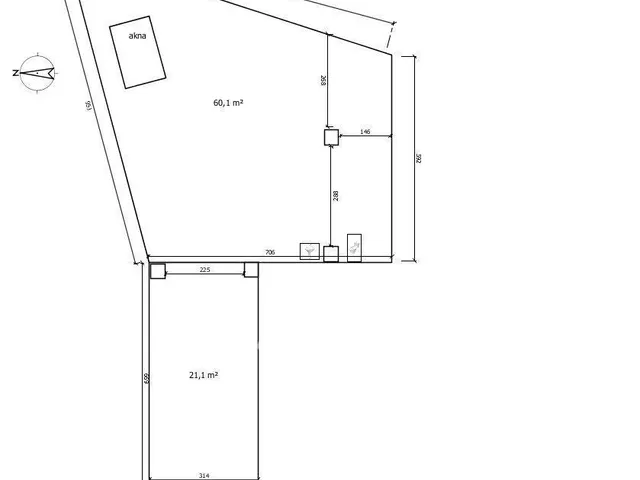
81 m²
Eladó Teremgarázs, Pécs
81 négyzetméteres teremgarázs eladó Pécsen a Pálosok templom közelében!
3 autó elfér úgy, hogy nem akadályozzák egymást a ki-be közlekedésben. Negyedik is elfér a folyosón. A képen látható fehér autó egy aknán áll. Víz villany, szennyvíz van. A felette levő háztól külön vízórával ellátott WC és kézmosó is van. Szintén külön mérője van a villamos rendszernek. Jelen pillanatban a tulajdonos raktárnak használja, de két hét alatt kipakolja, amikor el lesz adva.
Referenciaszám: M320529
Referencia szám: M320529
Tulajdonságok
Egyéb garázs
Vedd fel a kapcsolatot a hirdetővel

+36 70 393 4
Vedd fel a kapcsolatot a hirdetővel

+36 70 393 4
Vedd fel a kapcsolatot a hirdetővel

+36 70 393 4
UI_KIT.CHARACTER_COUNTER__COMPONENT.ACTUAL_CHARACTER__SR_ONLY UI_KIT.CHARACTER_COUNTER__COMPONENT.MAXIMUM_CHARACTER__SR_ONLY
Hasonló eladó ingatlanok Pécsett
Frissítve: 21 napja
17
41,5 millió Ft 512,3 ezer Ft/m²
Eladó garázs, Pécs

Frissítve: ma
14
41,5 millió Ft 512,3 ezer Ft/m²
Eladó garázs, Pécs

Frissítve: 1 hónapja
7
40 millió Ft 493,8 ezer Ft/m²
Eladó garázs, Pécs, Mecsekoldal, Hunyadi
Frissítve: 6 hónapja
1
38,8 millió Ft 718,5 ezer Ft/m²
Eladó garázs, Tapolca, Keleti városrész, Halápi úti garázssor
Frissítve: 21 napja
2
44 millió Ft 733,3 ezer Ft/m²
Eladó garázs, Szeged, Móraváros
Feltöltve: 1 éve
4
45 millió Ft 271,1 ezer Ft/m²
Eladó garázs, Zalaegerszeg, Kertváros, Átalszegett u. 23/A. B.lph.
