

+18 fotó
Hirdetéskód: 8727450
Referenciaszám: M312220-5049025
Frissítve: 2 napja
Budapest XXIII. kerület eladó egyéb lakás 2+2 fél szobás: 99,9 millió Ft
99,9 millió Ft
1 029 897 Ft/m²
97 m²
2+2 fél szoba
földszint
Eladó Lakás, Budapest 23. ker.
Árcsökkenés! Eladó sorház Budapest, XXIII. kerület közkedvelt részén!
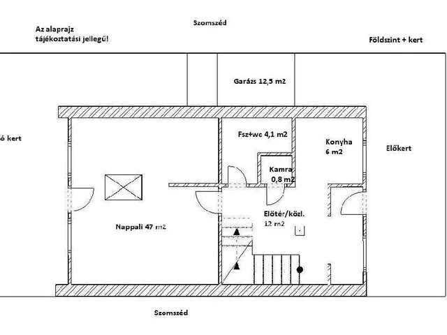
Budapest XXIII. kerületének egyik kedvelt utcájában kínálunk megvételre egy jó állapotú, belső kétszintes, könnyűszerkezetes sorházat, amely igazi otthonos hangulatot áraszt. Az ingatlan nettó 97, bruttó 110 négyzetméter alapterületű, kényelmes elosztású, 2+2 szobával és duplakomforttal rendelkezik. A ház különlegessége a közel 47 négyzetméteres, tágas és világos, kertkapcsolatos nappali, amelyet a korábbi terasz beépítésével alakítottak ki, így igazi központja lehet a családi életnek.
A saját, kizárólagos kerthasználat egy igazi kincs: bár nem nagy, éppen ideális arra, hogy a család kiüljön egy beszélgetésre, kávéra a barátokkal, nyári estéken gyertyafény mellett vacsorázzon, vagy egy kis zölddel vegye körül magát a rohanó hétköznapok után. A kerthez saját garázs is tartozik, az ingatlan minden közműve önálló mérőórával rendelkezik. A ház 1988-ban épült, majd 2001-ben szinte teljes körű felújításon esett át. A fűtésről gázcirkó és elektromos rendszer gondoskodik, a kellemes komfortérzetet a nappaliban központi klíma, és egy külön klíma biztosítja az emeleten.
Az elhelyezkedés szintén kiemelkedő: a ház nyugodt környezetben található, mégis kiváló közlekedési adottságokkal rendelkezik. A közeli buszjáratok (66, 66E, 123, 135, 166) gyors kapcsolatot biztosítanak a belváros és a környező kerületek felé, a H6-os HÉV-vel pedig szintén könnyedén elérhető a város. Átszállással az M3 metró is rövid idő alatt megközelíthető, autóval pedig néhány perc az M0-s autóút. A közelben minden megtalálható, ami a kényelmes mindennapokhoz szükséges: bevásárlási lehetőségek, iskola, óvoda, önkormányzat, gyógyszertár és orvosi rendelő, sportolási lehetőségek rövid időn belül elérhetőek.
Ez az ingatlan azok számára lehet ideális választás, akik szeretnék a kertvárosi nyugalmat élvezni, miközben tágas, világos terekkel rendelkező, jól karbantartott otthonban élnek, ahol a mindennapok kényelme és a városhoz való jó közlekedési kapcsolat egyaránt adott.
Ügyfeleink számára teljes körű ügyintézéssel állunk rendelkezésre. Kínálatunkból választott ingatlan finanszírozásához kedvezményes hitelmegoldásokat kínálunk, illetve az adásvételi szerződés megkötéséhez megbízható ügyvédi közreműködést is tudunk biztosítani!
Ha hirdetésünk felkeltette érdeklődését, kérem hívjon bizalommal a hét bármely napján!
99900000 Ft
Referencia szám: M312220
Tulajdonságok
Egyéb lakás
Jó állapotú
Gázkazán
1988
D
Vedd fel a kapcsolatot a hirdetővel
Sasaran-Kereki Katalin OTPip - Budapest VIII. kerület József körút 72 - OTP Ingatlanpont Iroda Az iroda összes hirdetése
+36 30 353 3
Hitelkalkulátor
Második évtől
429 924 Ft A 13. hónaptól
7,99%
Végig fix Futamidő: 20 év Banki visszahívás
Az OTP Bank munkatársai a neked megfelelő napszakban veszik fel veled a kapcsolatot.Hitelfelvétel esetén akár egy héttel rövidebb lehet az ügyintézés.
Ez az ingatlan a nálunk meglévő adatok alapján azonnali értékbecslésre alkalmas lehet.
A becslés a hirdető által megadott adatokon alapul. A jelen tájékoztatás nem minősül ajánlattételnek és nem teljes körű, az egyes feltételek a hitelbírálat eredményétől függően változhatnak. Kérjük, a részletekről tájékozódj az OTP Bank fiókjaiban vagy az OTP Bank honlapján közzétett vonatkozó Üzletszabályzatokból és Hirdetményekből.
Vedd fel a kapcsolatot a hirdetővel
Sasaran-Kereki Katalin OTPip - Budapest VIII. kerület József körút 72 - OTP Ingatlanpont Iroda Az iroda összes hirdetése
+36 30 353 3
Vedd fel a kapcsolatot a hirdetővel
Sasaran-Kereki Katalin OTPip - Budapest VIII. kerület József körút 72 - OTP Ingatlanpont Iroda Az iroda összes hirdetése
+36 30 353 3
UI_KIT.CHARACTER_COUNTER__COMPONENT.REMAINING_SPACE__SR_ONLYUI_KIT.CHARACTER_COUNTER__COMPONENT.MAXIMUM_CHARACTER__SR_ONLY
Hasonló eladó ingatlanok Budapest XXIII. kerületben
Frissítve: 6 napja

13
99,9 M Ft
Eladó lakás, Budapest XXIII. kerület
Frissítve: ma

14
97,98 M Ft 1 289 211 Ft/m²
Eladó lakás, Budapest XXIII. kerület

Frissítve: 11 napja

20
99,9 M Ft 786 615 Ft/m²
Eladó lakás, Budapest XXIII. kerület


Fedezd fel a
hasonló lakásokat!Még további lakások Budapest XXIII. kerületben 99,9 M Ft körüli értékben
Tovább a hirdetésekhez Frissítve: 9 napja

20
Altruist Architect Kft
99,9 M Ft 1 280 769 Ft/m²
Eladó lakás, Budapest XXIII. kerület

Frissítve: 11 napja

11
107,64 M Ft 1 494 931 Ft/m²
Eladó lakás, Budapest XI. kerület

Frissítve: 4 napja

9
97,75 M Ft 1 437 486 Ft/m²
Eladó lakás, Budapest XI. kerület


Töltsd fel hirdetésed ingyenesen!
Egyszerű