+3 fotó
Hirdetéskód: 8847749
Referenciaszám: 618229
Frissítve: 7 napja
Nyíregyháza eladó egyéb lakás 2 szobás: 52 millió Ft
52 millió Ft
981 113 Ft/m²
53 m²
2 szoba
1. emelet
Leírás
Eladó egy különleges téglaépítésű lakás Nyíregyháza belvárosában mindössze 6 lakásos társasházban, amely kiváló lehetőséget kínál mindazok számára, akik a modern életstílust keresik.
Várható átadás: 2027. év eleje.
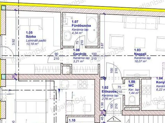
Az ingatlan alapterülete 49 m2, két szobával rendelkezik, így ideális választás lehet fiatal pároknak vagy kisebb családoknak. Az új építésű lakás hőszigetelt külső állapota biztosítja a kellemes hőmérsékletet télen és nyáron egyaránt. A lakás fűtése kondenzációs kazánnal megoldott, emellett a padlófűtés biztosítja az egyenletes hőeloszlást. Az ingatlan összkomfortos, így minden igényt kielégít, és a kelet-nyugati tájolásnak köszönhetően a napfényes órák száma is maximális. a lakás bútorozatlan, így lehetőséget ad arra, hogy saját ízlésének megfelelően alakítsa ki a belső teret.
A lakáshoz önálló garázs 10 millió Ft-ért, vagy belső udvari beálló 3, 5 millió Ft-ért vásárolható.
Az irányár 51 999 000 Ft, ami figyelembe véve a belvárosi elhelyezkedést és az ingatlan modern jellemzőit, kiváló befektetési lehetőséget kínál.
Balla Anett
Ingatlan&Bankbár
Tulajdonságok
Egyéb lakás
Új építésű
2026
Nem adta meg a hirdető
Vedd fel a kapcsolatot a hirdetővel
+36 30 339 7
Hitelkalkulátor
Második évtől
223 780 Ft A 13. hónaptól
7,99% 8,49%
Végig fix Futamidő: 20 év Banki visszahívás
Az OTP Bank munkatársai a neked megfelelő napszakban veszik fel veled a kapcsolatot.Hitelfelvétel esetén akár egy héttel rövidebb lehet az ügyintézés.
Ez az ingatlan a nálunk meglévő adatok alapján azonnali értékbecslésre alkalmas lehet.
A becslés a hirdető által megadott adatokon alapul. A jelen tájékoztatás nem minősül ajánlattételnek és nem teljes körű, az egyes feltételek a hitelbírálat eredményétől függően változhatnak. Kérjük, a részletekről tájékozódj az OTP Bank fiókjaiban vagy az OTP Bank honlapján közzétett vonatkozó Üzletszabályzatokból és Hirdetményekből.
Vedd fel a kapcsolatot a hirdetővel
+36 30 339 7
Vedd fel a kapcsolatot a hirdetővel
+36 30 339 7
UI_KIT.CHARACTER_COUNTER__COMPONENT.ACTUAL_CHARACTER__SR_ONLY UI_KIT.CHARACTER_COUNTER__COMPONENT.MAXIMUM_CHARACTER__SR_ONLY
Hasonló eladó ingatlanok Nyíregyházán
Frissítve: 7 napja
20
54,9 M Ft 1 055 769 Ft/m²
Eladó lakás, Nyíregyháza

Frissítve: 5 napja
15
49,5 M Ft 811 475 Ft/m²
Eladó lakás, Nyíregyháza
Frissítve: 7 napja
18
48 M Ft 738 462 Ft/m²
Eladó lakás, Nyíregyháza


Fedezd fel a
hasonló lakásokat!Még további lakások Nyíregyházán 52 M Ft körüli értékben
Tovább a hirdetésekhez Frissítve: 7 napja
15
57 M Ft 1 096 154 Ft/m²
Eladó lakás, Nyíregyháza

Frissítve: 7 napja
4
50,98 M Ft 1 108 207 Ft/m²
Eladó lakás, Nyíregyháza
Frissítve: 7 napja
15
49 M Ft 777 778 Ft/m²
Eladó lakás, Nyíregyháza

