+5 fotó
Hirdetéskód: 8839268
Referenciaszám: 609595
Frissítve: 11 napja
Pilisszentiván eladó egyéb telek 940 m² telekterületű: 70 millió Ft
70 millió Ft
74,5 ezer Ft/m²
940 m²
Leírás
Vállalkozók, befektetők figyelem!
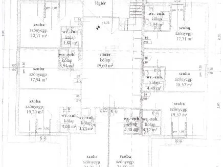
Pilisszentivánon eladó egy 940 nm-es, összközműves telek, amin van egy megkezdett építkezés. Ennek bruttó alapterülete: 296 nm. Az épület tervezett funkciója vállalkozáshoz bemutatóterem, üzlethelyiség, plusz az emeleti szinten kiadó helyiségek. a tervdokumentáció rendelkezésre áll. Az üzlethelyiség tervezése során olyan kialakítást kapott, mely esetlegesen tevékenységi kör változása esetén is több lehetőséget biztosít! Üzlettérből női, férfi vizesblokkok, személyzeti hátsó bejárat, személyzeti wc, öltöző, főzősarok, iroda, tárgyaló stb. Az emeleten külön szobák kialakítása van tervezve. Az épület alápincézésre kerül, ami már el is van kezdve. Itt egy széles lejárón lehet majd lemenni az utca felől, ahol tárolás, raktározás lehetséges. Ha lát benne fantáziát, hívjon mielőbb! ! ! Sokfajta célra hasznosítható az ingatlan (kereskedelmi, oktatási, kulturális, sport, de akár lakhatásra is).
Tulajdonságok
Egyéb telek
Vedd fel a kapcsolatot a hirdetővel
+36 20 253 2
Hitelkalkulátor
Második évtől
312 267 Ft A 13. hónaptól
8,49%
Végig fix Futamidő: 20 év Banki visszahívás
Az OTP Bank munkatársai a neked megfelelő napszakban veszik fel veled a kapcsolatot.Vedd fel a kapcsolatot a hirdetővel
+36 20 253 2
Vedd fel a kapcsolatot a hirdetővel
+36 20 253 2
UI_KIT.CHARACTER_COUNTER__COMPONENT.ACTUAL_CHARACTER__SR_ONLY UI_KIT.CHARACTER_COUNTER__COMPONENT.MAXIMUM_CHARACTER__SR_ONLY
Hasonló eladó ingatlanok Pilisszentivánon
Frissítve: 4 napja
3
75,5 millió Ft 4,5 ezer Ft/m²
Eladó telek, Nagykáta

Frissítve: 4 napja
6
66 millió Ft 34,9 ezer Ft/m²
Eladó telek, Pilisborosjenő

Frissítve: 7 napja
9
69,9 millió Ft 73,4 ezer Ft/m²
Eladó telek, Törökbálint

Fedezd fel a
hasonló telkeket!Még további telkek Pest megyében 70 M Ft körüli értékben
Tovább a hirdetésekhez Frissítve: 14 napja
12
69,9 millió Ft 44,2 ezer Ft/m²
Eladó telek, Csömör

Frissítve: 11 napja
4
75 millió Ft 18,4 ezer Ft/m²
Eladó telek, Nagykovácsi

Frissítve: 4 napja
5
69,9 millió Ft 43,2 ezer Ft/m²
Eladó telek, Érd

