Hirdetéskód: 8855851
Frissítve: 1 napja
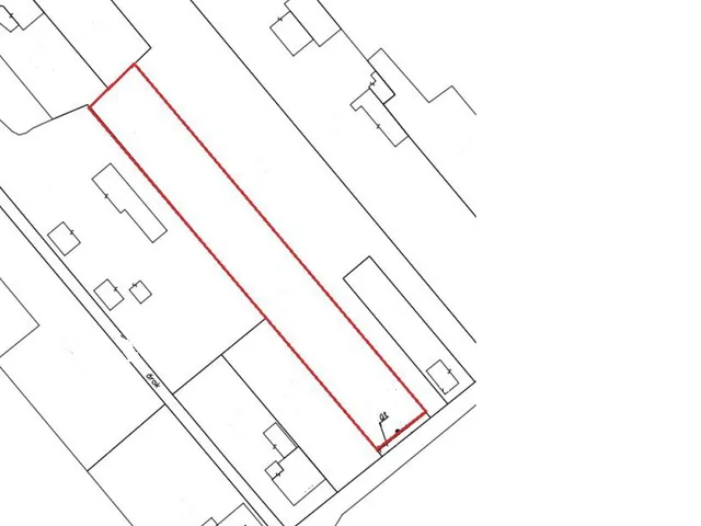
Nagybajcs eladó építési telek 2189 m² telekterületű: 22,5 millió Ft
22,5 millió Ft
10 279 Ft/m²
2189 m²
Csodás természeti lakóövezeti telek
Csodás természeti környezetben közvetlenül a szlovák határ és a Duna mellett 2 lakás építésére is alkalmas sík telek vált elérhetővé nyugodt környezetben jogtiszta, 1/1-es tulajdonostól. Kérésére a házat / házakat is felépítjük rá! Akár a 3%-os hitellel is.
Tulajdonságok
Építési telek
Vedd fel a kapcsolatot a hirdetővel
+36 20 972 3
Hitelkalkulátor
Második évtől
100 372 Ft A 13. hónaptól
8,49%
Végig fix Futamidő: 20 év Banki visszahívás
Az OTP Bank munkatársai a neked megfelelő napszakban veszik fel veled a kapcsolatot.Vedd fel a kapcsolatot a hirdetővel
+36 20 972 3
Vedd fel a kapcsolatot a hirdetővel
+36 20 972 3
UI_KIT.CHARACTER_COUNTER__COMPONENT.REMAINING_SPACE__SR_ONLYUI_KIT.CHARACTER_COUNTER__COMPONENT.MAXIMUM_CHARACTER__SR_ONLY
Hasonló eladó ingatlanok Nagybajcson
Frissítve: 6 napja
3
21,99 M Ft 21 947 Ft/m²
Eladó telek, Lipót

Frissítve: 16 napja
5
20,49 M Ft 9 314 Ft/m²
Eladó telek, Győrság

Frissítve: ma
4
21,7 M Ft 32 979 Ft/m²
Eladó telek, Vámosszabadi


Fedezd fel a
hasonló telkeket!Még további telkek Győr-Moson-Sopron megyében 22,5 M Ft körüli értékben
Tovább a hirdetésekhez Frissítve: 1 napja
4
22,5 M Ft 26 102 Ft/m²
Eladó telek, Győrzámoly
Frissítve: 7 napja
7
22 M Ft 21 956 Ft/m²
Eladó telek, Lipót

Frissítve: 16 napja
4
20,99 M Ft 16 554 Ft/m²
Eladó telek, Tényő

