

+18 fotó
Hirdetéskód: 8756316
Referenciaszám: 388700
Feltöltve: 3 napja
Albertirsa eladó ikerház 5 szobás: 118 millió Ft
118 millió Ft
929 134 Ft/m²
127 m²
600 m²
5 szoba
Eladó ikerház Albertirsa, 127nm, 118.000.000Ft - ÚJ ÉPÍTÉSŰ 100%-os készültséggel!
ELADÓ ALBERTIRSÁN, egy KÖZPONTI, ÖSSZKÖZMŰVES, ASZFALTOZOTT UTCÁBAN ÚJ ÉPÍTÉSŰ, FÖLDSZINTES, AKADÁLYMENTES, AZONNAL BEKÖLTÖZHETŐ családi ház (kétlakásos társasház) SAJÁT KERTTEL, KÜLÖN BEJÁRATTAL. KÉT GENERÁCIÓNAK IS ALKALMAS, KIEMELKEDŐ MŰSZAKI TARTALOMMAL + H tarifával.
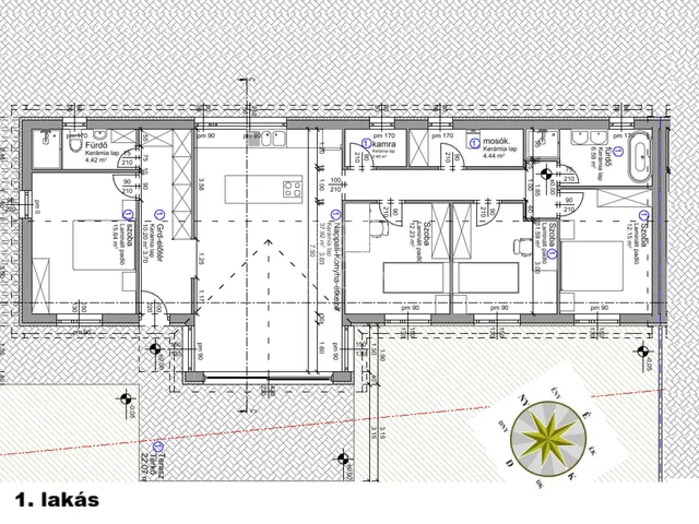
1. lakás GARÁZS épülettel
- Elrendezés: 4 hálószoba + nappali + 2 fürdő + kamra + háztartási helyiség
- Lakótér: 127 m2
- Terasz: 22 m2, 600m2-es SAJÁT KERT
- Külön épület: 37 m2, KÉTÁLLÁSOS GARÁZS
- Teljes hasznos nettó terület: 175 m2 (127 + 37 + 11)
- Ár: 118 M Ft
2. lakás
- Elrendezés: 4 hálószoba + nappali + 2 fürdő + kamra + háztartási helyiség
- Lakótér: 124 m2
- Terasz: 26 m2, 730m2-es SAJÁT KERT
- Teljes hasznos nettó terület: 137 m2 (124 + 13)
- Ár: 102 M Ft
Szerkezet és hőszigetelés:
- Főfal: Leier 30 NF tégla
- Válaszfalak: Leier 20 S és 10 tégla
- Padló alatti szigetelés: EPS 100 (10 cm)
- Külső nyílászárók: fehér műanyag, 3 rétegű üvegezéssel
- Födémszigetelés: 30 cm ásványgyapot
- Fa tetőszerkezet, tetőhéjazat: Bramac betoncserép
- Homlokzati szigetelés: 10 cm EPS
- Lábazati szigetelés: 5 cm + barna szemcsés díszvakolat
Gépészet és komfort:
VILLANYSZERELÉS: 3x16 A +1x25A H tarifás kiépítéssel.
- Hőszivattyú: japán Fujitsu High Power fűtésre és melegvíz-ellátásra
- Hidegburkolatos helyiségekben PADLÓFŰTÉS
- Szobákban és nappaliban digitális vezérlésű, HŰTŐ-FŰTŐ Galletti Flat FANCOILOK
- Fürdőszobánként 1 db törölközőszárító fali radiátor
Vízszerelés:
- 2 db fürdőszoba: fürdőnként törölközőszárítós RADIÁTOR; RAVAK ROSA II akril SAROKKÁD + zuhanyzó; GEBERIT WC falsík mögötti tartály nyomólappal.
A másik fürdőben zuhanyzó, + GEBERIT WC.
Elhelyezkedés és megközelítés
- ÖNÁLLÓ MEGKÖZELÍTHETŐSÉG, SAJÁT MÉRŐÓRÁK
- Vasútállomás: 15 perc séta / 2 perc autó
- Óvoda: ~900 m, bevásárlás: ~1 km
- Budapest: ~35 km
Praktikus, MINDENKI számára jól használható terek, korszerű gépészet és igényes szerkezet – MEGBÍZHATÓ, ÉRTÉKÁLLÓ választás.
Amennyiben felkeltette a meghirdetett ingatlan az érdeklődését, keressen bizalommal.
Kihagyhatatlan ajánlatok: CSOK+, kedvezményes kamatozású lakáshitelek.
Az ország szinte összes bankjának a hiteleit is kínáljuk, egyedi, általunk igénybe vehető kedvezményekkel, díjmentes ügyintézéssel. ...TOVÁBBI, TÖBBEZRES INGATLAN KÍNÁLAT: www.gdn-ingatlan.hu - GDN azonosító: 388700
Tulajdonságok
Ikerház
1
Új építésű
Hőszivattyú
2025
22 m²
B
Vedd fel a kapcsolatot a hirdetővel
+36 20 326 4
Hitelkalkulátor
Második évtől
507 818 Ft A 13. hónaptól
7,99% 8,49%
Végig fix Futamidő: 20 év Banki visszahívás
Az OTP Bank munkatársai a neked megfelelő napszakban veszik fel veled a kapcsolatot. A becslés a hirdető által megadott adatokon alapul. A jelen tájékoztatás nem minősül ajánlattételnek és nem teljes körű, az egyes feltételek a hitelbírálat eredményétől függően változhatnak. Kérjük, a részletekről tájékozódj az OTP Bank fiókjaiban vagy az OTP Bank honlapján közzétett vonatkozó Üzletszabályzatokból és Hirdetményekből.
Vedd fel a kapcsolatot a hirdetővel
+36 20 326 4
Vedd fel a kapcsolatot a hirdetővel
+36 20 326 4
UI_KIT.CHARACTER_COUNTER__COMPONENT.REMAINING_SPACE__SR_ONLYUI_KIT.CHARACTER_COUNTER__COMPONENT.MAXIMUM_CHARACTER__SR_ONLY
Hasonló eladó ingatlanok Albertirsán
Frissítve: 30 napja

20
124 M Ft 708 571 Ft/m²
Eladó ikerház, Albertirsa

Frissítve: 28 napja

20
124 M Ft 976 378 Ft/m²
Eladó ikerház, Albertirsa
Frissítve: 30 napja

20
115 M Ft 311 181 Ft/m²
Eladó családi ház, Albertirsa, Kinizsi utca


Fedezd fel a
hasonló házakat!Még további házak Pest megyében 118 M Ft körüli értékben
Tovább a hirdetésekhez Frissítve: 5 napja

20
109,99 M Ft 999 909 Ft/m²
Eladó családi ház, Albertirsa
Frissítve: 30 napja

20
129 M Ft 708 791 Ft/m²
Eladó családi ház, Albertirsa

Frissítve: 13 napja

20
129 M Ft 708 791 Ft/m²
Eladó családi ház, Albertirsa

Töltsd fel hirdetésed ingyenesen!
Egyszerű