Hirdetéskód: 8914940
Referenciaszám: U0049408
Frissítve: 20 napja
Bocskaikert eladó ikerház 4 szobás: 85,07 millió Ft
85,07 millió Ft
924,7 ezer Ft/m²
92 m²
570 m²
4 szoba
Az otthon, ahol a minőség alapfelszereltség!
Bocskaikert csendes, nyugodt részén, 570 m²-es telken modern kialakítású, új építésű ikerház épül, amely ideális választás mindazok számára, akik korszerű és energiatakarékos otthont keresnek.
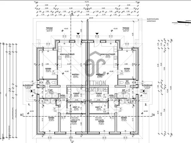
Az ingatlan egy 92,86 m²-es, új építésű, 3 szobás + amerikai konyhás-nappalis ikerház, amely átgondolt térkialakítással és kimagasló műszaki tartalommal valósul meg.
Szerkezet és szigetelés:
- 30 cm-es Porotherm/Leier tégla falazat
- 15 cm homlokzati EPS hőszigetelés
- 10 cm XPS lábazati szigetelés
- 30 cm födémszigetelés
- 3 rétegű üvegezésű, 6 légkamrás műanyag nyílászárók
- A korszerű gépészet és a modern technológia hosszú távon alacsony fenntartási költséget biztosít.
Fűtés és gépészet:
- korszerű padlófűtés, vagy gáz hiányában modern hőszivattyús rendszer
- a vételár része 2 db inverteres klíma
- energiahatékony, alacsony rezsijű működés
- közművek telken belüli csatlakoztatása (amennyiben adott)
- városi víz hiányában házi vízmű
- csatorna hiányában 3 m³-es zárt szennyvíztartály (igény szerint nagyobb kapacitással, felár ellenében)
Az építkezés kezdete: 2026.
A kivitelező az ügyfél igényei szerint is vállalja az építést, akár családi ház kivitelezését is 1141 m²-es telken, 600 000 Ft/m² áron, 2026. március 15-ig érvényes ajánlattal.
Ez az ingatlan kiváló választás mindazoknak, akik megbízható kivitelezésű, jól szigetelt, energiatakarékos új otthont szeretnének nyugodt környezetben, Bocskaikert kedvelt részén.
Érdeklődjön most, és foglalja le időben új otthonát!
Tulajdonságok
Ikerház
Új építésű
Gázkazán
2026
30,1 m²
Nem adta meg a hirdető
Vedd fel a kapcsolatot a hirdetővel
+36 70 465 6
Hitelkalkulátor
Második évtől
366 102 Ft A 13. hónaptól
7,99% 8,49%
Végig fix Futamidő: 20 év Banki visszahívás
Az OTP Bank munkatársai a neked megfelelő napszakban veszik fel veled a kapcsolatot. A becslés a hirdető által megadott adatokon alapul. A jelen tájékoztatás nem minősül ajánlattételnek és nem teljes körű, az egyes feltételek a hitelbírálat eredményétől függően változhatnak. Kérjük, a részletekről tájékozódj az OTP Bank fiókjaiban vagy az OTP Bank honlapján közzétett vonatkozó Üzletszabályzatokból és Hirdetményekből.
Vedd fel a kapcsolatot a hirdetővel
+36 70 465 6
Vedd fel a kapcsolatot a hirdetővel
+36 70 465 6
UI_KIT.CHARACTER_COUNTER__COMPONENT.ACTUAL_CHARACTER__SR_ONLY UI_KIT.CHARACTER_COUNTER__COMPONENT.MAXIMUM_CHARACTER__SR_ONLY
Hasonló eladó ingatlanok Bocskaikertben
Frissítve: 20 napja
2
78,4 millió Ft 922,3 ezer Ft/m²
Eladó ikerház, Bocskaikert

Feltöltve: 5 napja
20
84,9 millió Ft 849 ezer Ft/m²
Eladó családi ház, Bocskaikert

Frissítve: 20 napja
1
87 millió Ft 820,8 ezer Ft/m²
Eladó ikerház, Bocskaikert

Fedezd fel a
hasonló házakat!Még további házak Hajdú-Bihar megyében 85,07 M Ft körüli értékben
Tovább a hirdetésekhez Frissítve: 2 napja
18
89,4 millió Ft 894 ezer Ft/m²
Eladó családi ház, Bocskaikert

Frissítve: 1 hónapja
19
79,89 millió Ft 877,9 ezer Ft/m²
Eladó családi ház, Bocskaikert
Frissítve: 5 napja
20
82,9 millió Ft 552,7 ezer Ft/m²
Eladó családi ház, Bocskaikert

