+9 fotó
Hirdetéskód: 8951605
Referenciaszám: M314884-5189363
Frissítve: 8 napja
Budapest II. kerület eladó ikerház 4 szobás: 299 millió Ft
299 millió Ft
1,48 millió Ft/m²
202 m²
485 m²
4 szoba
Eladó Ház, Budapest 2. ker.
ELADÓ ÚJÉPÍTÉSŰ IKERHÁZFÉL A 2/A KERÜLETBEN, MÁRIAREMETÉN Budapest egyik legkedveltebb, zöldövezeti részén, Máriaremete csendes, panorámás mellékutcájában kínáljuk eladásra ezt az új építésű, 3 szintes, ikerházfelet. A ház prémium minőségű kivitelezéssel készült, modern stílusú és minden igényt kielégít.
Az ingatlan jellemzői:
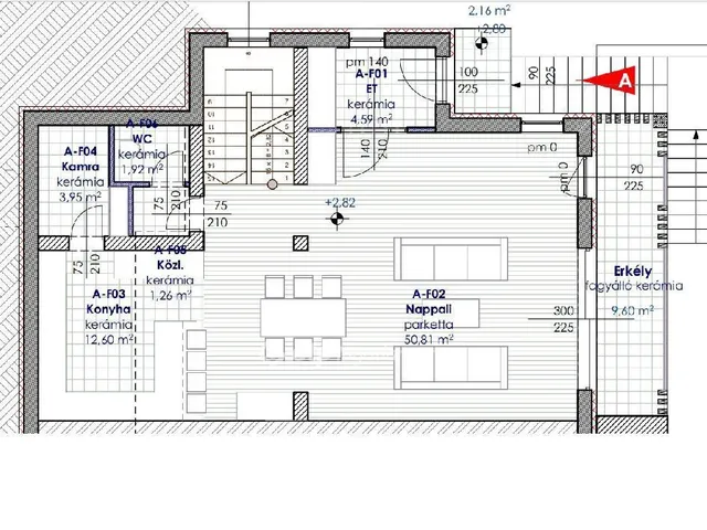
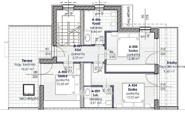
- Méret: 202 m2
- Terasz, Erkélyek :41m2
- Tetőterasz 60m2
- Szobák: 3 hálószoba, 2 fürdőszoba
- Szintek: 3
- Telek mérete: 485 m2
Különleges előnyök:
- Tágas és világos belső terek
- Panorámás kilátás a környékre.
- Modern gépészet és energiahatékony kialakítás
- Csendes, biztonságos környék, távol a város zajától
!A hirdetési ár bruttó összeg és a beépített bútorokat nem tartlamazza!1,27% ÁFA terheli!
Választható hideg-,meleg burkolatok,szaniterek, beltéri ajtók:
Burkolatok 10.000.- bruttó /m2 - ig
Szaniterek 1.500.000.- bruttó/m2- ig
Beltéri ajtók 1.000.000.- bruttó/m2 - ig
Műszaki leírás:
Alapozás
Lemezalap beton, az aljzatbeton és a termett talaj között döngölt múrva ágyazat réteggel
Szigetelés
Talajnedvesség ellen a sáv- és lemezalap vízzáró (vz 4) vasbetonból készül, munkahézagoknál, csomóponti találkozásoknál Aquaflex hézagképzésekkel. Pincei falon 2 réteg. Három rend kent szigetelés, drénlemez borítással, merevfalú dréncső kavicságyban.
Pillérek és támfalak
Monolit vagy zsalukő vasbeton pillérek, és támfalak a kiviteli tervben meghatározott mé-
retekkel
Felmenő falszerkezetek
30 cm Porotherm okostégla, illetve monolit vasbeton szerkezet
Födémek
A kiviteli tervben meghatározott méretezésű monolit vasbeton födémrendszer.20-25 cm
Tetőszerkezet
Monolit vasbeton tetőszerkezet, lejtésbe vágott, terhelhető min 25 cm EPS 150 lépésálló
szigeteléssel alatta, párazáró fólia, BAUDER PVC vízszigeteléssel. Ereszek, csatornák,
tető külső fal felőli borítása fehér színű alumínium szerkezet
Az ingatlan elhelyezkedése ideális családok számára, akik nyugodt, természetközeli otthont keresnek, ugyanakkor fontos számukra a jó megközelíthetőség.
Amennyiben felkeltette érdeklődését, keressen bizalommal, és tekintse meg személyesen ezt a kivételes ingatlant!
Hivatkozás: M314884
Az energetikai tanúsítvány készítése folyamatban van, amint rendelkezésre áll, úgy azzal a hirdetés frissítésre kerül.
Referencia szám: M314884-ZE
Tulajdonságok
2024
Nem adta meg a hirdető
Vedd fel a kapcsolatot a hirdetővel

Urbán Ferenc Krisztián
OTPip - Csongrád Fő utca 54 - OTP Ingatlanpont Iroda
Az iroda összes hirdetése +36 30 588 0
Hitelkalkulátor
Második évtől
1 286 760 Ft A 13. hónaptól
7,99% 8,49%
Végig fix Futamidő: 20 év Banki visszahívás
Az OTP Bank munkatársai a neked megfelelő napszakban veszik fel veled a kapcsolatot. A becslés a hirdető által megadott adatokon alapul. A jelen tájékoztatás nem minősül ajánlattételnek és nem teljes körű, az egyes feltételek a hitelbírálat eredményétől függően változhatnak. Kérjük, a részletekről tájékozódj az OTP Bank fiókjaiban vagy az OTP Bank honlapján közzétett vonatkozó Üzletszabályzatokból és Hirdetményekből.
Vedd fel a kapcsolatot a hirdetővel

Urbán Ferenc Krisztián
OTPip - Csongrád Fő utca 54 - OTP Ingatlanpont Iroda
Az iroda összes hirdetése +36 30 588 0
Vedd fel a kapcsolatot a hirdetővel

Urbán Ferenc Krisztián
OTPip - Csongrád Fő utca 54 - OTP Ingatlanpont Iroda
Az iroda összes hirdetése +36 30 588 0
UI_KIT.CHARACTER_COUNTER__COMPONENT.ACTUAL_CHARACTER__SR_ONLY UI_KIT.CHARACTER_COUNTER__COMPONENT.MAXIMUM_CHARACTER__SR_ONLY
Hasonló eladó ingatlanok Budapest II. kerületben
Frissítve: 1 hónapja
20
299 millió Ft 515,5 ezer Ft/m²
Eladó ikerház, Budapest II. kerület

Frissítve: 1 hónapja
19
275 millió Ft 1,02 millió Ft/m²
Eladó családi ház, Budapest II. kerület
Frissítve: ma
20
298 millió Ft 745 ezer Ft/m²
Eladó családi ház, Budapest II. kerület


Fedezd fel a
hasonló házakat!Még további házak Budapest II. kerületben 299 M Ft körüli értékben
Tovább a hirdetésekhez Frissítve: 15 napja
20
Hidegkút 1
314 millió Ft 1,63 millió Ft/m²
Eladó ikerház, Budapest II. kerület

Frissítve: 26 napja
20
298 millió Ft 812 ezer Ft/m²
Eladó családi ház, Budapest II. kerület, Zrínyi utca

Frissítve: 24 napja
20
299 millió Ft 774,6 ezer Ft/m²
Eladó családi ház, Budapest II. kerület, Aranybulla utca

