Hirdetéskód: 8758500
Referenciaszám: HZ094200-5067951
Frissítve: 6 napja
Budapest XVIII. kerület eladó ikerház 4 szobás: 149,9 millió Ft
149,9 millió Ft
914 ezer Ft/m²
164 m²
500 m²
4 szoba
Eladó ház, Budapest 18. ker.
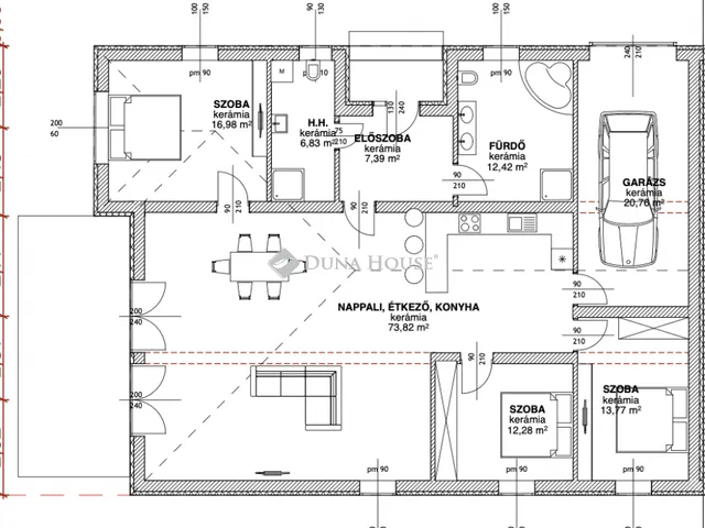
18.kerület legkedveltebb részén AlmáskertbenAlmáskertben modern környezetben eladó új építésű ikerházfél.A kivitelező sok éves múlttal és rengeteg elégedett ügyféllel rendelkezik, referenciák akár itt a lakóparkban is megtekinthetőek.164,25 négyzetméter hasznos lakótérrel rendelkezik, mely egy 500 négyzetméteres telken fekszik. Nappali+3hálószobával rendelkezik, a szobák minimum 12 négyzetméteresek. A földszinten elhelyezkedő 73négyzetméteres nappali+amerikai konyha tágas életteret biztosít, melyből egy csodás privát teraszon keresztül juthatunk ki a saját privát kertünkbe.Autóval garázsban és az udvaron is lehet parkolni.Műszaki adatok:-30-as Prototherm tégla falazat-15 cm-es homlokzati szigetelés-29 cm-es szigetelés az aljzat felől-35 cm-es szigetelés a födém felől-3 rétegű műanyag nyílászárók, fehér színnel-a tető szerkezete fafödém cserépfedéssel-elektromos garázskapu fehér színnel-elektromos kertikapu-Hőszivattyús fűtés, padlófűtéssel-1db hűtő-fűtő klíma-mosókonyha-riasztó és kamerarendszer-térkövezett autóbeállóBurkolatok/beltéri ajtók/szaniterek még választhatóak.A HÁZAK CSAK GARÁZZSAL ÉRINTKEZNEK!A lakópark teljesen új modern környezet, összetartó közösség jellemzi. Közlekedést tekintve autóval a Gyorsforgalmi út, Üllői út, Gyömrői út az M0-ás, M5-ös és a 4-es út mind-mind maximum 5 perc alatt megközelíthető.Tömegközlekedés 3 perc sétára, ahonnan a buszok Kőbánya Kispest vasútállomásig, illetve Határ úti metrómegálló, Ferihegyi vasútállomás is megközelíthető. 10 perc busz távolságra Ferihegyi vasútállomás, melyről a Nyugati pályaudvarig közlekedhetünk. Séta távolságra: Gyógyszertár, Spar, Iskola, Óvoda, PostaFelkeltette érdeklődését keressen bizalommal a hét bármely napján!
A Duna House teljes kínálatával kapcsolatban forduljanak hozzám bizalommal!
Bankfüggetlen pénzügyi szakembereink tanácsadással, ügyintézéssel tudják segíteni Önöket álmaik, céljaik megvalósításában!
Vegye igénybe díjmentes konzultációinkat!
https://www.facebook.com/otthonkonnyeden
Referencia szám: HZ094200
Tulajdonságok
Ikerház
Új építésű
Hőszivattyú
2025
Nem adta meg a hirdető
Vedd fel a kapcsolatot a hirdetővel

+36 1 690 03
Hitelkalkulátor
Második évtől
645 101 Ft A 13. hónaptól
7,99% 8,49%
Végig fix Futamidő: 20 év Banki visszahívás
Az OTP Bank munkatársai a neked megfelelő napszakban veszik fel veled a kapcsolatot. A becslés a hirdető által megadott adatokon alapul. A jelen tájékoztatás nem minősül ajánlattételnek és nem teljes körű, az egyes feltételek a hitelbírálat eredményétől függően változhatnak. Kérjük, a részletekről tájékozódj az OTP Bank fiókjaiban vagy az OTP Bank honlapján közzétett vonatkozó Üzletszabályzatokból és Hirdetményekből.
Vedd fel a kapcsolatot a hirdetővel

+36 1 690 03
Vedd fel a kapcsolatot a hirdetővel

+36 1 690 03
UI_KIT.CHARACTER_COUNTER__COMPONENT.ACTUAL_CHARACTER__SR_ONLY UI_KIT.CHARACTER_COUNTER__COMPONENT.MAXIMUM_CHARACTER__SR_ONLY
Hasonló eladó ingatlanok Almáskert városrészben
Frissítve: 8 napja
9
149,9 millió Ft 1,1 millió Ft/m²
Eladó ikerház, Budapest XVIII. kerület, Almáskert
Frissítve: 8 napja
9
149,9 millió Ft 1,09 millió Ft/m²
Eladó ikerház, Budapest XVIII. kerület, Almáskert
Frissítve: 5 napja
20
149,99 millió Ft 1,09 millió Ft/m²
Eladó ikerház, Budapest XVIII. kerület, Almáskert


Fedezd fel a
hasonló házakat!Még további házak Budapest XVIII. kerület, Almáskert városrészben 149,9 M Ft körüli értékben
Tovább a hirdetésekhez Frissítve: 5 napja
14
149,99 millió Ft 1,09 millió Ft/m²
Eladó ikerház, Budapest XVIII. kerület, Almáskert

Frissítve: ma
16
149,9 millió Ft 1,09 millió Ft/m²
Eladó ikerház, Budapest XVIII. kerület, Almáskert

Frissítve: ma
16
149,9 millió Ft 1,09 millió Ft/m²
Eladó ikerház, Budapest XVIII. kerület, Almáskert

